Duinroos 65
Noordwijk- Living area 55m2
- 2 kamers
Verkocht
| Surface and volume | |
|---|---|
| Living area | 115 m2 |
| Lot size | 115 m2 |
| Volume | 391 m3 |
| Build | |
|---|---|
| Type | Appartement |
| Manufacturing year | 2015 |
| Layout | |
|---|---|
| Rooms | 3 rooms (2 slaapkamers) |
| Bathrooms | 1 badkamers, 1 aparte toiletten |
| Residential floors | 1 woonlagen |
| Energie | |
|---|---|
| Energielabel | A |
| Isolation | Volledig geisoleerd |
| Heating | Cv ketel, Vloerverwarming geheel, Warmtepomp |
| Hot water | Cv ketel |
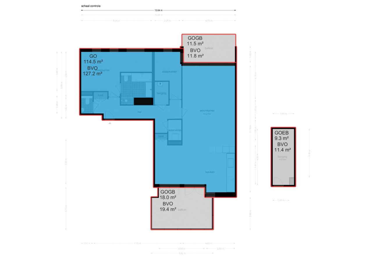
Luxe 3-kamer appartement met twee royale terrassen op het westen en op het oosten en is gelegen op de eerste woonlaag van het kleinschalige appartementencomplex ‘Residence La Rive’.
Het appartement ligt op een prachtige plek met leuk uitzicht over een groenstrook en schuin zicht richting het vaarwater “de Schie”.
Dit moderne 3 (voorheen 4) kamer appartement is compleet en zeer smaakvol afgewerkt. In de ondergelegen parkeergarage is een eigen parkeerplaats en is er toegang tot een ruime berging.
Bouwjaar 2015, woonoppervlakte 115 m², inhoud 391 m³, terras westen 12m², terras oosten 18m², berging 9m², parkeerplaats.
Indeling
Begane grond: entree complex is via de beveiligde centrale hal met bellentableau en video intercominstallatie heeft u toegang tot het appartement en de lift.
Via het trappenhuis of met de lift bereikt u de onderliggende berging en de parkeergarage.
Appartement:
Entree deur naar de royale hal met deuren naar alle ruimtes. Er is een toiletruimte met een wandcloset en een fonteintje. In de aparte berging (voorheen 2e badkamer) bevindt zich de voorziening voor wassen en drogen.
Tevens is er een aparte ruimte met de CV-installatie met energiezuinige warmtepomp en centraal ventilatiesysteem. Er zijn twee slaapkamers waarvan de ruime hoofdslaapkamer een kleedkamer heeft en een toegang
naar de aangrenzende luxe badkamer. Deze badkamer heeft een heerlijk ligbad, een inloopdouche, wastafelmeubel met spiegel en verlichting en 2e toilet.
Ook de 2e slaapkamer heeft veel lichtinval door royale raampartijen.
Vanuit de zeer riante, lichte woonkamer is er een schuifpui naar het balkonterras op het westen.
De fraaie doorzon-woonkamer is zeer licht door de lichte wanden en grote raampartijen die aan beide zijde perfect zijn afgewerkt door fraaie witte shutters.
Het 2e terras, op het oosten gelegen, is bereikbaar d.m.v. dubbele openslaande deuren vanuit de woonkeuken en eetkamer. De luxe moderne open woon/eetkeuken is v.v. diverse inbouwapparatuur, te weten: ruime koelkast, royale
vriezer, stoomoven, oven, vaatwasser en inductiekookplaat met geïntegreerde afzuiging (Bora).
Een bijzonder fraai, verzorgd en royaal appartement, uitgevoerd met hoogwaardige materialen en luxe details, geheel v.v. vloerverwarming, glad afgewerkte wanden, hoge plinten, smaakvolle shutters en jaloezieën.
Het appartement is zeer energiezuinig door gekozen laagtemperatuur verwarming en heeft een perfecte isolatie.
Het appartement ligt ideaal nabij het centrum van Noordwijk-Binnen, de winkels zijn op loopafstand, het strand, de zee en de duinen alsmede de uitvalswegen naar de grote steden zijn snel te bereiken.
Op het privé parkeerterrein bij het complex zijn er gemeenschappelijke parkeerplaatsen die alleen bestemd zijn voor de bewoners en bezoek.
Bijzonderheden:
- ochtendzon tot 16u op het voorterras, de avondzon op het achterterras
- 3e slaapkamer en 2e badkamer kan vrij simpel weer gemaakt worden
- eigen parkeerplaats in ondergelegen garage met verwarmde oprit
- de VVE overweegt, samen met de bewoners, de gezamenlijke aanschaf van zonnepanelen
- geheel voorzien van vloerverwarming
- energiezuinig door optimale isolatie
- er zijn 2 gemeenschappelijke (werk) ruimtes in de parkeergarage, te gebruiken door alle bewoners
- het appartementencomplex is uitstekend toegankelijk voor mensen die slecht ter been zijn dankzij 2 mechanische buitenliften
- grenzend aan de ecologische zone
- glasvezel en AED aanwezig
Makelaar Rick Broekhof nodigt u van harte uit voor een bezichtiging.
Met elkaar maken wij het waar(d).
Oplevering: in overleg.
Heeft u interesse in een soortgelijke woning of wilt u zelf uw woning verkopen? Neem vrijblijvend contact met ons op.
Floor plans