
Jacoba van Beierenhof 21
Voorhout- Living area 102m2
- 3 kamers
Verkocht
Surface and volume | |
---|---|
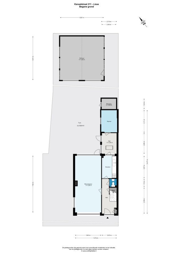
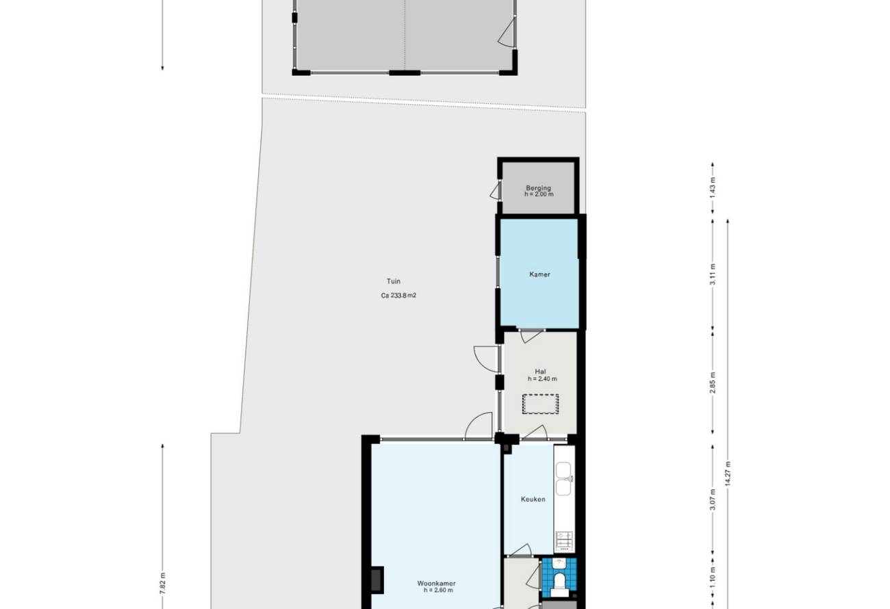
Living area | 132 m2 |
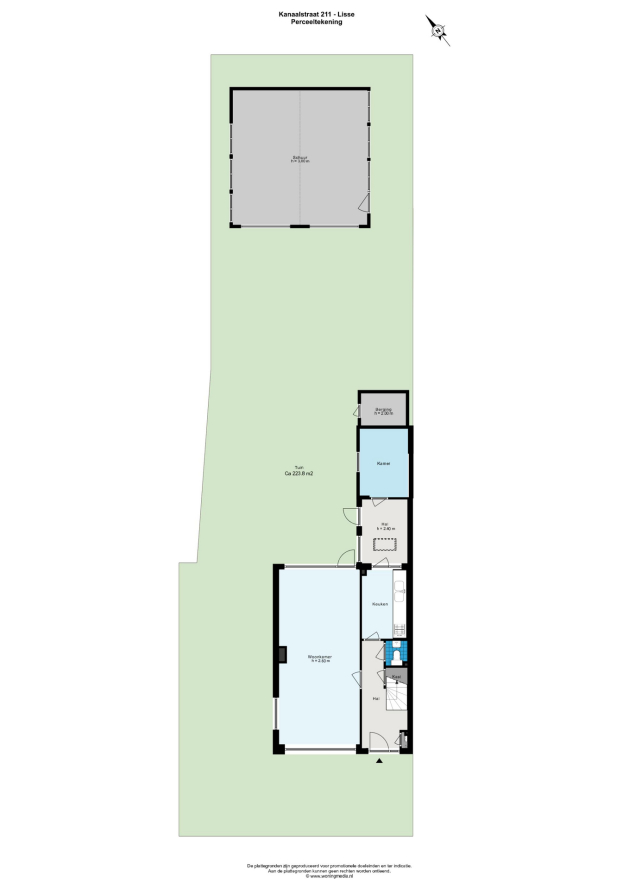
Lot size | 356 m2 |
Volume | 495 m3 |
Build | |
---|---|
Type | Hoekwoning |
Manufacturing year | 1964 |
Layout | |
---|---|
Rooms | 8 rooms (6 slaapkamers) |
Bathrooms | 1 badkamers, 2 aparte toiletten |
Residential floors | 3 woonlagen |
Energie | |
---|---|
Energielabel | F |
Isolation | Dakisolatie, Gedeeltelijk dubbel glas |
Heating | Cv ketel, Gaskachels |
Hot water | Cv ketel |
Bent u op zoek naar een uitdagend en creatief project om uw eigen droomhuis te creëren? Dan is deze kluswoning met garage nabij het centrum van Lisse de perfecte kans voor u!
Deze ruime woning biedt talloze mogelijkheden om uw eigen stempel op te drukken. Met een woonoppervlakte van 132m2, verdeeld over 8 kamers, biedt het veel ruimte voor uw ideeën en wensen. De woning is gelegen nabij het bruisende centrum van Lisse, op loopafstand van winkels, restaurants en andere voorzieningen.
De woning is weliswaar gedateerd en heeft wat liefde en aandacht nodig, maar biedt wel een stevige basis om mee te werken. De woning is gelegen op een zeer ruim perceel, met parkeerruimte op eigenterrein en ruime zonnige achtertuin. In de woning zelf ervaart u veel licht in de doorzon woonkamer met zijraam. Qua ruimte treft u op de begane grond een ruime woonverdieping en op de eerste en tweede verdieping 2 ruime slaapverdiepingen.
Dit is uw kans om een unieke woning te creëren die volledig aansluit bij uw persoonlijke smaak en wensen. Laat uw creativiteit de vrije loop en maak van deze kluswoning uw droomhuis in het hart van Lisse!
Bijzonderheden:
- ruime eengezinswoning
- parkeren op eigen terrein
- naar eigen wens te verbouwen
- gelegen nabij het centrum van Lisse
- reeds een bouwkundige keuring uit laten voeren
- Asbestclausule, ouderdomsclausule en woning nooit bewoond door verkoper clausule zullen in de koopakte worden opgenomen
Makelaar Matthew van Soest nodigt u van harte uit voor een bezichtiging.
Met elkaar maken wij het waar(d).
Heeft u interesse in een soortgelijke woning of wilt u zelf uw woning verkopen? Neem vrijblijvend contact met ons op.
Watch video
All photo's
Floor plans
Floor plans
Watch video