Duinroos 65
Noordwijk- Living area 55m2
- 2 kamers
Verkocht
| Surface and volume | |
|---|---|
| Living area | 147 m2 |
| Lot size | 94 m2 |
| Volume | 460 m3 |
| Build | |
|---|---|
| Type | Hoekwoning |
| Manufacturing year | 1976 |
| Layout | |
|---|---|
| Rooms | 7 rooms (5 slaapkamers) |
| Bathrooms | 3 badkamers |
| Residential floors | 4 woonlagen |
| Energie | |
|---|---|
| Energielabel | C |
| Heating | Cv ketel, Vloerverwarming gedeeltelijk, Houtkachel |
| Hot water | Cv ketel, Elektrische boiler eigendom |
** WONING MET RUIME GARAGE EN BENEDENAPPARTEMENT **
Fantastische strand woning op mooie locatie van Noordwijk aan Zee inclusief eigen garage en parkeerplaats!
Gelegen op loopafstand van het strand en in het centrum van Noordwijk staat deze royale woning inclusief garage op het achtergelegen terrein.
De onderverdieping is ideaal voor gebruik appartement of bedrijf aan huis.
Woonoppervlakte 147m², inhoud 460 m³, perceeloppervlakte 94m2, bouwjaar 1976, garage 28m²
Indeling:
Begane grond:
De begane grond is geheel voorbereid als zijnde een separaat appartement, met aansluitingen voor een keuken, eigen badkamer, woonkamer en slaapkamer. Deze heeft zowel een voorentree als een achteringang.
1e Etage:
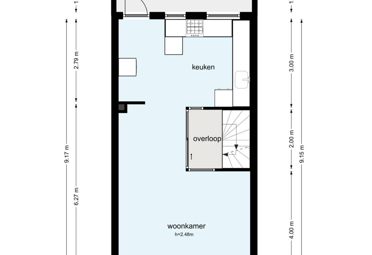
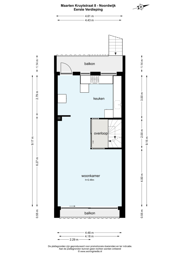
Op de eerste verdieping treft u de woonverdieping:
binnen komt u door de fraaie zwarte kozijnen met deur en veel glas. Hier treft u een moderne woonkamer met grote schuifpui aan de voorzijde en balkon op het zuidoosten. Ook is er de palletkachel voor uiterst zuinig stoken!
De woonkamer staat in open verbinding met de zeer moderne open keuken. De keuken is uitgevoerd in een betonlook en heeft uitzicht op het parkeerplein en Huis ter Duin.
In de keuken treft u inbouw apparatuur zoals een vaatwasser, inductie kookplaat, design wasemkap, grote moderne spoelkraan en hete luchtoven.
De keuken heeft een achteringang via een trap vanaf het plein naar het achterbalkon op het westen voor de heerlijke avondzon!
2e Etage:
Op de 2e verdieping treft u 3 ruime slaapkamers, waarvan één de hoofdslaapkamer betreft met balkon, electr. rolluiken en airconditioning.
De badkamer is voorzien van bad- douche combinatie, een toilet en wastafel in meubel.
3e Etage:
Op de 3e verdieping treft u nog een tweede grote badkamer met douchecabine, ligbad, toilet en wastafelmeubel. Tevens treft u hier een 4e slaapkamer met dakraam en een zeer ruime overloop welke deels wordt gebruikt als bergruimte en v.v. aansluiting voor wasmachine.
Garage:
De garage is op een mandelig plein achter de woning en heeft elektrische overheaddeur. De garage is voorzien van een kleine ‘badkamer’ met toilet EN heeft een wateraansluiting, verwarming en electra.
Het betreft een zeer ruime garage met vide op een afgesloten privéplein.
Een fijne plek voor opslag of voor bedrijf aan huis.
De vraagprijs is inclusief garage (t.w.v. € 45.000,--)
Parkeren: op een eigen parkeerplaats op het privé plein of in uw eigen garage.
Bijzonderheden:
- gelegen op loopafstand van zee en het strand
- in het centrum van Noordwijk aan Zee
- zeer ruime garage en parkeerplaats op privéterrein
- zeer geschikt voor dubbele bewoning
- begane grond appartement of bedrijfsruimte
- 2 balkons
- Voorzien van elektrische rolluiken
- Airconditioning boven
- energielabel C
Makelaar Rick Broekhof nodigt u van harte uit voor een bezichtiging.
Met elkaar maken wij het waar(d).
Heeft u interesse in een soortgelijke woning of wilt u zelf uw woning verkopen? Neem vrijblijvend contact met ons op.
Watch video
All photo's
Floor plans
Floor plans
Watch video