Duinroos 65
Noordwijk- Living area 55m2
- 2 kamers
Verkocht
| Surface and volume | |
|---|---|
| Living area | 146 m2 |
| Lot size | 0 m2 |
| Volume | 411 m3 |
| Build | |
|---|---|
| Type | Appartement |
| Manufacturing year | 1990 |
| Layout | |
|---|---|
| Rooms | 3 rooms (2 slaapkamers) |
| Bathrooms | 1 badkamers, 1 aparte toiletten |
| Residential floors | 1 woonlagen |
| Energie | |
|---|---|
| Energielabel | B |
| Isolation | Dakisolatie, Muurisolatie, Vloerisolatie, Dubbel glas |
| Heating | Cv ketel |
| Hot water | Cv ketel |
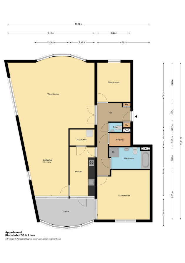
Dit zeer ruime en goed gelegen 3-kamer appartement met een woonoppervlakte van 146m² heeft een parkeerplaats op het afgesloten privé-parkeerterrein en inpandige berging op de begane grond. Het inpandige terras van 12m² ligt op het Zuiden en is tevens geheel afsluitbaar en biedt het hele jaar door mogelijkheden voor ontspanning en privacy. Bouwjaar 1990.
De locatie in het centrum van Lisse en op loopafstand van diverse winkels, het gemeentehuis en openbaar vervoer is zeker een pluspunt te noemen. Ook het mooie uitzicht tot aan het Keukenhof bos maakt dit appartement zeer aantrekkelijk.
Indeling 2e Etage: Hal met garderobe, toiletruimte, meterkast en cv kast, de zeer grote living van circa 70m² is door de vele raampartijen heerlijk licht, de dichte en ruime keuken is enigszins gedateerd en geeft toegang tot zowel de grote bijkeuken als tot het terras. De royale badkamer heeft zowel een ligbad als douchecabine en een toilet. De hoofdslaapkamer is 22m² en heeft ook toegang tot het terras, de 2e slaapkamer aan de voorzijde is ook ruim te noemen.
Makelaar Miranda van der Wagt-Waasdorp nodigt u van harte uit voor een bezichtiging.
Met elkaar maken wij het waar(d).
Heeft u interesse in een soortgelijke woning of wilt u zelf uw woning verkopen? Neem vrijblijvend contact met ons op.
Watch video
All photo's
Floor plans
Floor plans
Watch video