't Lange Rack 9
Lisse- Living area 205m2
- 6 kamers
Verkocht
| Surface and volume | |
|---|---|
| Living area | 117 m2 |
| Lot size | 119 m2 |
| Volume | 342 m3 |
| Build | |
|---|---|
| Type | Appartement |
| Manufacturing year | 2018 |
| Layout | |
|---|---|
| Rooms | 4 rooms (2 slaapkamers) |
| Bathrooms | 1 badkamers, 1 aparte toiletten |
| Residential floors | 1 woonlagen |
| Energie | |
|---|---|
| Energielabel | A |
| Isolation | Volledig geisoleerd |
| Heating | Vloerverwarming geheel, Warmte terugwininstallatie |
| Hot water | Cv ketel |
Wonen in luxe en comfort op een landgoed nabij het strand, de duinen en de zee? Dan is dit 3-kamerappartement op de derde etage van appartementen complex St. Jeroen in Noordwijk dé ideale woning voor jou! Met een oppervlakte van 117m² biedt dit appartement, ruimte en comfort. Er zijn 2 eigen parkeerplaatsen en een fietsenberging in de ondergelegen parkeergarage.
Dit moderne appartement is gebouwd in 2018 en is voorzien van alle moderne gemakken. Het balkon met Accoya vlonder biedt een adembenemend vrij uitzicht over het groene landgoed Sancta Maria.
Bouwjaar 2018, woonoppervlakte 117m², berging 8m², balkon 18m², 2 parkeerplaatsen 24m².
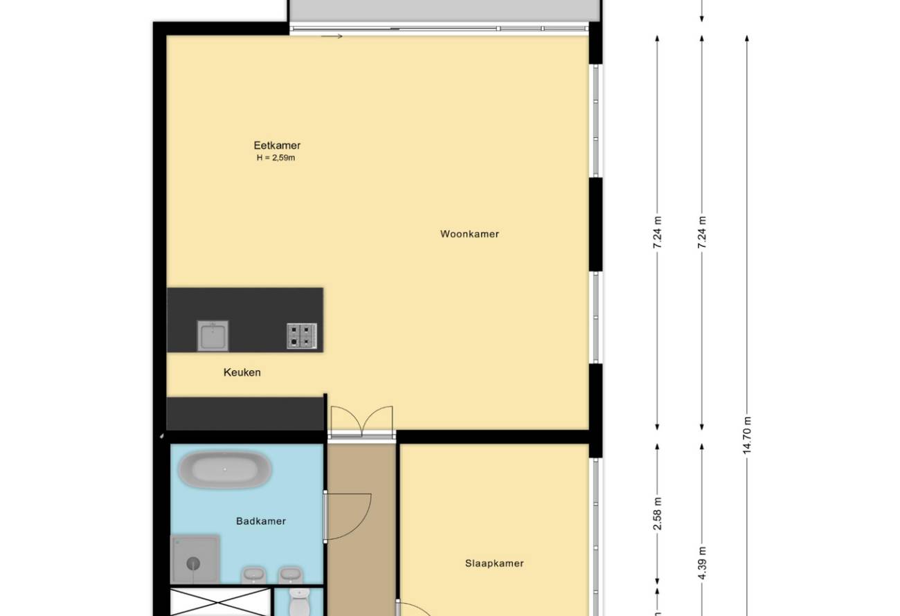
Indeling: Fraai en ruim opgezette centrale entree, afgesloten door een elektrisch bedienbare toegangsdeur, met brievenbussen, intercominstallatie met video, trappenhuis en liftinstallatie.
3e Etage: Ruime entree met toiletruimte, berging met opstelling wassen en drogen, meterkast en deuren naar de slaapkamers, badkamer en de living. De moderne lichte living is voorzien van veel glazen raampartijen met fantastisch lichtinval en uitzicht! Er is een schuifpui naar het royale balkon op het zuiden. De moderne keuken is van alle gemakken voorzien en biedt genoeg ruimte om de lekkerste maaltijden te bereiden.
De gietvloer met vloerverwarming door het gehele appartement zorgt voor extra comfort en warmte tijdens de koude wintermaanden. De twee ruime slaapkamers bieden voldoende ruimte voor een gezin of voor gasten. De moderne badkamer is voorzien van alle luxe en comfort die je nodig hebt, waaronder een; Vrijstaand ligbad, separate douchegelegenheid, dubbele wastafel in meubel.
Parkeren/Berging:
De parkeergarage in de onderbouw steekt circa 1,5 meter boven het maaiveld
uit en heeft daardoor daglichtinval en natuurlijke ventilatie. De toegang is via een speedgate met zenderbediening en een loopdeur t.b.v. wandelaars en fietsers. De twee eigen parkeerplaatsen en een afzonderlijke (fietsen)berging bij het appartement maken het plaatje compleet. Kortom, dit appartement is een droomwoning die alles biedt wat je nodig hebt voor een comfortabele en luxe levensstijl.
Locatie:
Landgoed Sancta Maria is een top locatie met een bijzondere historie, vlakbij de duinen, zee en strand en omringd door de fameuze bollenvelden. Het landgoed werd in de afgelopen jaren ontwikkeld tot een schitterende en unieke, groene woonomgeving met vrijstaande villa’s, historische herenhuizen en kapel en een viertal luxe appartementengebouwen, waaronder dit gebouw. Het bouwjaar is 2018 dus zowel bouw als afwerking zijn zeer recent en volledig van de nieuwste bouwnormen voorzien.
Het energielabel A en de zeven zonnepanelen zorgen voor een energiezuinige en duurzame woning. Het appartement is gebouwd met hoogwaardige, duurzame materialen, waardoor je verzekerd bent van een woning die nog jarenlang meegaat.
En het mooie is: de woning ligt op slechts enkele minuten van het strand, de duinen en de zee! Dus als je wilt genieten van de natuur en het strand, dan hoef je alleen maar de deur uit te stappen.
Kom snel kijken bij dit prachtige appartement aan de Pauluslaan 184 in Noordwijk en ervaar zelf het comfort en de luxe die dit appartement te bieden heeft!
Makelaar Rick Broekhof nodigt je van harte uit voor een bezichtiging.
Neem contact op met ons kantoor tel; 0252-419049.
Met elkaar maken wij het waar(d)
Bijzonderheden:
- Exclusief 3-kamer appartement
- Luxe en hoogwaardige afwerking
- 2 privé parkeerplaatsen
- Geheel voorzien van triple beglazing
- Het gebouw is voorzien van zonnepanelen, 7 stuks voor deze woning.
- De maandelijkse bijdragen bedragen thans € 304,-- aan de VvE
- en € 35,-- aan Stichting Park Management voor het onderhoud van het Landgoed
- Oplevering, in overleg
Heeft u interesse in een soortgelijke woning of wilt u zelf uw woning verkopen? Neem vrijblijvend contact met ons op.
Watch video
All photo's
Floor plans
Floor plans
Watch video