Langeweg 86
Roelofarendsveen- Living area 181m2
- 8 kamers
Verkocht
| Surface and volume | |
|---|---|
| Living area | 327 m2 |
| Lot size | 360 m2 |
| Volume | 1.141 m3 |
| Build | |
|---|---|
| Type | Hoekwoning |
| Manufacturing year | 1900 |
| Layout | |
|---|---|
| Rooms | 8 rooms (6 slaapkamers) |
| Bathrooms | 2 badkamers, 1 aparte toiletten |
| Residential floors | 3 woonlagen |
| Energie | |
|---|---|
| Energielabel | C |
| Heating | Cv ketel |
| Hot water | Cv ketel, Elektrische boiler eigendom |
Uniek Herenhuis in de Oude Dorpskern en in de pittoreske Voorstraat van Noordwijk Binnen!
Ben jij op zoek naar een karaktervolle woning met een rijke geschiedenis? Dan is dit hoek herenhuis in de betoverende oude dorpskern van Noordwijk Binnen jouw droomhuis!
Dit prachtige historische pand is verdeeld in drie afzonderlijke appartementen, elk met eigen keuken, woonkamer en badkamer.
Maar het is ook als één woning te gebruiken.
Er is toegang voor het parkeren van de auto vanaf de zijkant in de tuin.
Bouwjaar 1900, perceeloppervlakte 360m², woonoppervlakte totaal 327m², inhoud 1141m³, garage 34m², kelder 19m², schuur 11m², totale woonoppervlakte 327m².
Woonoppervlakte app 1: 137m²
Woonoppervlakte app 2: 118m²
Woonoppervlakte app 3: 72m²
Begane grond Appartement:
Stap binnen, via entree aan de voorzijde in dit sfeervolle appartement met een royale woonkamer aan de voorzijde, badend in natuurlijk licht. De grote keuken met een prachtig spoeleiland is een droom voor elke kookliefhebber. Verder in de lichte hal een toiletruimte met daarnaast een doucheruimte, extra leuk detail zijn fraaie glas in loodramen. Aan de achterzijde is een 2e woonkamer welke momenteel in gebruik is als slaapkamer.
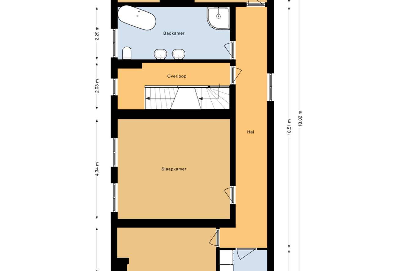
1e Etage Appartement:
De 1e etage biedt een ruime woonkamer waar je kunt ontspannen en genieten van gezellige momenten met deuren naar heerlijk groot balkon. Aan de voorzijde zijn 2 royale en lichte slaapkamers. De moderne design badkamer op deze etage is met ligbad, douchecabine, toilet en dubbele wastafel. De aparte keuken in rechte opstelling is voorzien van allerhande apparatuur.
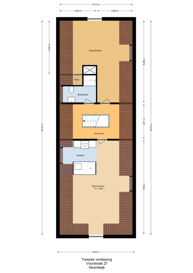
2e Etage Appartement:
De 2e etage verwelkomt je met een charmante woonkamer inclusief open keukenblok. Deze ruimte ademt een gezellige sfeer en biedt de perfecte plek om te relaxen na een lange dag. De aanwezigheid van een badkamer op deze etage voegt extra comfort en gemak toe aan dit leuke appartement.
De achtertuin van dit herenhuis is als een blanco canvas, klaar om getransformeerd te worden met een vleugje liefde en groene vingers. Met een handige berging voor al uw tuingereedschap en een ruim gazon, is er meer dan genoeg ruimte om diverse zitjes te creëren. Stel u voor hoe u 's zomers kunt genieten van barbecues, zonnige dagen en ontspannen avonden in uw eigen groene oase.
De tuin heeft een historische muur van minimaal 100 jaar oud.
Garage:
De vrijstaande garage is te bereiken via een deur aan de zijkant in de tuin en met de auto in te rijden vanaf de Offemweg.
Ligging:
De locatie van dit pand is simpelweg ongeëvenaard. Gelegen in de oude dorpskern van Noordwijk Binnen, bevind je je te midden van pittoreske straatjes, lokale boetiekjes en sfeervolle restaurants. Geniet van het beste van beide werelden: de rust en charme van een historisch dorp en de nabijheid van moderne voorzieningen en het prachtige Noordwijkse strand.
Dit historische herenhuis in de oude dorpskern van Noordwijk Binnen is een kans die u niet wilt missen. Of u nu kiest voor een van de afzonderlijke appartementen of de mogelijkheden van het hele pand wilt verkennen, hier vindt u de perfecte balans tussen geschiedenis en hedendaags wonen. Neem vandaag nog contact met ons op en maak van deze unieke woonkans uw nieuwe thuis!
Bijzonderheden;
- Karakteristiek hoekherenhuis
- Gelegen in pittoreske Voorstraat
- Verdeeld in 3 appartementen
- Volledig uitgerust met 3 badkamers en 3 keukens
- Ideaal als kangoeroewoning of voor een groot gezin
- Ruim balkon op 1e etage
- Verhuurbare woningen!
- Begane grond als kantoor of bedrijf te gebruiken
- Op paar minuten fietsen van strand, zee en duin
Heeft u interesse in een soortgelijke woning of wilt u zelf uw woning verkopen? Neem vrijblijvend contact met ons op.
Watch video
All photo's
Floor plans
Floor plans
Watch video