Duinroos 65
Noordwijk- Living area 55m2
- 2 kamers
Verkocht
| Surface and volume | |
|---|---|
| Living area | 123 m2 |
| Lot size | 285 m2 |
| Volume | 466 m3 |
| Build | |
|---|---|
| Type | Tussenwoning |
| Manufacturing year | 1980 |
| Layout | |
|---|---|
| Rooms | 4 rooms (3 slaapkamers) |
| Bathrooms | 1 badkamers, 1 aparte toiletten |
| Residential floors | 3 woonlagen |
| Energie | |
|---|---|
| Energielabel | C |
| Isolation | Dakisolatie, Muurisolatie, Vloerisolatie, Dubbel glas, Hr glas |
| Heating | Cv ketel, Houtkachel |
| Hot water | Cv ketel |
Deze nette eengezinswoning met parkeerplaats op eigen terrein is met de zeer diepe achtertuin direct gelegen aan vaarwater (Ringvaart) met de mogelijkheid tot het aanleggen van een boot.
- zeer goed onderhouden
- parkeren op eigen terrein
- aangebouwde hardhouten berging aan de voorzijde
- royale achtertuin
- gelegen aan vaarwater
- park met speelmogelijkheden in de buurt
Bouwjaar: 1980 Woonoppervlakte: 123 m2 Perceeloppervlakte: 285 m2
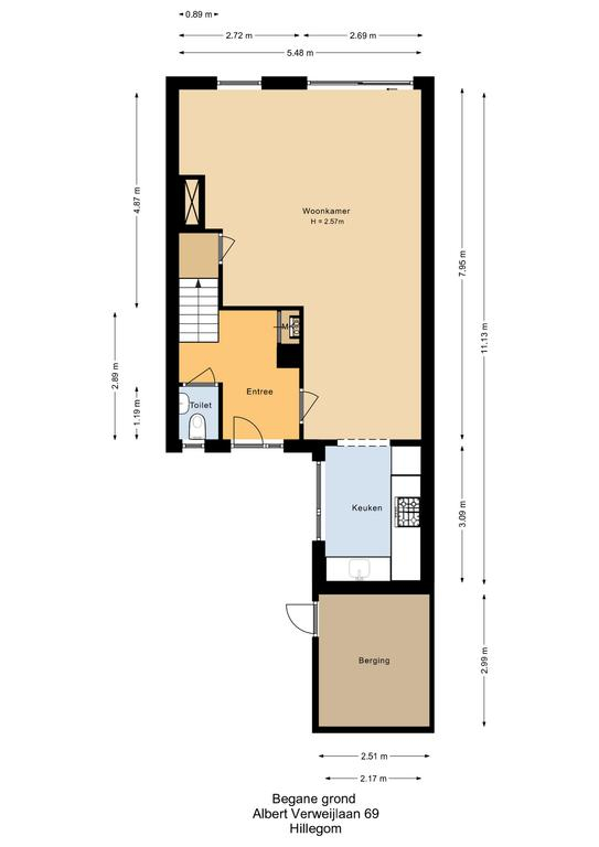
Begane grond
De begane grond is ingedeeld in een half open keuken in L-opstelling, voorzien van diverse inbouwapparatuur te weten: 5-pits-gaskookplaat, combi-oven, vaatwasser, boiler en koel- vriescombinatie (2020). En woon- eetkamer met houtkachel en trapkast. In de ruime hal treffen we de toiletruimte, garderobe en trap naar de eerste verdieping. De woonkamer biedt een mooi uitzicht over de ruime achtertuin en water.
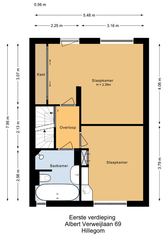
Eerste verdieping
De eerste verdieping is ingedeeld in 2 slaapkamers, de zeer royale hoofdslaapkamer met vaste kastenwand en ruime 2e slaapkamer. Tevens vinden we op deze verdieping de badkamer met inloopdouche, bad, wastafelmeubel en toilet.
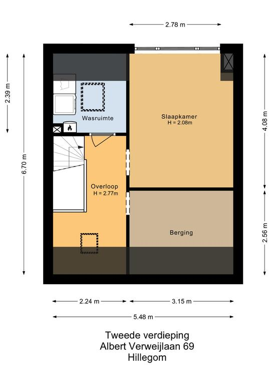
Tweede verdieping
Op de tweede verdieping is 1 ruim bemeten slaapkamer gesitueerd met dakkapel, een berging, vliering en wasruimte waar ook u ook de CV ketel (2020) treft.
Tuin
De tuin is zeer royaal met een diepte van ca. 35 meter. De (zonnige) tuin is fraai aangelegd en opgedeeld in 2 stukken, het gedeelte wat is gelegen aan vaarwater is bereikbaar via de gemeenschappelijk brug (gedeeld met de buren). De tuin is gelegen aan vaarwater en de mogelijkheid om een vaste aanlegsteiger te creëren is aanwezig. Ideaal om uw boot aan te leggen. Aan de woning treft u een overkapping, waardoor u ook fijn buiten kunt zitten op regenachtige warme dagen. De tuin is voorzien van verlichting en drie watertappunten.
Ligging
Deze woning is gelegen in de wijk Elsbroek met diverse basisvoorzieningen in de nabije omgeving, denk hierbij aan basisscholen, supermarkt, huisarts, kinderopvang etc. Hillegom is zeer gunstig gelegen in de Randstad met uitvalswegen naar de A4, hierdoor bent u binnen afzienbare tijd in steden als Amsterdam, Den Haag, Leiden en Haarlem.
Makelaar Matthew van Soest nodigt u van harte uit voor een bezichtiging.
Met elkaar maken wij het waar(d).
Heeft u interesse in een soortgelijke woning of wilt u zelf uw woning verkopen? Neem vrijblijvend contact met ons op.
Watch video
All photo's
Floor plans
Floor plans
Watch video