Egmonderstraat 31
Noordwijk- Living area 64m2
- 3 kamers
Verkocht
| Surface and volume | |
|---|---|
| Living area | 113 m2 |
| Lot size | 123 m2 |
| Volume | 404 m3 |
| Build | |
|---|---|
| Type | Tussenwoning |
| Manufacturing year | 1987 |
| Layout | |
|---|---|
| Rooms | 6 rooms (3 slaapkamers) |
| Bathrooms | 1 badkamers, 1 aparte toiletten |
| Residential floors | 3 woonlagen |
| Energie | |
|---|---|
| Energielabel | B |
| Isolation | Dakisolatie, Muurisolatie, Vloerisolatie, Dubbel glas |
| Heating | Cv ketel |
| Hot water | Cv ketel, Elektrische boiler eigendom |
Ruime eengezinswoning in een geliefde buurt
Nabij het centrum van Lisse staat deze goed onderhouden eengezinswoning. Met maar liefst 3 ruime slaapkamers, open keuken met aansluitende bijkeuken, uitbouwmogelijkheden, veel bergruimte en een diepe tuin op het westen is deze woning misschien wel precies waar jij naar op zoek bent.
• Lichte woon/eetkamer met erker aan de voorzijde
• Mogelijkheid om uit te bouwen aan de achterzijde
• Dakkapel op de 2e verdieping aan de achterzijde
• 4 slaapkamers mogelijk
• Ruime overloop met opstelplaats voor wasmachine en droger
• Diepe achtertuin met achterom en charmante voortuin
Bouwjaar 1987, woonoppervlakte 113 m², perceel 123 m² , tuinligging west
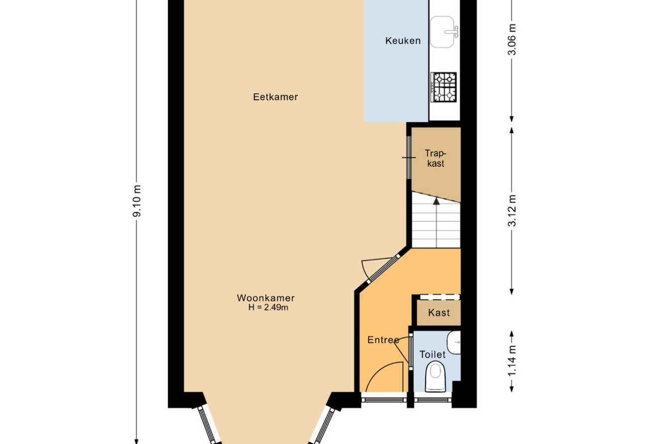
Begane grond
In de hal vind je de toiletruimte, meterkast en garderobe. Kom verder in de lichte en ruime woonkamer met plavuizen vloer. De woon- eetkamer is licht, dankzij de zonnige erker op het oosten en de openslaande deuren naar de tuin op het westen. De open keuken heeft een deur naar de aangebouwde bijkeuken, handig voor opslag en voorraad. Verder uitbouwen over de volle breedte van de woning is ook mogelijk.
Eerste verdieping
Op de eerste verdieping zijn twee ruime slaapkamers. De hoofdslaapkamer aan de achterzijde heeft een open verbinding met de naast gelegen kamer welke nu in gebruik is als inloopkast. Met een eenvoudige tussenwand is deze ruimte ook weer in te richten als extra slaapkamer. Zo zijn er op de eerste verdieping 3 slaapkamers mogelijk. De nette badkamer is voorzien van een badmeubel, inloopdouche en toilet.
Tweede verdieping
Op de tweede verdieping vind je nog een zeer ruime slaapkamer met dakkapel en handige bergruimte achter de knieschotten. Daarnaast is er op deze verdieping nog een kamer voor extra bergruimte en de CV (2020). De overloop op de tweede verdieping is lekker ruim en licht dankzij het velux raam. Hier vind je de opstelplaats voor de wasmachine en droger (beide op een aparte groep) en ook hier weer extra bergruimte achter de knieschotten.
Tuin
Voortuin (2,5 meter diep) op het oosten en diepe achtertuin (10 meter) zijn netjes aangelegd en gelegen op het westen. De zonnige achtertuin met achterom heeft ook een stenen berging voorzien van elektra.
Ligging
De Mendeldreef ligt in een groene, kindvriendelijke buurt. Je bent vanuit hier ook zo in het centrum, het Keukenhofbos en de uitvalswegen. Op loopafstand is een heerlijke speelplaats voor kinderen. Er is veel parkeergelegenheid in de straat.
Duurzaamheid & comfort
- Energielabel B
- Isolerende beglazing in de gehele woning
- Aparte groep voor inductiekookplaat
- CV-ketel 2020
- Schilderwerk buiten 2019 door erkend schildersbedrijf
- Glasvezel voorbereid tot de meterkast
- Altijd keurig onderhouden, bouwkundig rapport beschikbaar
Kortom: dit heerlijke gezinshuis is altijd met liefde bewoond en nu klaar voor de volgende generatie.
Nieuwsgierig geworden?
Bel of mail ons voor het maken van een afspraak. Makelaar Brigitte Wilbrink leidt je graag rond.
Heeft u interesse in een soortgelijke woning of wilt u zelf uw woning verkopen? Neem vrijblijvend contact met ons op.
Watch video
All photo's
Floor plans
Floor plans
Watch video