Duinroos 65
Noordwijk- Living area 55m2
- 2 kamers
Verkocht
| Surface and volume | |
|---|---|
| Living area | 145 m2 |
| Lot size | 611 m2 |
| Volume | 524 m3 |
| Build | |
|---|---|
| Type | Twee onder een kapwoning |
| Manufacturing year | 1952 |
| Layout | |
|---|---|
| Rooms | 3 rooms (2 slaapkamers) |
| Bathrooms | 2 badkamers, 1 aparte toiletten |
| Residential floors | 3 woonlagen |
| Energie | |
|---|---|
| Energielabel | F |
| Isolation | Gedeeltelijk dubbel glas |
| Heating | Cv ketel |
| Hot water | Cv ketel |
Deze fraai gelegen 2-onder-1 kap woning ligt op slechts een steenworp afstand van zee, strand en duinen en heeft prachtig uitzicht over de bloembollenvelden.
De diepe tuin van ruim 48 meter is een toevluchtsoord voor de tuinliefhebber en ook de reeën voelen zich hier thuis. Ideaal voor degene die graag naar eigen inzicht en idee de perfecte woning willen creëren.
· Bouwjaar 1952 · Woonoppervlakte: 145m² · Perceeloppervlakte: 611m²
Graag nemen we je mee;
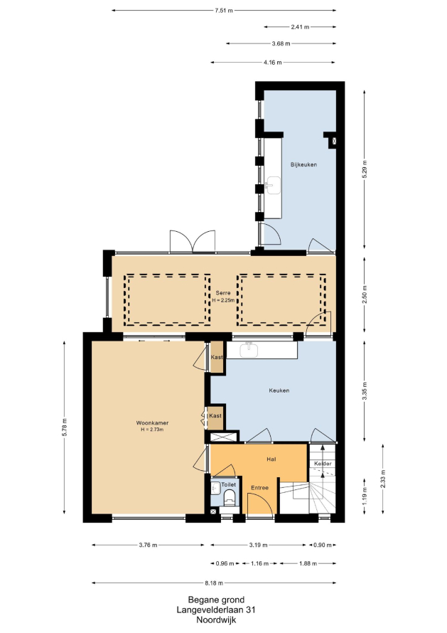
Begane grond
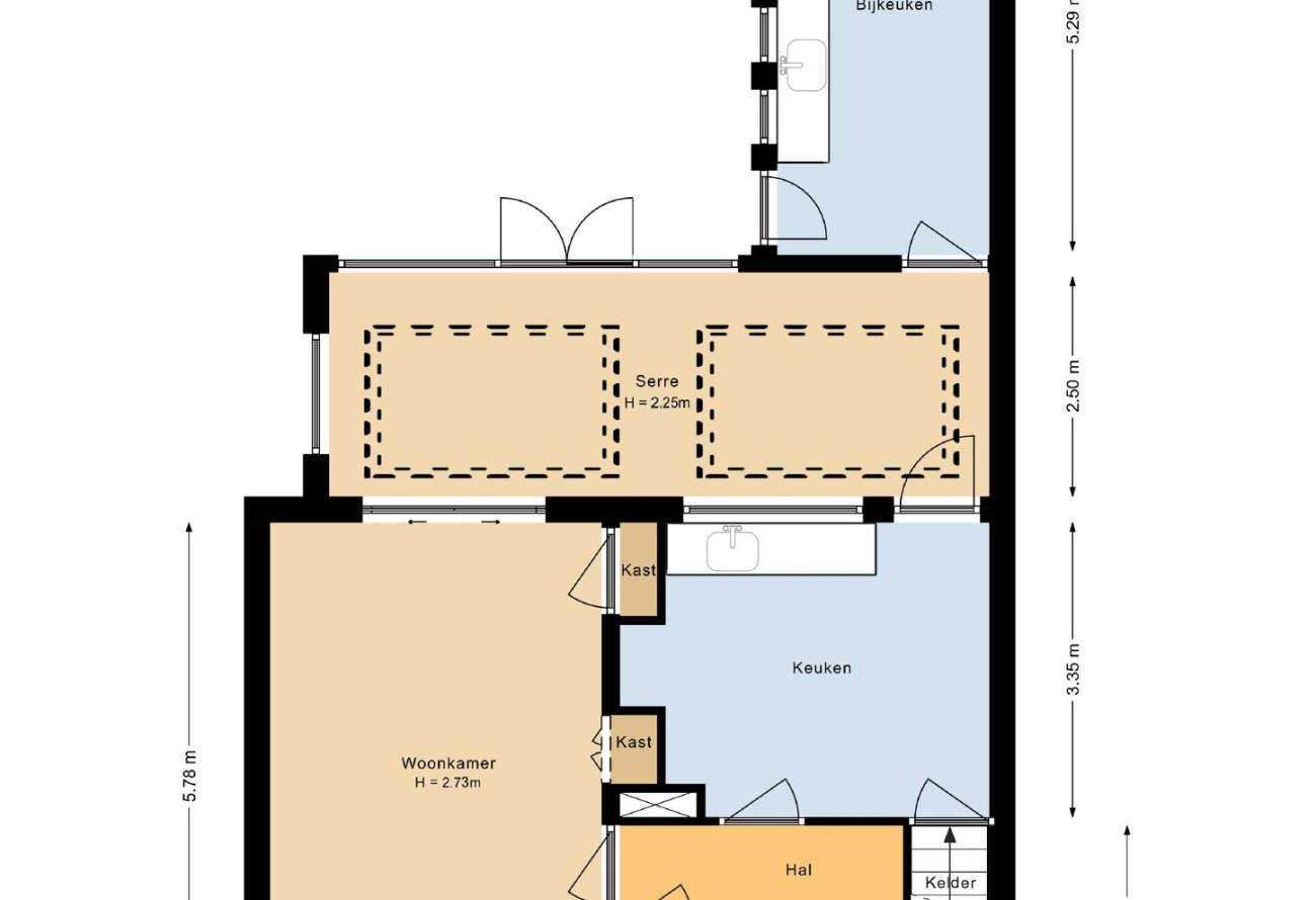
Hal, gang, lichte doorzonwoonkamer met mozaïek parketvloer, 2 vaste kasten en schuifpui naar serrekamer. Serrekamer met vloertegel en dubbele deuren naar de tuin, grote keuken met eenvoudige inrichting en toegang naar de verdiepte kelderkast, aangebouwde bijkeuken/berging.
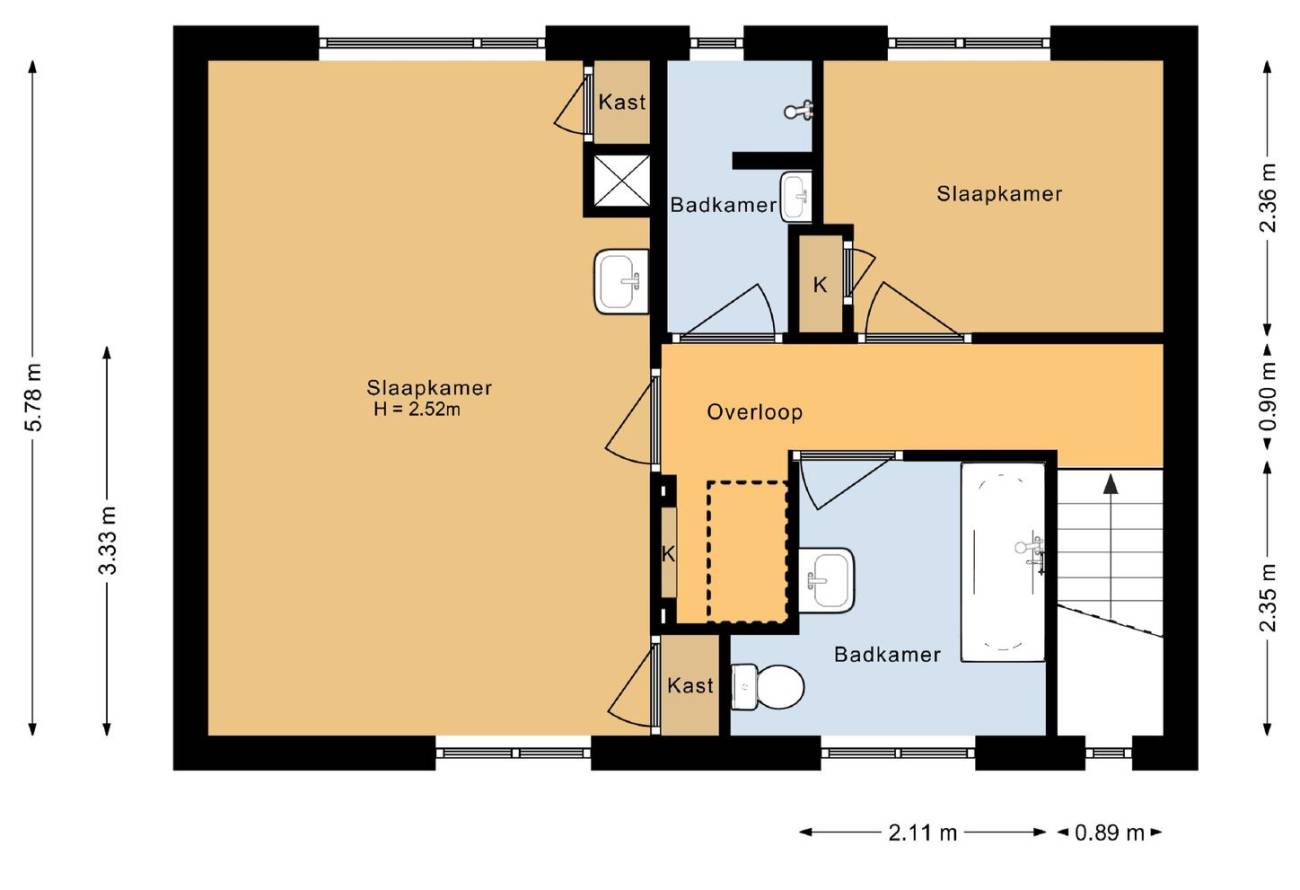
1e Etage
Hier bevinden zich twee ruime slaapkamers met vaste kasten en twee gedateerde badkamers waarvan 1 met ligbad, wastafel en toilet en 1 met douche en wastafel.
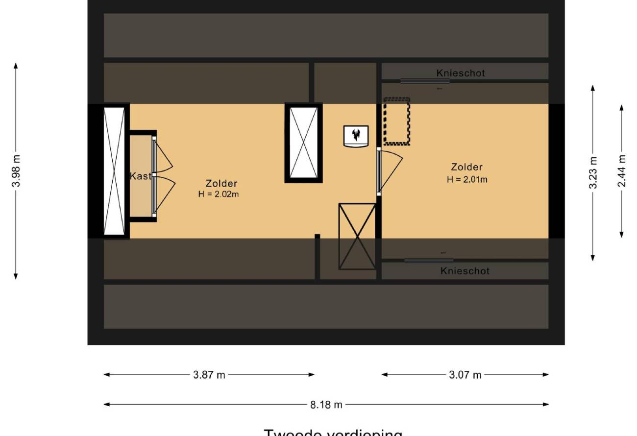
2e Etage
Met een steektrap is deze verdieping te bereiken en deze is verdeeld in twee ruimten, beide met een dakraam. Verder is op deze etage de cv combiketel opgesteld.
Tuin
De zeer grote tuin is circa 48 meter diep en 10 meter breed. Een echt paradijs voor tuin- en natuurliefhebbers met veel privacy en panoramisch uitzicht.
Ligging
Gelegen in het buitengebied van Noordwijk, tussen de bloembollenvelden en aan de rand van Landgoed Sancta Maria. Op steenworp afstand van zee, strand en duinen maar ook de winkels en scholen liggen binnen handbereik.
In de koopovereenkomst zullen de volgende clausules worden opgenomen:
- ouderdomsclausule
- niet zelfbewoningsclausule
Tevens zal de asbestsanering voor de levering plaatsvinden.
Miranda van der Wagt staat voor je klaar om je de mogelijkheden van deze woning te laten zien met het adembenemende vrije uitzicht. Een woning die het waard is om te worden omgetoverd tot jouw toekomstige thuis!
Heeft u interesse in een soortgelijke woning of wilt u zelf uw woning verkopen? Neem vrijblijvend contact met ons op.
Watch video
All photo's
Floor plans
Floor plans
Watch video