Duinroos 65
Noordwijk- Living area 55m2
- 2 kamers
Verkocht
| Surface and volume | |
|---|---|
| Living area | 78 m2 |
| Lot size | 172 m2 |
| Volume | 291 m3 |
| Build | |
|---|---|
| Type | Twee onder een kapwoning |
| Manufacturing year | 1923 |
| Layout | |
|---|---|
| Rooms | 3 rooms (2 slaapkamers) |
| Bathrooms | 1 badkamers, 1 aparte toiletten |
| Residential floors | 2 woonlagen |
| Energie | |
|---|---|
| Energielabel | E |
| Isolation | Muurisolatie, Dubbel glas |
| Heating | Cv ketel |
| Hot water | Cv ketel |
Ben je op zoek naar een sfeervolle en unieke woning? Dan is dit precies het huis wat je zoekt!
Deze goed onderhouden twee-onder-één-kapwoning is gelegen nabij het gezellig winkelgebied “de Kempenaerstraat” en heeft alles wat je nodig hebt.
Bouwjaar: 1923, woonoppervlakte: 78m², perceeloppervlakte: 172m²
- Twee-onder-één-kapwoning
- Moderne openkeuken
- Tuin op het zuidwesten
- Veel privacy
- Begane grond HR++ beglazing (2023)
- Spouwmuur geïsoleerd (2023)
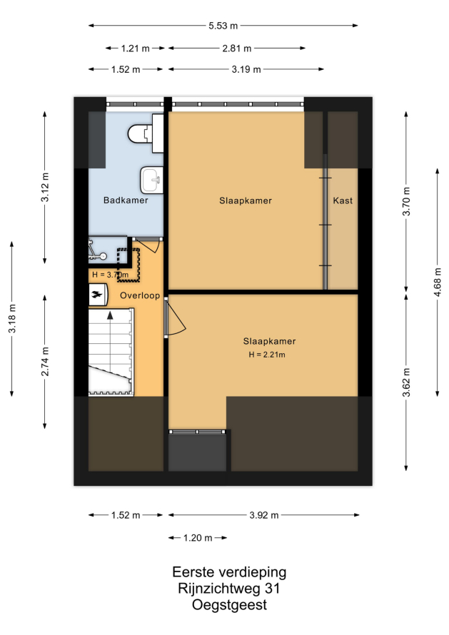
Indeling:
Entree, hal, gemoderniseerde meterkast en een trapkast met aansluiting voor de wasapparatuur. Vanuit de hal is er toegang tot de lichte uitgebouwde woonkamer, waar een openhaard voor extra gezelligheid zorgt. De hoogte van de plafonds zijn 2,78m, wat zorgt voor een ruimtelijk gevoel. Er ligt een prachtige massieve houten grenen vloer. De moderne openkeuken heeft een kookeiland en alle inbouwapparatuur die je nodig hebt, inclusief een inductiekookplaat met geïntrigeerd afzuigsysteem, combi-oven, vaatwasser, koel-/vriescombinatie en een wijnklimaatkast.
1e Etage:
Lichte overloop vanwege het Velux dakraam. De ruime ouderslaapkamer heeft een prachtig uitzicht op het groen en beschikt over een dakkapel, royale inbouwkast met slimme opbergmogelijkheden. De tweede slaapkamer is gelegen aan de voorzijde en is ook van goed formaat. De badkamer is verzorgd en voorzien van zwevend toilet, douche, wastafel met meubel en vloerverwarming.
Tuin:
Heerlijke tuin gelegen op het zonnige zuidwesten en biedt veel privacy. De tuin is bereikbaar middels de openslaande deuren van de uitbouw of de zijpoort naast de woning. Achterin bevindt zich een vrijstaande stenen berging.
Ligging:
Dit prachtige dorp heeft prima (internationaal-) onderwijs en een actief verenigingsleven. Gunstige ligging ten opzichte van Leiden, centraal station Leiden en centrum Leiden zijn op fietsafstand. Wonen hier is bijzonder aangenaam. Tevens mag Oegstgeest zich de beste woongemeente van Zuid-Holland noemen. Door de uitvlaswegen A44/A4 ben je binnen 20 minuten in Amsterdam en Den-Haag.
Duurzaamheid;
De woning is voorzien van dubbelglas en de beglazing op de begane grond is in zijn geheel vervangen in 2023 voor HR++. De Cv-installatie is vernieuwd in 2023 en de muren zijn datzelfde jaar voorzien van spouwmuurisolatie.
Interesse? Onze makelaar Pim van der Deijl leidt u graag rond.
Heeft u interesse in een soortgelijke woning of wilt u zelf uw woning verkopen? Neem vrijblijvend contact met ons op.
Watch video
All photo's
Floor plans
Floor plans
Watch video