Egmonderstraat 31
Noordwijk- Living area 64m2
- 3 kamers
Verkocht
| Surface and volume | |
|---|---|
| Living area | 87 m2 |
| Lot size | 0 m2 |
| Volume | 272 m3 |
| Build | |
|---|---|
| Type | Appartement |
| Manufacturing year | 1982 |
| Layout | |
|---|---|
| Rooms | 3 rooms (2 slaapkamers) |
| Bathrooms | 1 badkamers, 1 aparte toiletten |
| Residential floors | 2 woonlagen |
| Energie | |
|---|---|
| Energielabel | A |
| Isolation | Dubbel glas |
| Heating | Cv ketel |
| Hot water | Cv ketel |
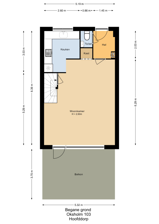
Deze ruime 3-kamer maisonnette woning is gelegen op de 1e en 2e verdieping en is geheel naar eigen smaak in te richten. Het appartement is gelegen nabij winkelcentrum 't Paradijs waar u terecht kunt voor al uw dagelijkse boodschappen.
Woonoppervlakte: 87m2; Bouwjaar: 1982; Energielabel: A
Indeling:
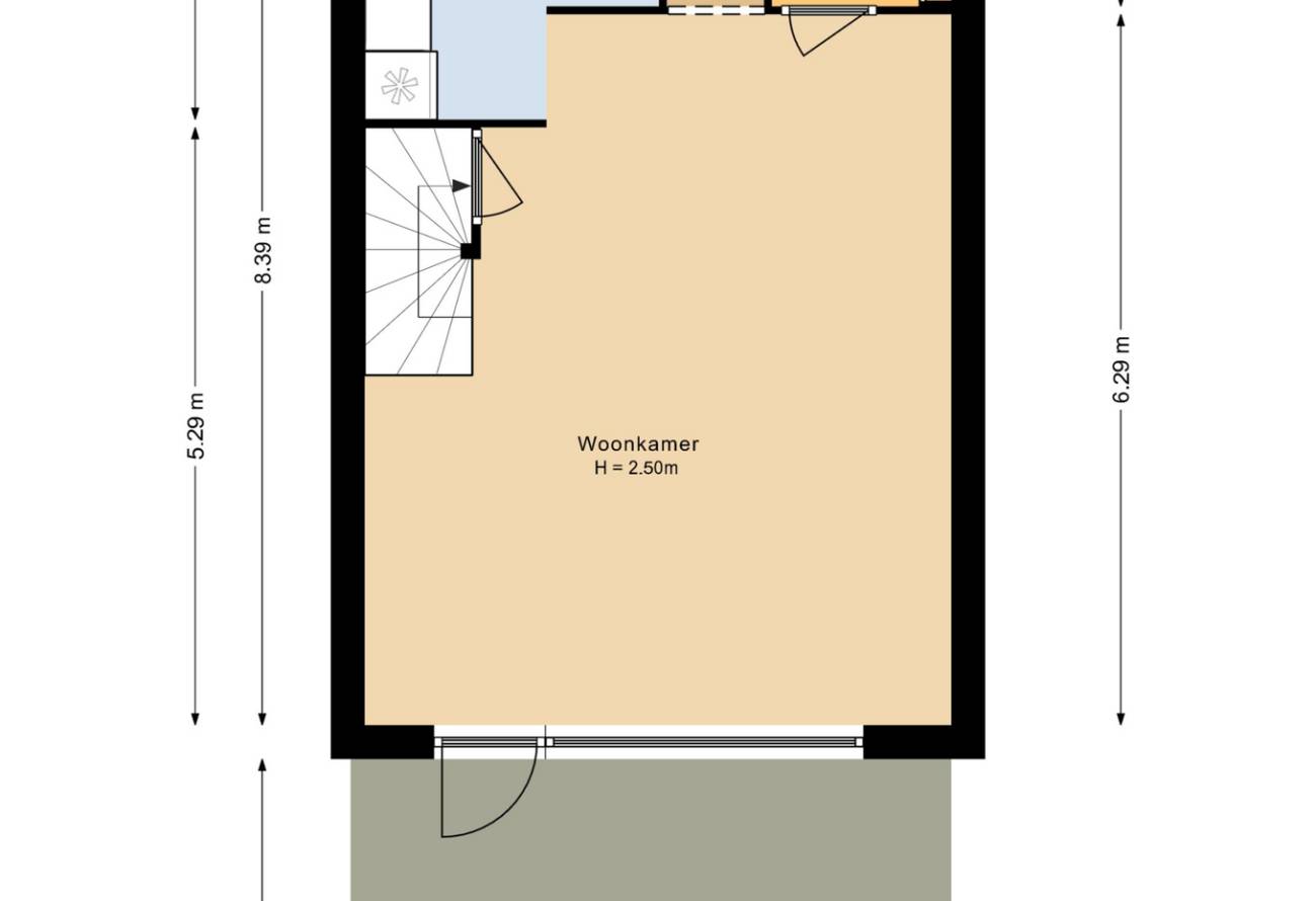
Door de entree komt u in de hal met toilet en toegang tot de zeer royale woonkamer met half open keuken en de trap naar de 2e verdieping, onder de trap treft u de trapkast. Aansluitend aan de woonkamer vindt u het ruime terras.
Via de trap naar de 2e verdieping komt u op de overloop welke toegang biedt naar de zeer ruime hoofdslaapkamer aan de achterzijde en de 2e slaapkamer en badkamer aan de voorzijde. Tevens treft u in de kast op de overloop de CV ketel.
- Ruim 3 kamer appartement
- Energielabel A
Makelaar Matthew leidt u graag rond. Bel ons voor een afspraak!
Heeft u interesse in een soortgelijke woning of wilt u zelf uw woning verkopen? Neem vrijblijvend contact met ons op.
Floor plans