Langeweg 86
Roelofarendsveen- Living area 181m2
- 8 kamers
Verkocht
| Surface and volume | |
|---|---|
| Living area | 187 m2 |
| Lot size | 372 m2 |
| Volume | 620 m3 |
| Build | |
|---|---|
| Type | Halfvrijstaande woning |
| Manufacturing year | 1976 |
| Layout | |
|---|---|
| Rooms | 7 rooms (4 slaapkamers) |
| Bathrooms | 1 badkamers, 1 aparte toiletten |
| Residential floors | 2 woonlagen |
| Energie | |
|---|---|
| Energielabel | A |
| Isolation | Dakisolatie, Muurisolatie, Vloerisolatie, Dubbel glas |
| Heating | Cv ketel, Gashaard |
| Hot water | Cv ketel |
Luxe wonen aan het water, de boot voor de deur en genieten van het uitzicht. Dat is toch ook jouw droom. Deze luxe verbouwde en uitgebouwde halfvrijstaande woning voldoet aan dit ideaalbeeld. Deze villa bestaat o.a. uit een royale living, 4 grote slaapkamers, kleedkamer, dubbele carport, goed aangelegde tuin met veranda en er is een ligplaats voor de deur.
· Bouwjaar 1976 en uitgebouwd in 2020 · Woonoppervlakte: 187m² · Inhoud: 620m³
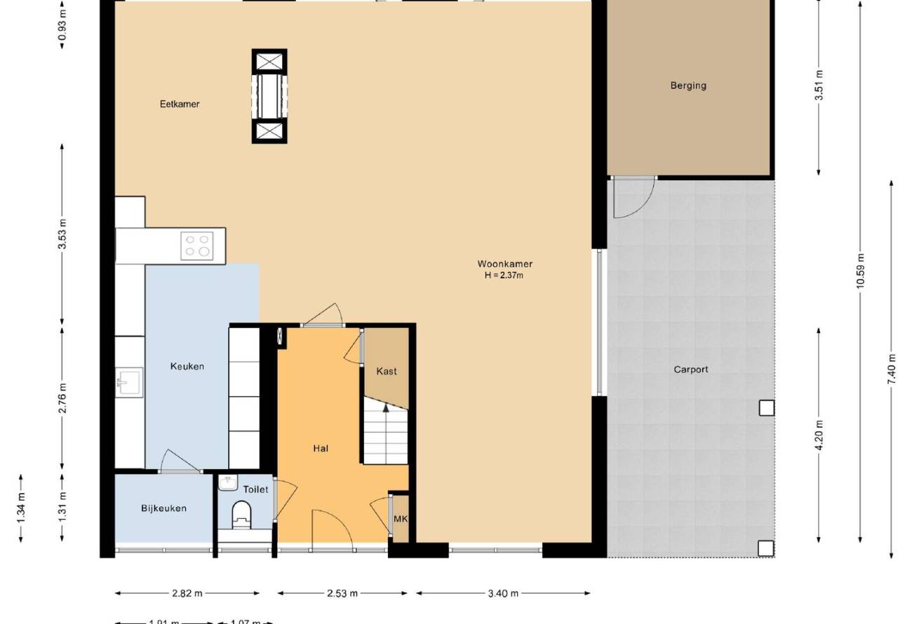
Begane grond
Voordeur met glaspartij, ruime hal met luxe toiletruimte en trapkast. De zwart stalen deur met glaspanelen biedt toegang tot de royale living. Deze woonkamer is in te richten in een zitruimte, televisieruimte en eetkamer en voorzien van een doorkijk gashaard achter glas, fraaie stuukplafond met inbouwspots, eikenhouten vloerdelen en twee schuifpuien en deur naar tuin. De open keuken heeft een Italiaanse design inrichting van Effiti en valt op door de matglazen werkbladen, de design afzuigkap en fraaie wit hoogglans kasten. Achter de keuken is er nog een grote provisieruimte.
1e Etage
Overloop, hoofdslaapkamer aan achterzijde met dakkapel en royale kleedkamer, 2e zeer grote slaapkamer met toegang tot werkplek en/of inloopkast. Verder zijn er nog een 3e en 4e slaapkamer aan de voorzijde gesitueerd alsmede een waskamer en technische ruimte. De luxe badkamer is o.a. voorzien van jacuzzi, inloopdouche, wandcloset en brede wastafel in meubel. De slaapkamers hebben alle een airco-unit.
Tuin
De goed aangelegde achtertuin is 14 meter breed en 9 meter diep en voorzien van een groot terras en fraaie veranda. De veranda heeft twee heathers, shutters en sunscreens. De privé ligplaats grenst direct aan de tuin en er is walstroom aanwezig.
Duurzaamheid
De woning is voorzien van vloer-, muur-, dakisolatie alsmede geïsoleerde beglazing. Tevens zijn er 19 zonnepanelen aanwezig. Er is dan ook een Energielabel A.
Ligging
Deze villa ligt op een prachtige plek, direct aan vaarwater en heeft prachtig uitzicht. Gelegen in een, met slagboom afgesloten en daardoor zeer veilige, woonwijk. Op korte afstand van het kleine gezellige winkelcentrum van Leimuiden, basisschool en sportvelden. Ook de grote steden zoals Amsterdam, Den Haag en Alphen aan den Rijn zijn binnen 20 tot 30 minuten bereikbaar.
Ik nodig je graag uit om ook van de luxe, de rust en het prachtige uitzicht te komen genieten. Maak daarom snel een afspraak voor een bezichtiging. Ik zie je graag, Miranda van der Wagt
Heeft u interesse in een soortgelijke woning of wilt u zelf uw woning verkopen? Neem vrijblijvend contact met ons op.
Watch video
All photo's
Floor plans
Floor plans
Watch video