
Parkhove 505
Sassenheim- Living area 97m2
- 3 kamers
Verkocht
Surface and volume | |
---|---|
Living area | 122 m2 |
Lot size | 314 m2 |
Volume | 420 m3 |
Build | |
---|---|
Type | Twee onder een kapwoning |
Manufacturing year | 1967 |
Layout | |
---|---|
Rooms | 5 rooms (4 slaapkamers) |
Bathrooms | 1 badkamers, 1 aparte toiletten |
Residential floors | 3 woonlagen |
Energie | |
---|---|
Energielabel | C |
Isolation | Dakisolatie, Muurisolatie, Dubbel glas, Hr glas |
Heating | Cv ketel, Vloerverwarming gedeeltelijk |
Hot water | Cv ketel |
Goed verzorgde 2-onder-1 kap woning met oprit aan voorzijde voor 2 auto’s, fraaie brede en diepe achtertuin en een dubbele garage achter de woning welke apart ter overname wordt aangeboden. Rijsenhout is een charmant klein dorpje gelegen aan de Ringvaart in de gemeente Haarlemmermeer. Op loopafstand van een grote supermarkt, diverse kleine winkeltjes, basisscholen, kinderopvang en bushalte.
· Bouwjaar 1967 · Woonoppervlakte: 121m² · Inhoud: 420m³
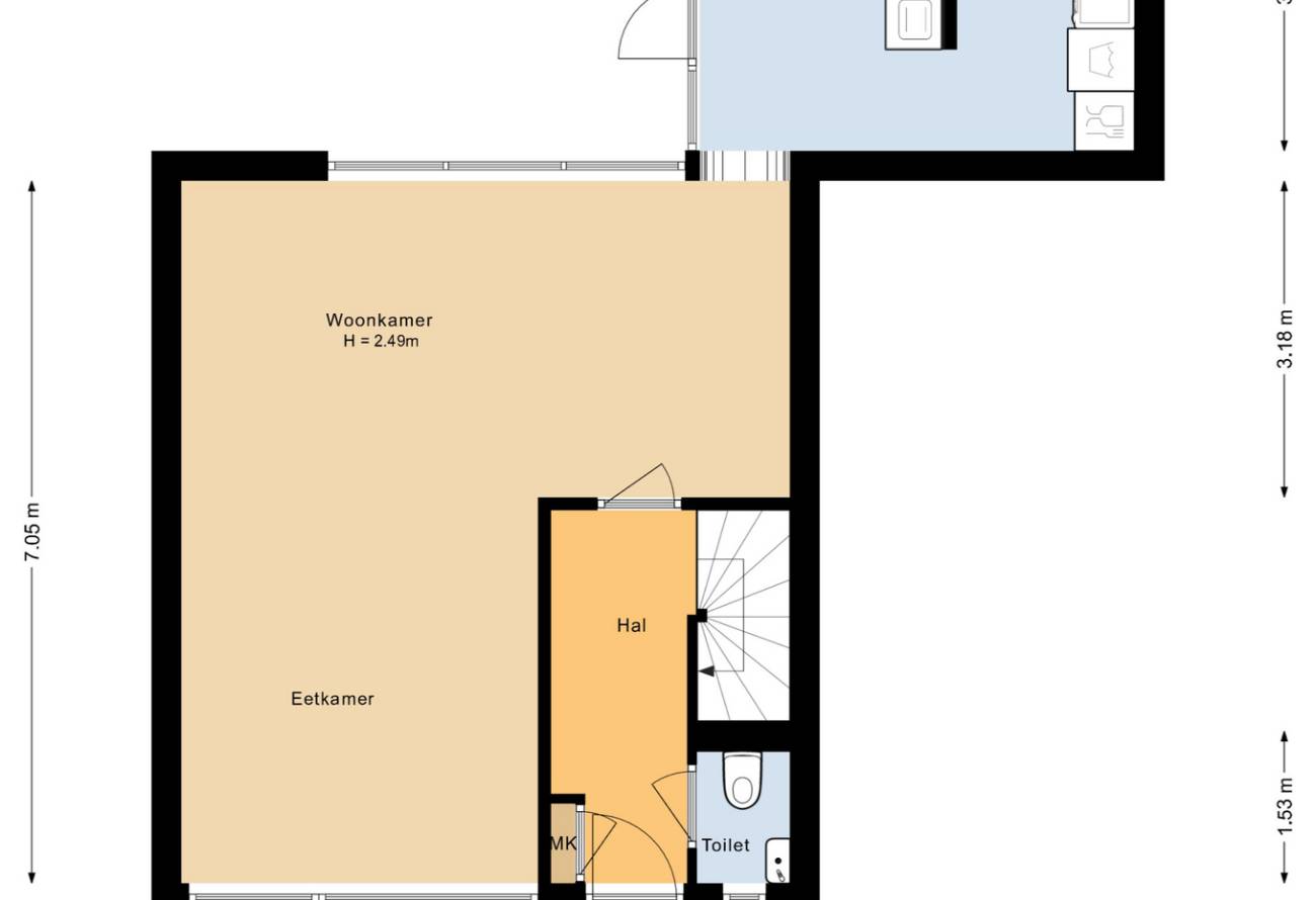
Begane grond
Entree, gang met meterkast, moderne toiletruimte en trapkast, L-vormige lichte woonkamer met terra tegelvloer met vloerverwarming en spachtelputz wanden, uitgebouwde moderne keuken in L-opstelling, witte kasten, donkergrijs MDF werkblad en diverse inbouwapparatuur, RvS strakke afzuigschouw en Quooker. Bijkeuken met aansluiting wasapparatuur, diverse kasten en werkblad. Zowel de keuken als de bijkeuken zijn voorzien van een deur naar de tuin.
1e Etage
Overloop, hoofdslaapkamer aan achterzijde met vaste kastenwand, 2e grote slaapkamer aan voorzijde en 3e kleinere slaapkamer. Alle slaapkamers zijn voorzien van een fraaie laminaatvloer met grijs eiken look. Luxe badkamer met brede wastafel voorzien van twee kranen waaronder meubel, inloopdouche met hardglazen wanden en deur, wandcloset.
2e Etage
Overloop met twee zijramen, opstelling combiketel (november 2018) en bergruimte, 4e slaapkamer met twee grote Velux vensters.
Tuin
Zeer fraai aangelegde achtertuin van 10 meter breed en 10 meter diep in een moderne Tropische stijl met veel privacy. Diverse terrassen, palmbomen en een zeer fraai verhoogde vijverpartij met o.a. een beekstroom en lopende waterpomp. Ook is er een groot elektrisch zonnescherm zodat het zelfs in de warme tropische dagen heerlijk toeven is in deze tuin.
Dubbele garage
Direct achter de tuin liggen twee garage boxen welke met elkaar in verbinding staan. Voorzien van elektra en één garage voorzien van elektrische deur. Deze dubbele garage is apart ter overname voor € 55.000,--.
Duurzaamheid
De woning is voorzien van gedeeltelijk vloer-, muur-, dakisolatie alsmede geïsoleerde beglazing (gedeeltelijk HR+ glas). De rabatdelen aan voor- en achterzijde zijn van kunststof. Tevens zijn de kozijnen aan voorzijde van kunststof. Energielabel C.
Ligging
De woning ligt in het kleine gezellige Rijsenhout op korte loopafstand naar een grote supermarkt en diverse winkeltjes. Er zijn meerdere basisscholen en kinderopvang. Rijsenhout ligt aan de Ringvaart en valt onder de gemeente Haarlemmermeer. De grotere woonplaats Aalsmeer ligt op 4 kilometer afstand en omdat Rijsenhout vlakbij de A4 ligt zijn ook de grote steden Hoofddorp, Amsterdam en Den Haag snel bereikbaar.
Ik nodig je graag uit om deze fijne woning te komen bekijken. Tot snel, Miranda van der Wagt
Heeft u interesse in een soortgelijke woning of wilt u zelf uw woning verkopen? Neem vrijblijvend contact met ons op.
Watch video
All photo's
Floor plans
Floor plans
Watch video