Kweeklust 2
Noordwijk- Living area 198m2
- 5 kamers
Verkocht
| Surface and volume | |
|---|---|
| Living area | 200 m2 |
| Lot size | 1.595 m2 |
| Volume | 800 m3 |
| Build | |
|---|---|
| Type | Vrijstaande woning |
| Manufacturing year | 1905 |
| Layout | |
|---|---|
| Rooms | 6 rooms (5 slaapkamers) |
| Bathrooms | 1 badkamers |
| Residential floors | 3 woonlagen |
| Energie | |
|---|---|
| Energielabel | G |
| Hot water | C.v.-ketel |
Heeft u altijd al aan de kust willen wonen? Dan is dit uw kans!
Hoog op een duintop in de Noordwijkse Zuidduinen en met een fantastisch uitzicht ligt de karakteristieke vrijstaande villa “Fidelio”. Op steenworp afstand van strand, zee, duinen en de gezellige boulevard.
De villa heeft een ruime lichte living, 5 grote slaapkamers, een badkamer en een ruime woonkeuken.
Bouwjaar 1905; Woonopp.ca. 200m2; Inhoud ca. 800m3; Perceel 1.595m2
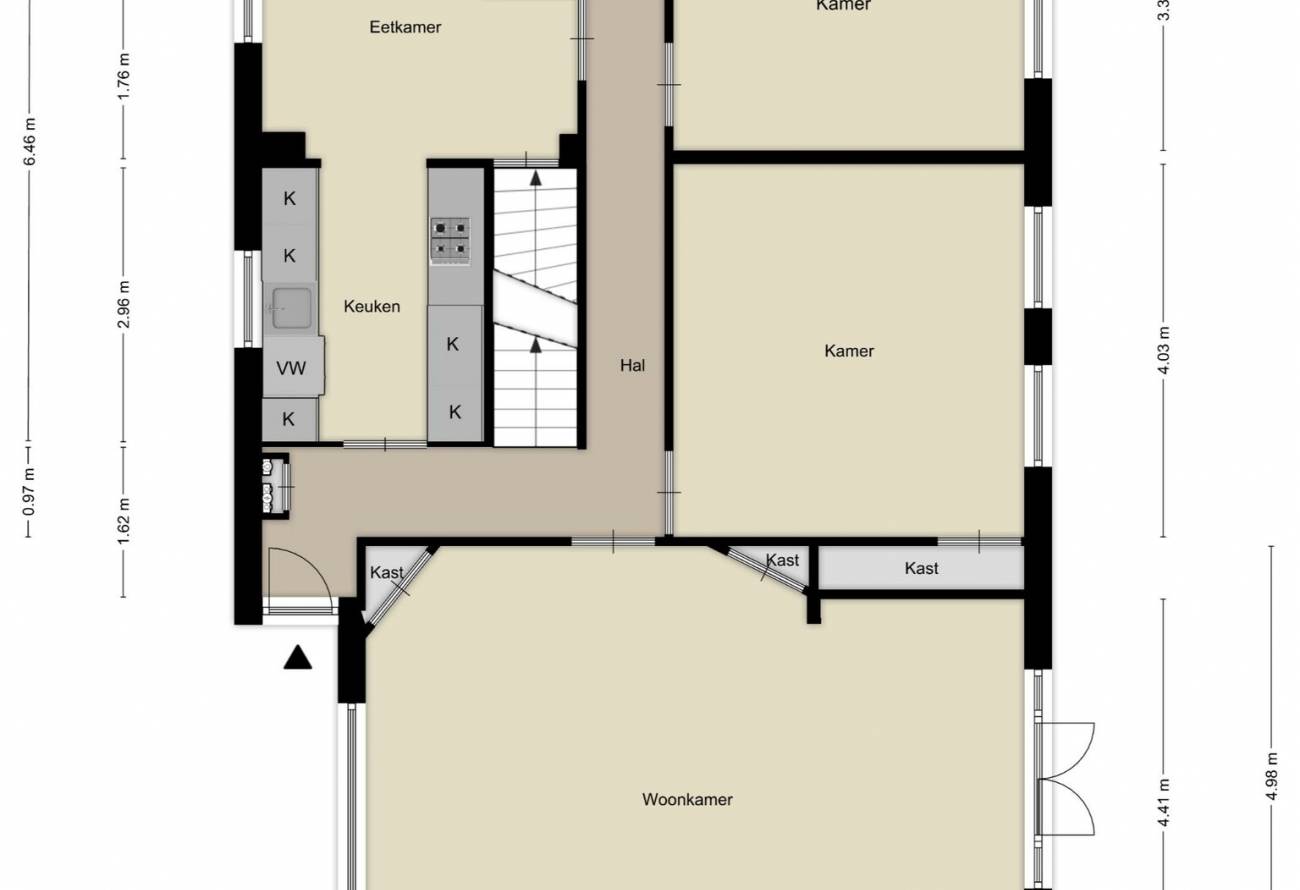
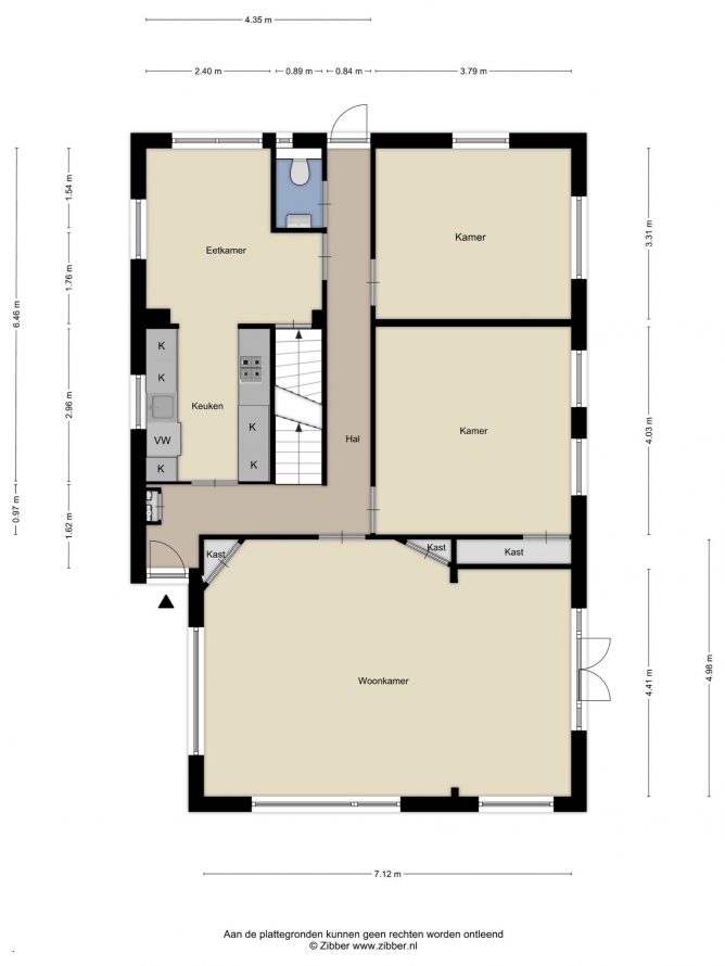
Begane grond:
Entree met separaat toilet en lange gang. Ruime lichte living met hoog plafond, hout gestookte open haard, houten vloer, veel grote ramen met een prachtig uitzicht over de Noordwijkse Zuidduinen en openslaande deuren naar het zonneterras. In de grote woonkeuken staat een lichte keuken met donker aanrechtblad en diverse inbouwapparatuur. Ook vanuit de keuken is er een fraai uitzicht over de omgeving. Op de begane grond bevinden zich nog 2 grote (slaap)kamers met veel lichtinval.
Vanuit de keuken is er toegang tot ruime de kelder/berging met de opstelplaats van de cv-ketel en een deur naar buiten.
1e verdieping:
Middels een vaste trap komt men op de overloop met vaste kasten en vlizotrap naar bergzolder.
De grote (ouder)slaapkamer heeft een eigen wastafel en openslaande deuren naar het ruime terras.
In de grote badkamer bevinden zich ook de aansluitingen voor de wasmachine en de droger.
Voorts zijn er nog 2 ruim slaapkamers.
Tuin:
Grote duintuin rondom met zonneterrassen en trap naar de straat beneden.
Parkeren;
De woning beschikt over een parkeerplaats (inham aan de weg) voor 2 auto's.
Ligging:
Op een toplokatie in de Noordwijkse duinen met een fantastisch uitzicht. Nabij strand, zee duinen, winkels en de gezellige boulevard.
++++++++++
Have you always dreamed of a house by the coast? Now is your chance!
On the top of a dune in Noordwijk's Zuidduinen and with wonderful views, you'll find the characteristic detached villa 'Fidelio'. Just a stone's throw away from the beach, sea, dunes, and the pleasant boulevard.
The villa has a spacious, bright living room, 5 big bedrooms, a bathroom, and a large eat-in kitchen.
Year of construction 1905; Living area approx. 200m2; Volume approx. 800m3; Plot 1,595m2
Ground floor:
Entrance with separate toilet and long hallway. Spacious, large living room with high ceiling, wood fireplace, wooden flooring, large windows, and a beautiful view over Noordwijk's Zuidduinen. The French doors lead to the garden with sun patio. The large eat-in kitchen has a bright kitchen area with dark worktop. The kitchen also offers a nice view of the surrounding area. The ground floor has 2 large (bed)rooms with lots of natural light.
The kitchen provides access to the spacious basement/storage room with door to the outside and where the central heating boiler is located.
1st floor:
Via a set of stairs, you arrive on the landing with built-in cabinets and a loft ladder to the storage attic.
The large (parental) bedroom has its own washbasin and French doors to the spacious patio.
The large bathroom also has connections for a washer and dryer.
There are 2 more spacious bedrooms.
Garden:
Large surrounding dune garden with sun patios and stairs leading to the street below.
Parking;
The house has parking space for 2 cars (recess by the road).
Location:
Excellently situated in the dunes of Noordwijk with fantastic views. Near the beach, sea, dunes, shops, and pleasant boulevard.
Makelaar Frits Wilbrink nodigt u van harte uit voor een bezichtiging.
Neem contact op met ons kantoor tel; 0252-419049
Met elkaar maken wij het waar(d).
Heeft u interesse in een soortgelijke woning of wilt u zelf uw woning verkopen? Neem vrijblijvend contact met ons op.
Watch video
All photo's
360° photo's
Floor plans
Floor plans
Watch video