Koningin Astrid Boulevard 16
Noordwijk- Living area 220m2
 - 7 kamers
 
Verkocht
| Surface and volume | |
|---|---|
| Living area | 604 m2 | 
| Lot size | 1.769 m2 | 
| Volume | 2.476 m3 | 
| Build | |
|---|---|
| Type | Vrijstaande woning | 
| Manufacturing year | 1992 | 
| Layout | |
|---|---|
| Rooms | 8 rooms (5 slaapkamers) | 
| Bathrooms | 4 badkamers, 1 aparte toiletten | 
| Residential floors | 4 woonlagen | 
| Energie | |
|---|---|
| Energielabel | B | 
| Isolation | Dakisolatie, Muurisolatie, Vloerisolatie, Dubbel glas, Volledig geisoleerd | 
| Heating | Cv ketel | 
| Hot water | Cv ketel | 
Imposant landhuis met binnenzwembad en driedubbele garage gelegen aan vaarwater met directe vaarverbinding naar het Braassemmermeer. 
Ervaar alle luxe en comfort die deze villa biedt en geniet van het weidse uitzicht over het water en de achtergelegen landerijen.  Een unieke, rustige locatie tussen Alphen aan den Rijn en Woubrugge.
•	Grote villa
•	Aan vaarwater
•	8 kamers waarvan 5 slaapkamers
•	Verwarmd zwembad
•	Garage voor 3 auto’s
•	Insteekhaven
•	Aanlegsteiger
•	Royaal parkeergelegenheid op eigen terrein
•	10 minuten fietsen naar het centrum van Alphen aan den Rijn
•	5 minuten fietsen naar het centrum van Woubrugge
Bouwjaar 1992 in 2014 grondig verbouwd, woonoppervlakte 604m2, inhoud 2.476m3, perceel 1.769m2
De woning;
Begane grond
Alle vertrekken zijn royaal van afmeting. Vanuit de ruime hal is er toegang tot een fraaie werkkamer met doorgang middels openslaande deuren naar de living. De gashaard geeft een extra dimensie aan de toch al sfeervolle woonkamer, de airco zorgt voor een aangenaam leefklimaat. De luxe woonkeuken (Schmit 2018) is voorzien van diverse luxe inbouwapparatuur en een groot eiland met eetmogelijkheid. Meerdere openslaande deuren leiden naar het grote terras. Een ingenieuze glazen balustrade die elektrisch te verhogen is tot een 2 meter hoog windscherm in combinatie met het zonnescherm, maken het terras tot een behagelijke plek om te vertoeven.
Genoeg ruimte voor de hele familie of een gezellig feestje.
1e Verdieping
Deze verdieping telt maar liefst 5 ruime slaapkamers en 3 luxe badkamers. Er bevinden zich 3 airco’s en 4 loggia’s/dakterrassen.
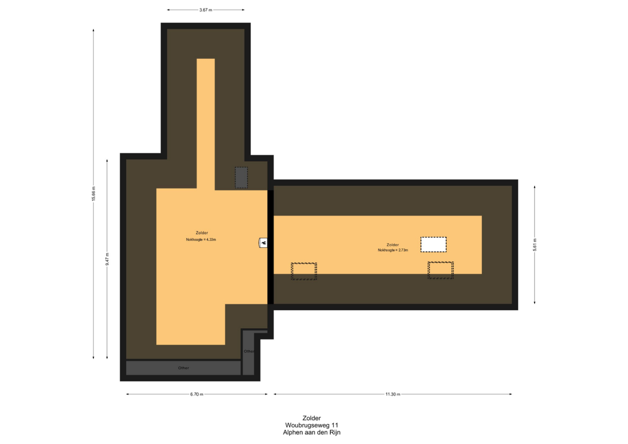
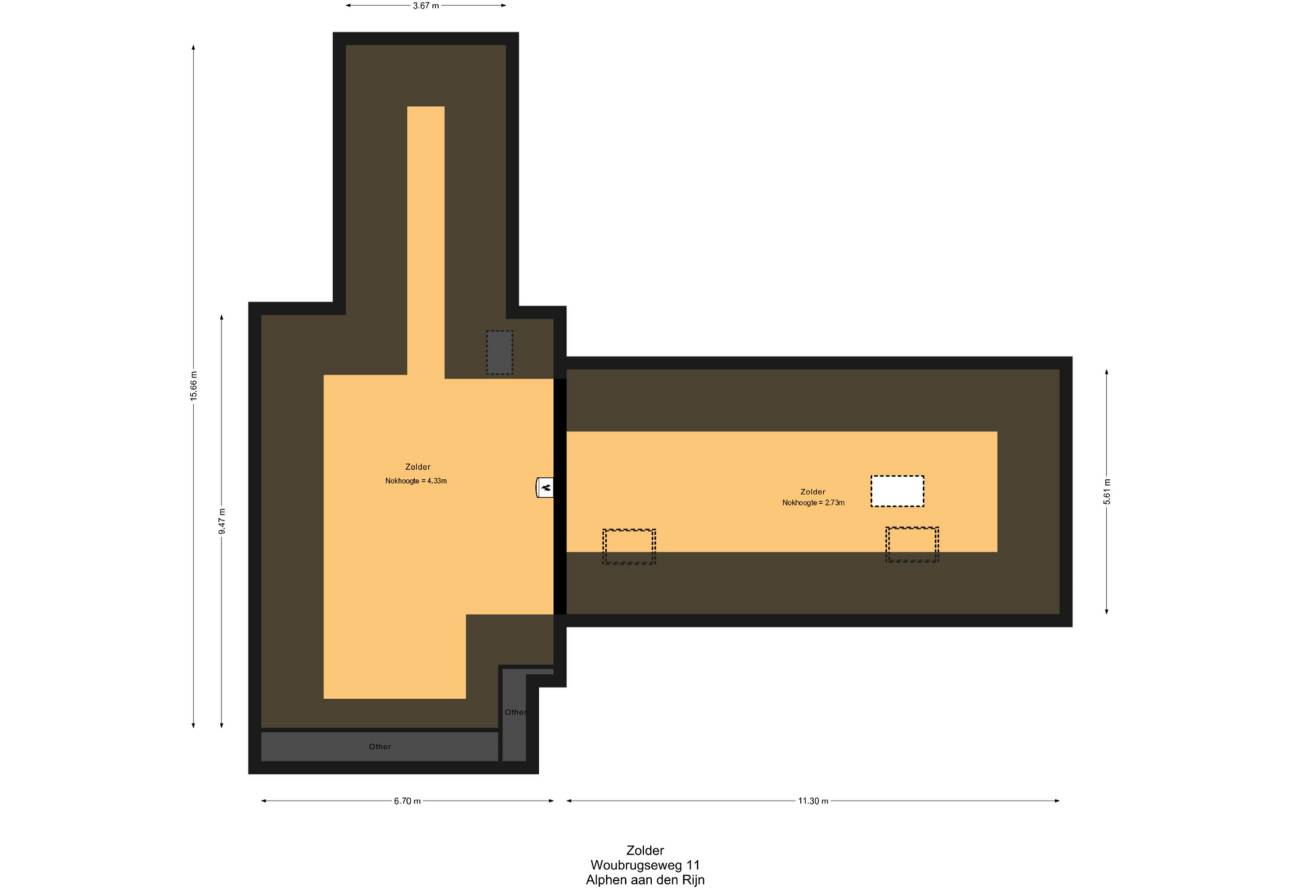
Diverse bergruimten en de grote bergzolder zorgen voor voldoende ruimte voor het opbergen van overige benodigdheden.
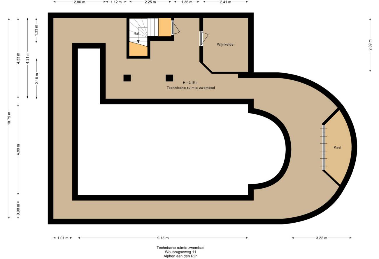
Kelder/souterrain
Hier is het verwarmde zwembad te vinden, met aparte bad- en toiletruimte. De ronde glazen pui met openslaande deuren zorgt voor een fraaie verbinding met de tuin. Aan de voorzijde bevindt zich de grote garage met 3 elektrisch bedienbare deuren.
Tuin
Ook de onder architectuur aangelegde tuin is voorzien van luxe en comfort; zo is er een beregeningsinstallatie, verlichting, verhoogd terras met elektrisch bedienbaar zonnescherm en een glazen balustrade/windscherm.  Over de gehele breedte van de tuin is een aanlegsteiger gerealiseerd met zwemtrap en bovendien is er een insteekhaven met boothuis.  Een ideale locatie voor watersporters. 
Aan de voorzijde is er  parkeergelegenheid voor wel 10 auto’s. De hoge haag en het sierhek zorgen dat de privacy gewaarborgd is.
Duurzaamheid
De woning heeft energielabel B wat betekent dat het goed geïsoleerd is maar er nog verbeteringen mogelijk zijn. Zo zou er nog verbetering kunnen worden gevonden in het plaatsen van zonnepanelen en zonnecollectoren, eventueel in combinatie met een hybride warmtepomp.
Ligging
Gelegen op een rustige locatie tussen Alphen aan den Rijn en Woubrugge maar met alledaagse woonvoorzieningen binnen handbereik. Zo bereik je het winkelcentrum van Alphen aan den Rijn met de fiets binnen 10 minuten, evenals scholen, (water)sportaccommodaties en restaurants. Het centrum van Woubrugge ligt op 5 minuten fietsen.
Goed om te weten
•	Op een fantastische locatie, zeker als je van watersport houdt;
•	Gelegen aan het water met eigen aanlegsteiger, zwemtrap, insteekhaven en boothuis;
•	Alarminstallatie met bewegings- en contactsensoren;
•	Camera beveiliging;
•	Op afstand bedienbaar sierhek met intercom;
•	3 dubbele garage met elektrische roldeuren (vernieuwd in 2021);
•	Parkeerplaats voor 8 tot 10 auto’s op eigen terrein;
•	Airconditioning;
•	Op afstand bedienbaar windscherm aan zonneterras;
•	Inpandig verwarmd zwembad;
•	(wijn)kelder;
•	Rolhorren in de deuren;
•	Sauna;
•	Beregeningsinstallatie;
•	Bliksemafleiders;
•	Eenvoudig aan te passen voor dubbele bewoning/mantelzorg;
De woning ligt aan de zogenaamde mastenroute. Dit is de enige route van Delfzijl tot Rotterdam waar alle boten met diepgang, zoals zeilboten en daarnaast de beroepsvaart, hun doorgaande route hebben. Dit betekent dat er het hele jaar veel interessante scheepvaart bekeken kan worden. Er is het hele jaar veel te zien op het water voor het huis.
Makelaar Frits Wilbrink leidt je graag rond.
Bel ons kantoor voor een afspraak!
Heeft u interesse in een soortgelijke woning of wilt u zelf uw woning verkopen? Neem vrijblijvend contact met ons op.
        Watch video
All photo's
Floor plans
        Floor plans
Watch video