
Exclusieve vrijstaande villa midden in het bos, een leven in harmonie met de natuur.
De sfeervolle villa “Vogeltjesduyn” ligt te midden van het groen, omgeven door rust, ruimte en privacy. In deze hoogwaardig gebouwde villa woont u letterlijk één met de natuur, terwijl u geniet van luxe en comfort.
Zo beschikt het over:
• 3 slaapkamers
• 2 badkamers
• Trap en lift naar alle verdiepingen
• Gelegen in het bos
• Op fietsafstand van winkels
• Haven met 3 aanlegplaatsen
Bouwjaar 2019, woonoppervlakte 297m², inhoud 1.
Exclusieve vrijstaande villa midden in het bos, een leven in harmonie met de natuur.
De sfeervolle villa “Vogeltjesduyn” ligt te midden van het groen, omgeven door rust, ruimte en privacy. In deze hoogwaardig gebouwde villa woont u letterlijk één met de natuur, terwijl u geniet van luxe en comfort.
Zo beschikt het over:
• 3 slaapkamers
• 2 badkamers
• Trap en lift naar alle verdiepingen
• Gelegen in het bos
• Op fietsafstand van winkels
• Haven met 3 aanlegplaatsen
Bouwjaar 2019, woonoppervlakte 297m², inhoud 1.468m³, perceeloppervlakte 18.030m²
De villa is tot in detail afgewerkt met oog voor kwaliteit en stijl. Grote raampartijen zorgen voor een overvloed aan licht en bieden een prachtig uitzicht op de omliggende tuin en bossen. De woning ademt een gevoel van warmte en geborgenheid, een plek waar het écht fijn thuiskomen is.
De indeling is als volgt:
Begane grond
Via de indrukwekkende centrale hal met fraaie bordestrap en lift bereikt u alle vertrekken. De lichte woonkamer is een heerlijke ruime plek om van de rust en het uitzicht te genieten en biedt direct toegang tot de veranda. De open haard en vloerverwarming zorgen samen voor nog meer sfeer en comfort. Aan de voorzijde van de woning bevindt zich een sfeervolle herenkamer (of eetkamer) met uitzicht op het bos. Tussen deze kamers in bevindt zich een ruime werkplek.
De royale, sfeervolle woonkeuken heeft een hoog plafond, een entresol, moderne inbouwapparatuur waaronder een Amerikaanse koelkast en een luxe AGA inductiefornuis met 4 ovens. Aansluitend is er een praktische bijkeuken. De dakramen en de houtkachel maken de keuken tot een fijne, warme plek om te koken en te eten. Vanuit de keuken loopt u zo de veranda op, waar een houtkachel ervoor zorgt dat u het hele jaar kunt genieten van het buitenleven.
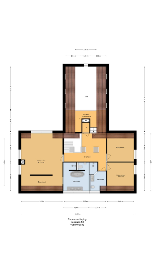
1e etage
De bovenverdieping heeft een ruime overloop met dakramen voor extra licht. De royale hoofdslaapkamer beschikt over een slim geplaatste kleedkamer en een eigen luxe badkamer met ligbad, inloopdouche, groot wastafelmeubel, een toilet en een urinoir. Daarnaast zijn er nog twee ruime slaapkamers en een tweede badkamer, perfect voor gezin of gasten. Via de overloop is de entresol bereikbaar welke ook gebruikt kan worden als logeerkamer en dakkapellen zorgen op de verdieping voor extra ruimte en lichtinval. Bovendien is er nog een vliering.
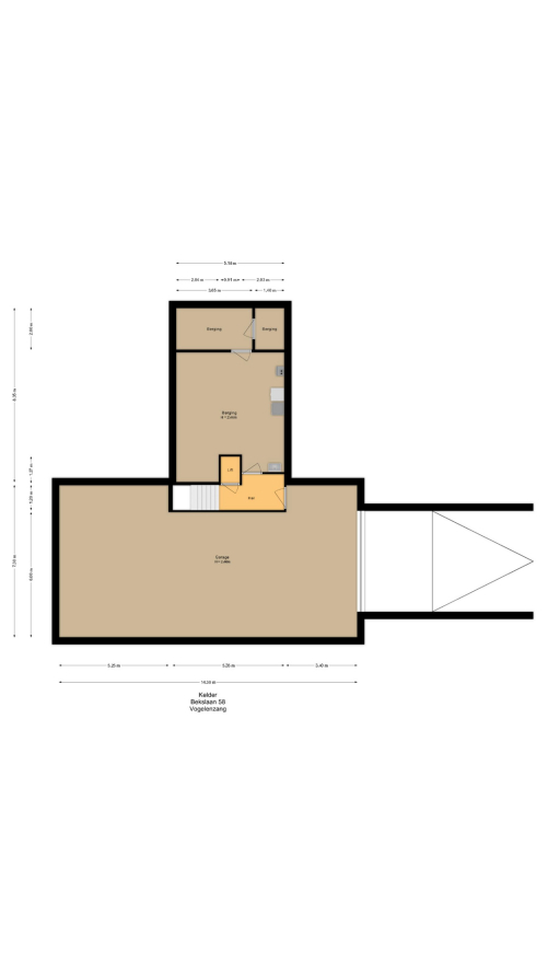
Kelder
In de grote kelder bevindt zich de royale, dubbele garage voor wel 4 auto’s met een oplaadpunt voor de elektrische auto, een bergruimte/wijnkelder en een grote stook-/ wasruimte.
Duurzaamheid en comfort
De woning is in 2019 gebouwd en uitstekend geïsoleerd. Zo is het voorzien van:
• Vloerisolatie
• Dakisolatie
• Muurisolatie
• HR++ glas
• Vloerverwarming als hoofdverwarming
Hierdoor beschikt de woning over energielabel A.
Ligging
De villa ligt op een uniek perceel van ruim 18.000 m² midden in het bos. Hier geniet u van absolute rust, privacy en natuur, zonder concessies te doen aan bereikbaarheid. Winkels en scholen liggen op fietsafstand. Een zeldzame combinatie van luxe wonen en leven in de natuur met alledaagse voorzieningen binnen handbereik.
Water
In het water is een eigen haven met ligplaats voor drie sloepen. Vanuit hier vaart u rechtstreeks de Leidsche Vaart op naar o.a. Haarlem of Kagerplassen.
Bijzonderheden:
• Natuurstenenvloer (Bourgondische dallen)
• Vloerverwarming in de gehele woning
• Garage met vloerverwarming en gevlinderde vloer
• Elke verdieping is bereikbaar met de lift
• Massief eiken deuren
• Alarminstallatie
• Gebouwd met handgevormde klinkers
• Gepotdekseld met onderhoudsvriendelijk Red Cedar.
Frits Wilbrink leidt u graag rond. Bel ons kantoor voor een afspraak.
Vul het onderstaande contactformulier in en wij nemen zo snel mogelijk contact met je op.

Bezoekadres:
Wilbrink & v.d. Vlugt Makelaars
Heereweg 231
2161BG Lisse
KVK: 28070221