
Waar wonen een kunstvorm wordt
Soms verschijnt er een woning die meer is dan een huis — een architectonisch statement, een levensstijl, een beleving.
Buitenwater 2 in Warmond is zo’n zeldzame residentie: een exclusieve villa aan het water waar luxe, rust en verfijning samenkomen.
Met oog voor elk detail ontworpen en gebouwd, biedt deze villa een uitzonderlijk niveau van comfort en afwerking. Een thuis met privézwembad, wellness, gym en bioscoop – tot in de kleinste details perfect uitgevoerd.
Waar wonen een kunstvorm wordt
Soms verschijnt er een woning die meer is dan een huis — een architectonisch statement, een levensstijl, een beleving.
Buitenwater 2 in Warmond is zo’n zeldzame residentie: een exclusieve villa aan het water waar luxe, rust en verfijning samenkomen.
Met oog voor elk detail ontworpen en gebouwd, biedt deze villa een uitzonderlijk niveau van comfort en afwerking. Een thuis met privézwembad, wellness, gym en bioscoop – tot in de kleinste details perfect uitgevoerd.
MEESTERWERK AAN HET WATER
Met haar rieten kap, sculpturale lijnen en ligging aan het water is deze villa een herkenningspunt in de regio - ontworpen door Van Manen Architecten, bekend om hun tijdloze en elegante stijl.
Het perceel van 2.089 m² is onder architectuur aangelegd en biedt maximale privacy.
De woning beschikt over 573 m² woonoppervlak en een inhoud van 2.306 m³ – ruim, harmonieus en evenwichtig van proportie.
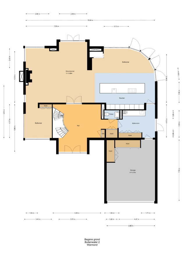
BEGANE GROND – RUIMTE EN LICHT
De imposante entree met vide en dubbele deuren geeft direct een gevoel van grandeur.
De royale woonkamer met open haard staat in verbinding met zowel de tuin als de eetkamer, en kan met houten schuifdeuren worden afgesloten.
De leefkeuken is voorzien van een kook-/spoeleiland in Patagonia kwartsiet en apparatuur van Gaggenau.
Een bijkeuken met doorgang naar de dubbele inpandige garage maakt de begane grond compleet.
Hoge raampartijen en openslaande deuren zorgen voor een naadloze overgang tussen binnen en buiten.
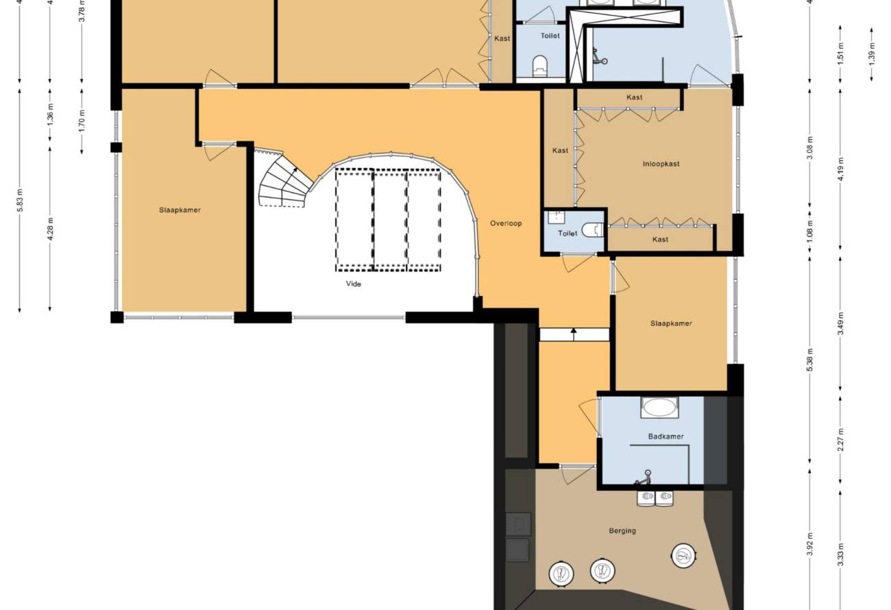
VERDIEPING – PRIVATE RETREAT
De master suite vormt een oase van rust met gashaard, panoramisch uitzicht en een luxe badkamer met jacuzzi, sunshower en separate toiletruimte.
Aangrenzend bevindt zich een ruime kleedkamer.
Daarnaast zijn er drie slaapkamers en een tweede badkamer met regendouche, toilet en was-/stookruimte.
De master bedroom fungeert tevens als saferoom met staalversterkte houten deuren.
SOUTERRAIN – WELLNESS & ENTERTAINMENT
Het souterrain is gewijd aan ontspanning en welzijn.
Het verwarmde binnenzwembad van 13 meter vormt het hart van deze verdieping – omgeven door wanden die golven als een berglandschap, met een subtiel verlichte waterval als blikvanger.
Een unieke ruimte die rust en elegantie uitstraalt.
Verder zijn er een fitnessruimte, stoomcabine, droge ( Finse )-infraroodsauna en een privébioscoop – alles voor ultiem comfort en privacy.
TUIN – LEVEN AAN HET WATER
De onder architectuur aangelegde tuin biedt diverse terrassen, volwassen beplanting en kleurrijke borders.
Aan de waterzijde bevindt zich een boothuis van 53 m² met op afstand bedienbare bootlift (voor een sloep tot 11 meter) en een overdekte veranda met houtgestookte haard.
De lange aanlegsteiger met zwemtrap biedt directe toegang tot de Kagerplassen, de Leidse grachten en het Braassemermeer.
Een plek waar wonen en waterleven één worden.
DUURZAAMHEID & COMFORT
• Gebouwd in 2010 met hoogwaardige isolatie
• HR+++ glas en vloerverwarming in de gehele woning
• Aardwarmtepomp en airconditioning
• Geavanceerde domotica en GBS-systeem
• Energielabel A+
BIJZONDERHEDEN
• Hoge, massief houten deuren en maatwerk inbouwkasten
• Turks hardsteen op de begane grond, eikenhout op de verdieping
• Domotica en Sonos speakers binnen en buiten
• Laadpaal voor elektrische auto
• Alarm- en camerasysteem
• Beregeningsinstallatie en tuinverlichting
EEN ZELDZAME VONDST
Villa’s van dit niveau verschijnen zelden op de markt.
Buitenwater 2 biedt een unieke combinatie van luxe, rust en tijdloze klasse – een woning voor wie alleen het beste voldoende is.
Neem contact op met ons kantoor voor een exclusieve bezichtiging.
Vul het onderstaande contactformulier in en wij nemen zo snel mogelijk contact met je op.

Bezoekadres:
Wilbrink & v.d. Vlugt Makelaars
Heereweg 231
2161BG Lisse
KVK: 28070221