Langeweg 86
Roelofarendsveen- Woonoppervlakte 181m2
- 8 kamers
Verkocht
| Oppervlakte en inhoud | |
|---|---|
| Woonoppervlakte | 219 m2 |
| Perceeloppervlakte | 499 m2 |
| Inhoud | 971 m3 |
| Bouw | |
|---|---|
| Type | Twee onder een kapwoning |
| Bouwjaar | 2007 |
| Indeling | |
|---|---|
| Kamers | 6 kamers (4 slaapkamers) |
| Badkamers | 2 badkamers, 2 aparte toiletten |
| Woonlagen | 4 woonlagen |
| Energie | |
|---|---|
| Energielabel | A |
| Isolatie | Volledig geisoleerd |
| Verwarming | Cv ketel, Vloerverwarming gedeeltelijk |
| Warm water | Cv ketel |
Aan de rand van Leiden in het Groene Hart op 499m2 eigen grond, in 2007 gebouwde, luxe rietgedekte, half vrijstaande Poldervilla (219m2 woonopp.).
Voorzien van kelder, inpandige dubbele garage en ruime parkeergelegenheid op eigen terrein. Energie zuinig met comfortabele vloerverwarming.
Deze unieke woning is gelegen in de groene kindvriendelijke villawijk Driegatenbrug langs de rivieren de Dwarswatering en de Zijl met uitzicht op de Boterhuispolder.
De villa is eventueel te koop met eigen ligplaats in de nabijgelegen privé sloepenhaven.
Dit bijzondere huis, vooral de ruimte binnen en buiten, moet u echt zien om het ten volle te kunnen waarderen. Maak een afspraak, kom kijken en laat u verrassen!
Bouwjaar 2007, woonoppervlakte 219m², perceeloppervlakte 499m², inhoud 975m³, balkonterras 43m², garage 39m², kelder 17m².
Wat direct opvalt is de duurzame rietgedekte gevel die de woning als een soort molenkap omgeeft. Hiermee heeft de architect de villa in harmonie gebracht met de groene omgeving. Deze villa straalt exclusiviteit uit.
Op de begane grond kunt u genieten van de grote woonkeuken en de dubbele garage.
Op de eerste verdieping is de woonkamer met uitzicht over een boomgaard en de Boterhuispolder. Grenzend aan de woonkamer bevindt zich een riant balkonterras. De vier royale slaapkamers bevinden zich op de overige twee woonlagen. Handig en luxe zijn de twee badkamers, vooral voor grotere gezinnen of wanneer u vaak logés heeft.
Gunstige ligging t.o.v. winkels, sport- en recreatievoorzieningen, ziekenhuizen, scholen en uitvalswegen A4/N11 (Den Haag/Amsterdam (Schiphol)/Utrecht.
Het bruisende centrum van Leiden is snel per fiets te bereiken.
Kortom, deze woning biedt een perfecte leefomgeving voor jong en oud!
Indeling:
Begane grond:
Entree woning. Vanuit de royale hal bereikt u een garderobe, een toiletruimte, berging met wasruimte, de kelder en de grote inpandige garage. Via dubbele openslaande binnendeuren betreedt u de royale woonkeuken met dubbele schuifpui naar de tuin. Een heerlijke lichte ruimte door de grote raampartijen tot aan de vloer met een aantrekkelijk uitzicht op de tuin en het terras op het zuidwesten. Het luxe keukenblok in L-vorm is voorzien van allerhande topkwaliteit inbouwapparatuur (o.a. een Quooker heetwaterkraan)
De woonkeuken is voorzien van comfortabele vloerverwarming.
1e Etage:
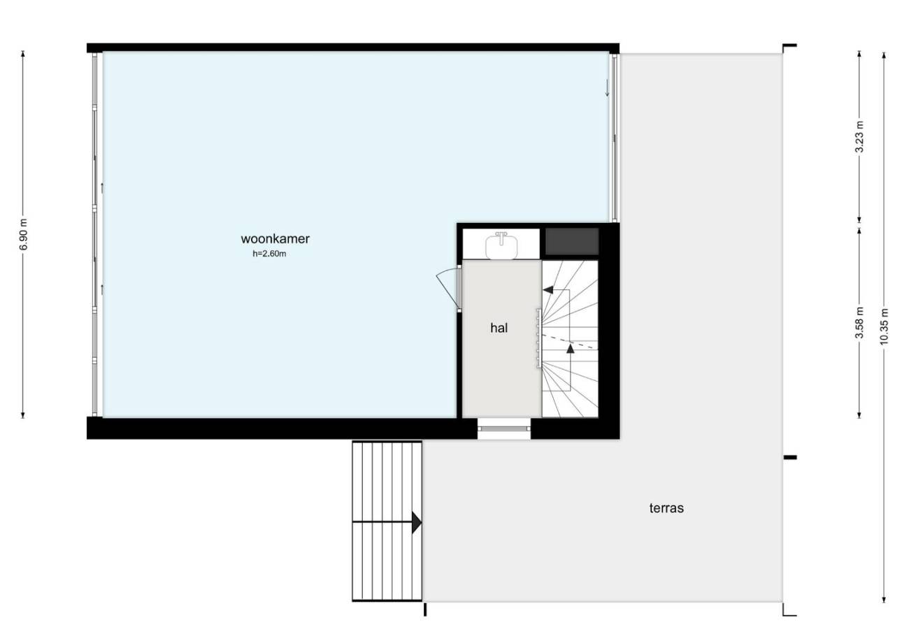
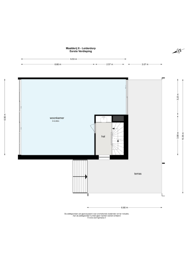
Hal met tweede entree en een handige pantry met gootsteen en koelkast voor een hapje of drankje. De riante living heeft een prachtig panoramaraam met schuifdeuren en een weids uitzicht over een boomgaard en de Boterhuispolder. Een schuifpui aan de andere zijde van de living geeft toegang tot het heerlijk zonnige balkonterras op het zuidwesten dat tevens is te bereiken via de brede buitentrap. De gehele verdieping is voorzien van vloerverwarming
2e Etage:
Overloop met 2 ruime slaapkamers, een apart toilet en een luxe badkamer met inloopdouche en dubbele wastafel in meubel. De slaapkamers zijn ruim van opzet en hebben beiden fraai uitzicht om bij weg te dromen…
3e Etage:
Overloop met daglichtkoepel en toegang tot de 3e en 4e ruime slaapkamer. Hier bevindt zich de 2e luxe badkamer met lichtkoepel voorzien van een inloopdouche, toilet en wastafel. Separate ruimte voor de cv-ketel en de mechanische ventilatie-unit.
Tuin en algemeen groen in de wijk:
De mooi aangelegde tuin met grote oprit is goed onderhouden en ruim van opzet. Het algemene groenpark van de wijk wordt door de bewoners in eigen beheer onderhouden middels een groenvereniging in samenwerking met de gemeente. De groenvereniging voert het werk uit via een professionele hovenier. Hiervoor wordt vanaf 2024 een kleine maandelijkse vergoeding gevraagd aan de bewoner-leden van de groenvereniging.
De wijk ziet er daardoor zeer verzorgd en aantrekkelijk uit.
(Bijzonderheden: de Poldervillawijk Driegatenbrug is in een gebied ontwikkeld waar een instandhoudings- en onderhoudsverplichting geldt. Hiervoor is een groenvereniging opgericht waarin alle eigenaren van de Poldervilla's participeren.)
Sloepenhaven:
De leuke privé sloepenhaven aan de Dwarswatering met directe verbinding tot de Kagerplassen is op loopafstand en alleen toegankelijk voor eigenaren van een insteekhaven. De huidige eigenaren bieden een privé insteekhaven voor een sloep, apart te koop aan.
Ligging:
Leiderdorp heeft veel te bieden met een verrassende variatie aan winkels, sport- en recreatie voorzieningen. Ook beschikt het over een breed scala aan onderwijsmogelijkheden (o.a. internationaal, Montessori)
Leiderdorp is uitstekend bereikbaar via de rijkswegen A4, A44 en de N11 en ligt bijzonder gunstig ten opzichte van Amsterdam (Schiphol), Den Haag en Utrecht. Het Centraal Station in Leiden ligt op 10 min fietsen.
Het historische centrum van Leiden met zijn gezellige horeca en mooie musea is ook op fietsafstand.
Met stad, groen en water in de directe omgeving is wonen hier fantastisch!
Deze Poldervilla met zijn 4 woonlagen, 2 badkamers, 4 royale slaapkamers, kelder, dubbele garage, grote woonkeuken en riante woonkamer met fantastisch uitzicht op de boomgaard en de Boterhuispolder, is uw bezichtiging meer dan waard!
Komt u ook kijken? We maken graag een afspraak met u.
Zie ook internet Maalderij6.nl !
Bijzonderheden:
• Half vrijstaande poldervilla met rietgedekte gevels in ruime en groene omgeving
• Op de rand van stad (Leiden) en land (Boterhuispolder)
• Prachtig uitzicht vanuit de living, slaapkamers op boomgaard en Boterhuispolder
• Ruime en droge kelder met tegelvloer
• Praktische aparte wasruimte
• Grote dubbele garage met berging
• Riant zonnig terras 1e verdieping op het zuidwesten
• Comfortabele vloerverwarming in de keuken en in de living
• Centraal stofzuigsysteem door de gehele woning
• Groot automatisch zonnescherm boven schuifpui keuken op het zuidwesten
• Ruime groene wijk met mooie zichtlijnen creëert het concept “te gast in de polder"
• Uitstekend onderhoud van het groen in de wijk door Groenvereniging
• Privé sloepenhaven op loopafstand (ligplaats is apart te koop)
• De Kagerplassen voor watersport liefhebbers liggen om de hoek
• Lokale boerderijwinkels voor zuivel en biologisch vlees op fietsafstand
• Internationale basisschool in Leiderdorp
• Winkelvoorzieningen op loop- en fietsafstand
• Platte dak met balustrade uitstekend geschikt voor zonnepanelen
• Energie label A
**************
On the edge of Leiden in “Het Groene Hart” on a 499 m2 plot, a semi detached, architect-designed Polder Villa. It has a basement, double garage and ample parking space on site. Located in the green child-friendly residential area Driegatenbrug along the rivers Dwarswatering and Zijl with a view on De Boterhuispolder. The private berth for a sloop in the nearby private sloop marina is also for sale.
What is immediately striking is the thatched facade that surrounds the house like a mill hood is unique. In this way, the architect has brought the villa in harmony with the natural environment.
This villa exudes exclusivity and stands on a remarkably large plot with ample parking on site. On the first floor you can enjoy the large living kitchen and double garage. The living room is situated on the second floor with a fantastic view over an orchard and the Boterhuispolder. Adjacent to the living room is a spacious balcony terrace. The four spacious bedrooms are located on the other two floors. Convenient and luxurious are the two bathrooms, especially for larger families or when you often have guests. Conveniently located to stores, sports and recreation facilities, hospitals, schools and roads A4 / N11 (The Hague / Amsterdam (Schiphol) / Utrecht. The vibrant centre of Leiden is quickly reached by bicycle. In short, this property offers a perfect living environment for young and old!
Features:
Built in 2007, living area 219m², plot size 499m², capacity 975m³, balcony terrace 43m², garage 39m², basement 17m².
Layout:
1st floor:
Entrance house. From the spacious hall you reach a cloakroom, a toilet room, laundry, the basement and the large garage. Through double sliding doors you enter the spacious living kitchen with double sliding doors to the garden. A lovely bright room with large windows from floor to ceiling providing an attractive view of the garden and terrace on the southwest. The luxury kitchen in L-shape is equipped with a range of top quality appliances (including a Quooker hot water tap). The kitchen is equipped with comfortable floor heating.
2nd Floor;
Hall with second entrance and a convenient pantry with sink and fridge for a snack or drink. The spacious living room has a beautiful panoramic window with sliding doors providing a beautiful wide view over an orchard and the Boterhuispolder. A sliding door on the other side of the living gives access to the lovely sunny balcony terrace facing southwest which is also accessible via the wide outdoor staircase. The entire floor is equipped with comfortable floor heating
3rd Floor;
Landing with 2 spacious bedrooms, a separate toilet and a luxurious bathroom with walk-in shower and double washbasins. The bedrooms are spacious and both have beautiful views to dream away ...
4th Floor;
Landing with daylight dome and access to the 3rd and 4th spacious bedrooms. Here is the 2nd luxury bathroom with skylight, a walk-in shower, toilet and wash-basin. Separate closet for the boiler and mechanical ventilation unit.
Garden and general greenery in the area:
The beautifully landscaped garden with large driveway is well maintained and spacious. The general green area of the neighbourhood is maintained by the residents through a Green Association in cooperation with the municipality. The Green association carries out the work through a professional landscaper. For this, from 2024 onwards, a small monthly fee will be charged to the resident members of the Green Association.
As a result, the neighbourhood looks very well cared for and attractive.
(Specifics: the Polder Villa area Driegatenbrug is developed in an area where a conservation and maintenance obligation applies. For this purpose, a green association was established in which all owners of the Polder Villas participate).
Sloop marina:
The nice private sloop marina on the Dwarswatering with direct connection to the Kagerplassen is within walking distance and only accessible to owners of a berth in the marina. The current owners offer a private berth for a sloop, separately for sale without a sloop.
Location:
Leiderdorp has much to offer with a surprising variety of stores, sports and recreation facilities. It also has a wide range of educational opportunities (including international, Montessori).
Leiderdorp is easily accessible via the A4, A44 and N11 motorways and is conveniently located for Amsterdam (Schiphol), The Hague and Utrecht. The Central Station in Leiden is 10 minutes by bike.
The historic centre of Leiden with its cosy restaurants and fine museums is also within cycling distance.
With city, green and water in the immediate vicinity, living here is fantastic!
This Polder Villa with its 4 floors, 2 bathrooms, 4 spacious bedrooms, basement, double garage, large living kitchen and spacious living room with fantastic views of the orchard and the Boterhuispolder, is well worth your visit!
Will you come and take a look? We are happy to make an appointment with you.
Special features:
- Semi-detached polder villa with thatched facades in spacious and green surroundings
- On the edge of town (Leiden) and country (Boterhuispolder)
- Beautiful views from the living room, bedrooms on orchard and Boterhuispolder
- Spacious and dry basement with tiled floor
- Practical separate laundry room
- Large double garage with storage
- Spacious sunny terrace 1st floor on the southwest
- Comfortable floor heating in the kitchen and living room
- Central vacuum system throughout the house
- Large automatic sunshade above sliding doors to the kitchen on the southwest
- Spacious green area with beautiful sightlines creates the concept "T be a guest in the polder”.
- Excellent maintenance of the greenery in the district by the Green Association
- Private marina within walking distance (berth is sold separately)
- The Kagerplassen for water sports enthusiasts are just around the corner
- Local farm stores for dairy and organic meat within cycling distance
- International elementary school in Leiderdorp
- Shopping facilities within walking and cycling distance
- Flat roof with balustrade excellent for solar panels
- Energy label A
Heeft u interesse in een soortgelijke woning of wilt u zelf uw woning verkopen? Neem vrijblijvend contact met ons op.
Bekijk video
All photo's
Plattegronden
Plattegronden
Bekijk video