Langeweg 86
Roelofarendsveen- Woonoppervlakte 181m2
- 8 kamers
Verkocht
| Oppervlakte en inhoud | |
|---|---|
| Woonoppervlakte | 225 m2 |
| Perceeloppervlakte | 421 m2 |
| Inhoud | 865 m3 |
| Bouw | |
|---|---|
| Type | Vrijstaande woning |
| Bouwjaar | 2019 |
| Indeling | |
|---|---|
| Kamers | 7 kamers (5 slaapkamers) |
| Badkamers | 2 badkamers, 2 aparte toiletten |
| Woonlagen | 3 woonlagen |
| Energie | |
|---|---|
| Energielabel | A |
| Isolatie | Volledig geisoleerd |
| Verwarming | Vloerverwarming gedeeltelijk, Warmtepomp |
| Warm water | Cv ketel |
Landelijk wonen midden in de Duin- en Bollenstreek!
Moderne vrijstaande villa in een groene, waterrijke villawijk gelegen naast Golfbaan Tespelduyn. De duurzame villa is van alle hedendaagse gemakken en comfort voorzien, telt maar liefst 5 slaapkamers en 2 luxe badkamers en ligt op een zonnig perceel. De 2e verdieping kan als zelfstandige woonetage worden gebruikt en op de begane grond bevindt zich een kantoor-/praktijkruimte met eigen ingang.
Bouwjaar 2019; Woonoppervlakte 225m2; Inhoud865m3; Perceel 421m2
Indeling;
Ruime hal met gastentoilet, moderne meterkast en toegang tot de berging en de royale living.
De grote sfeervolle living met houten vloer in visgraatmotief heeft een gashaard en openslaande deuren naar de zonnige tuin en een open moderne keuken met eetbar, spoel-/kookeiland en luxe inbouwapparatuur.
De naast gelegen fraaie praktijk-/kantoorruimte heeft een eigen entree aan de zijkant van de woning maar is ook vanuit de woonkamer te bereiken.
De gehele begane grond is voorzien van vloerverwarming, ook de berging/technische ruimte.
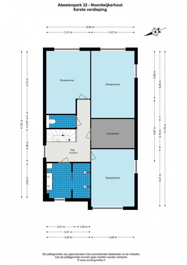
1e verdieping;
Op deze verdieping zijn 3 grote slaapkamers aanwezig, elk voorzien van ruim voldoende natuurlijke lichtinval, een ruime kleedkamer en een luxe badkamer met dubbele regendouche.
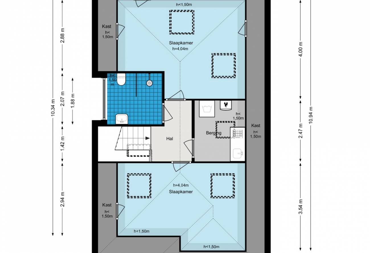
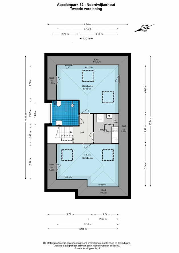
2e verdieping;
Op de 2e verdieping bevinden zich nog 2 grote slaapkamers met Velux dakramen, een 2e luxe badkamer en een stookruimte met keukenblok.
Deze verdieping kan als zelfstandige woonetage worden gebruikt.
Tuin;
De tuin is gunstig gelegen ten opzichte van de zon, modern aangelegd met terrassen, plantenborders, elektra, verlichting en een veranda met heating.
In de voortuin is parkeergelegenheid voor 2 auto's waar zich bovendien een oplaadpunt voor de elektrische auto bevindt.
Ligging;
Dit droomhuis bevindt zich op een beschermd gelegen wooneiland in een bijzonder park, gelegen naast de Golfbaan Tespelduyn aan de Herenweg in Noordwijkerhout.
Abeelenpark heeft een uniek en bijna tegenstrijdig karakter. Aan de ene kant voel je de vrijheid van je eigen huis in een landelijke omgeving. Tegelijkertijd woon je midden in de Duin- en Bollenstreek beschermd op één van de twee wooneilanden; kleinschalig, veilig en vertrouwd.
Het centrum van Noordwijkerhout, Keukenhofbos maar ook het strand en de duinen liggen op fietsafstand. Met de N206 in de directe omgeving zijn Leiden en Haarlem met ca 30 minuten te bereiken. Ook Schiphol is in ca. 30 minuten te bereiken.
Bijzonderheden;
- Belgisch hardstenen vensterbanken in de hele woning;
- hoge luxe deuren;
- alle Velux dakramen zijn voorzien van verduisterende rolgordijnen en muggenhorren;
- alle openslaande ramen zijn voorzien van inzethorren;
- de tuindeuren zijn voorzien van rolhoren;
- spots en hanglampen zijn te dimmen;
- 12 zonnepanelen;
- warmtepomp + cv-ketel;
- aparte praktijk-/kantoorruimte met eigen ingang;
- 2e verdieping te gebruiken als zelfstandige woonetage;
- veel bergruimte achter de knieschotten;
- vloerverwarming hele begane grond en badkamers;
- terras met zonnescherm;
- elektrisch bedienbare screens in woonkamer en erker;
- veranda met heater;
- stopcontacten in de tuin;
- buitenkranen 2x;
- parkeergelegenheid op eigen terrein;
- oplaadpunt elektrische auto;
- gelegen in een waterrijke kleinschalige villawijk.
Makelaar Frits Wilbrink nodigt u van harte uit voor een bezichtiging.
Met elkaar maken wij het waar(d).
Heeft u interesse in een soortgelijke woning of wilt u zelf uw woning verkopen? Neem vrijblijvend contact met ons op.
Plattegronden