Langeweg 86
Roelofarendsveen- Woonoppervlakte 181m2
- 8 kamers
Verkocht
| Oppervlakte en inhoud | |
|---|---|
| Woonoppervlakte | 181 m2 |
| Perceeloppervlakte | 491 m2 |
| Inhoud | 667 m3 |
| Bouw | |
|---|---|
| Type | Vrijstaande woning |
| Bouwjaar | 1988 |
| Indeling | |
|---|---|
| Kamers | 4 kamers (3 slaapkamers) |
| Badkamers | 2 badkamers, 1 aparte toiletten |
| Woonlagen | 2 woonlagen |
| Energie | |
|---|---|
| Energielabel | C |
| Isolatie | Volledig geisoleerd, Hr glas |
| Verwarming | Cv ketel, Vloerverwarming gedeeltelijk |
| Warm water | Cv ketel |
Graag heten wij u welkom bij deze uitstekend onderhouden vrijstaande villa met garage en carport voor 2 auto’s. Ook voor senioren is deze woning zeer geschikt met de hoofdslaapkamer en badkamer op de begane grond. De ligging is fantastisch in een kleinschalige rustige villawijk op loopafstand van het dorpscentrum van Lisse.
· Bouwjaar 1988 · Woonoppervlakte: 181m² · Perceeloppervlakte: 491m²
We nemen u graag mee;
Begane grond
Ruime hal met vide, garderoberuimte en toiletruimte. Royale en zeer lichte L-vormige woonkamer (65 m²) met vide, veel raampartijen, hoge plafonds en nieuwe schuifpui naar de fraai aangelegde tuin. Grote en fraaie woonkeuken (16 m²) met witte hoogglans kasten in L-opstelling, zwart granieten werkblad en diverse inbouwapparatuur. Bijkeuken met aansluitingen wasapparatuur, cv- en boileropstelling.
Vanuit de bijkeuken tevens toegang tot de oprit met carport aan de zijkant van de woning. Op de begane grond van de villa bevindt zich aan de achterzijde een zeer royale slaapvleugel alwaar de hoofdslaapkamer (25 m²) met eigen badkamer (10 m²), voorzien van een duo ligbad, douchecabine, toilet en dubbel wastafelmeubel. De slaapkamer heeft tevens een grote nieuwe schuifpui naar de achtertuin. De gehele begane grond is voorzien van een nieuwe houten vloer met grotendeels vloerverwarming.
1e Etage
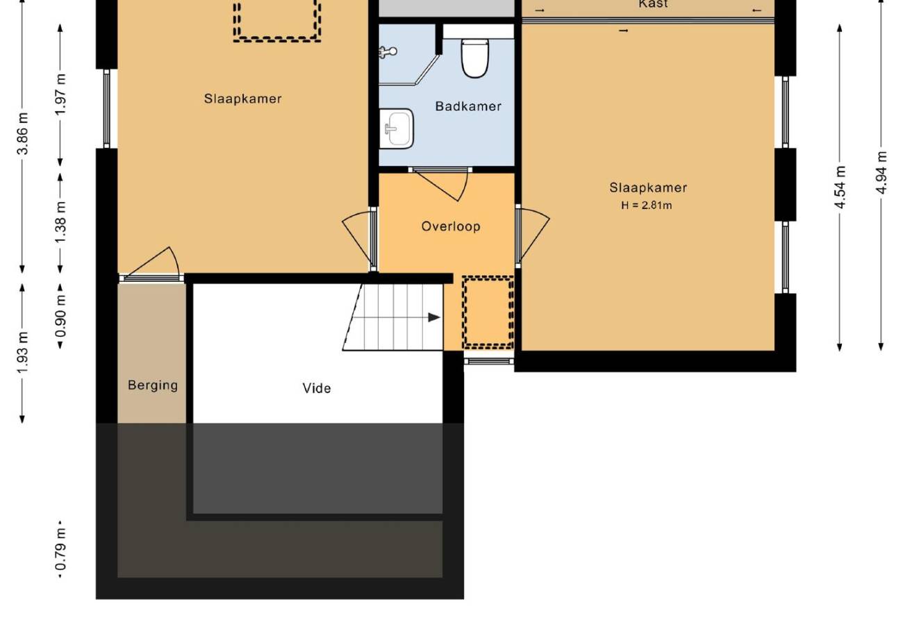
Kleine hal met doorkijkje naar woonkamer, voorslaapkamer (18 m²) met vaste grote kastruimte, 2e nette badkamer met douchecabine, wastafel en toilet, achterslaapkamer (22 m²) eveneens met vaste kastruimte.
Tuin
Stap naar buiten en geniet van de weelderige tuin, een oase van groen, rust en veel privacy in het bruisende centrum. De tuin is gelegen op het zuidoosten en is 19 meter breed en gemiddeld 8 meter diep.
Duurzaamheid
De woning is goed geïsoleerd en zeer recent zijn vele ramen voorzien van HR++ glas.
Bijzonderheden
• Royale villa met garage en carport
• Gelegen in een zeer geliefde villawijk
• Op loopafstand van het centrum
• Grote hoofdslaapkamer met badkamer op de begane grond
• Twee slaapkamers en badkamer op de 1e etage
• Zeer goed verzorgd en onderhouden
• Recent grotendeels v.v. HR++ glas
• Prachtige tuin met veel privacy
Miranda nodigt u graag uit om deze woning snel te komen bekijken!
Heeft u interesse in een soortgelijke woning of wilt u zelf uw woning verkopen? Neem vrijblijvend contact met ons op.
Bekijk video
All photo's
Plattegronden
Plattegronden
Bekijk video