't Lange Rack 9
Lisse- Woonoppervlakte 205m2
- 6 kamers
Verkocht
| Oppervlakte en inhoud | |
|---|---|
| Woonoppervlakte | 169 m2 |
| Perceeloppervlakte | 515 m2 |
| Inhoud | 669 m3 |
| Bouw | |
|---|---|
| Type | Vrijstaande woning |
| Bouwjaar | 1920 |
| Indeling | |
|---|---|
| Kamers | 6 kamers (5 slaapkamers) |
| Badkamers | 1 badkamers, 2 aparte toiletten |
| Woonlagen | 3 woonlagen |
| Energie | |
|---|---|
| Energielabel | D |
| Isolatie | Dakisolatie, Muurisolatie, Vloerisolatie, Voorzetramen, Grotendeels dubbelglas |
| Verwarming | Cv ketel, Vloerverwarming geheel |
| Warm water | Cv ketel |
Ben jij gek op de charmante details van een historische woning, maar leg je de lat ook hoog als het gaat om comfort? Een unieke kans doet zich voor! Gelegen op een royaal perceel in de dorpskern van Lisse, staat deze charmante vrijstaande monumentale bollenvilla. Recent gerenoveerd met behoud van originele details en reeds flink verduurzaamd, heeft deze prachtige woning alles waar je van droomt. Een grote woon- eetkeuken, woonkamer met originele schouw, hoge plafonds, glas-in-lood, maar liefst 5 slaapkamers, een tuin op het zuidwesten en parkeergelegenheid op eigen terrein voor 3 auto’s.
Woonoppervlakte 169 m2, inhoud 669 m3, perceel 515 m2, bouwjaar 1920
De Achterweg is een zeer geliefde locatie om te wonen. Rustig gelegen en toch met alle voorzieningen op loopafstand. De gemeente Lisse heeft haar bewoners veel te bieden: een uitgebreid winkelaanbod, horeca, cultuur en een bioscoop, diverse sportverenigingen en scholen, en strand, bos en duinen in de nabijheid. Schiphol, Haarlem en Leiden zijn met een half uur te bereiken.
Deze woning is met aandacht naar de standaarden van nu gebracht. De hoge plafonds en hoge stalen deuren zorgen voor veel licht en ruimte. Authentieke details zoals het glas-in-lood, origineel tegelwerk en balken zijn bewaard gebleven. Vloerverwarming en isolatie zorgen voor comfort. Het goed doordachte lichtplan maakt het extra sfeervol.
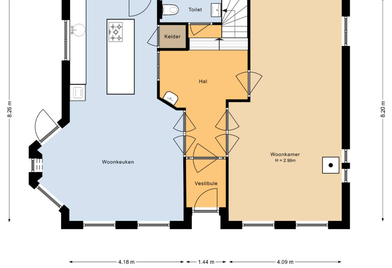
Indeling:
Via de vestibule kom je in een ruime hal met imposante trap met opgang naar het toilet. Vanuit de hal heb je rechts toegang tot de woon- en speelkamer met gashaard. De linker deur geeft toegang tot de woon- eetkeuken. De keuken met kookeiland is voorzien van 7 elektra groepen voor alle luxe apparatuur. Alle ramen zijn voorzien van op maat gemaakte houten shutters. De deur in de keuken geeft toegang tot de vrij gelegen riante tuin op het zuidwesten.
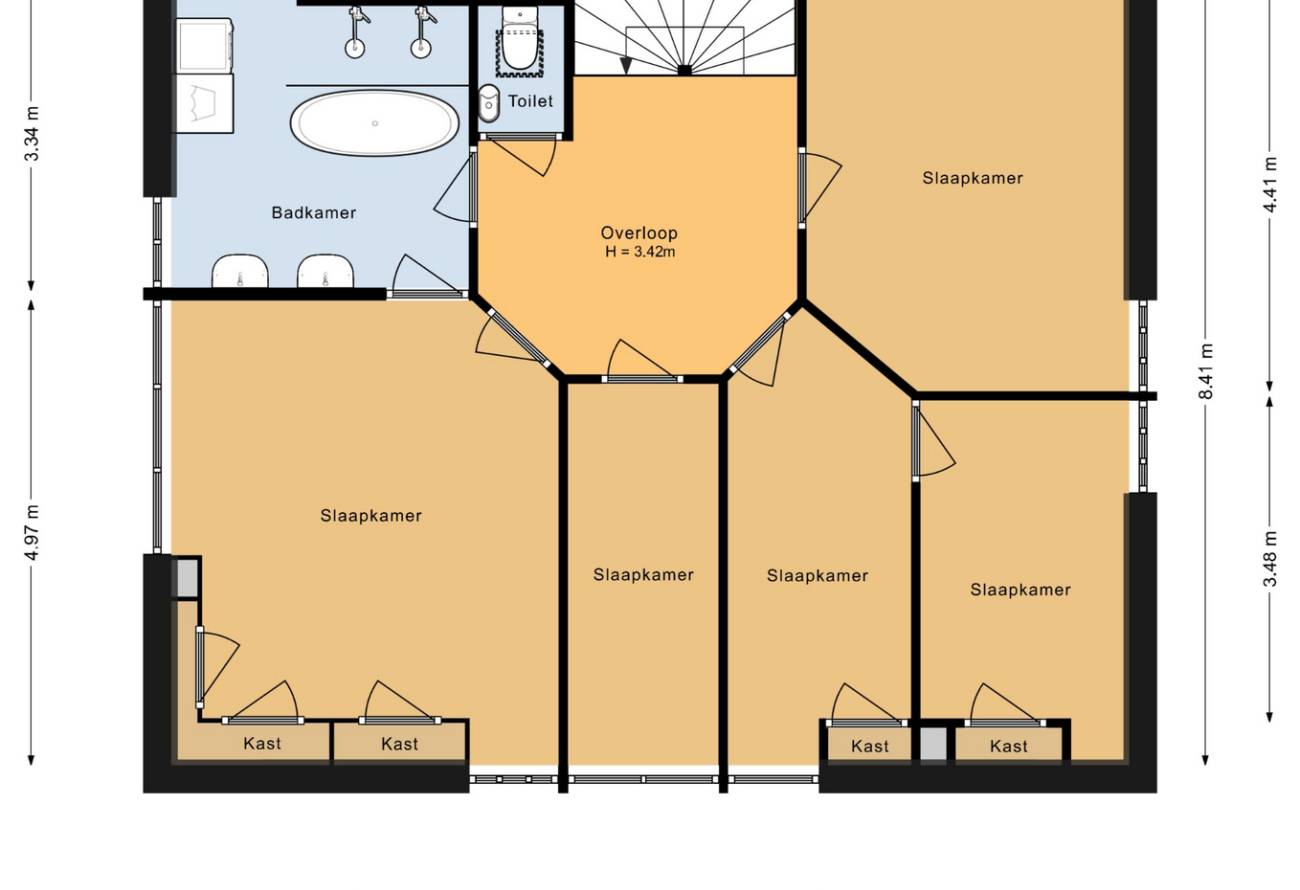
Eerste verdieping:
De royale overloop geeft toegang tot 4 slaapkamers. De hoge plafonds (3,42m) en de zichtbare balken maken de kamers boven ruimtelijk en sfeervol. Veel inbouwkasten zijn bewaard gebleven. In één van de slaapkamers is een slimme scheidingswand geplaatst waardoor een 5e slaapkamer is gerealiseerd; de extra kinder- of tienerkamer of een slaapkamer met inloopkast. Leuk detail is de op hoogte aanwezige elektra. Dit maakt een slimme indeling met hoogslaper mogelijk.
De luxe badkamer is te bereiken vanaf de overloop en vanuit de hoofdslaapkamer. Hier bevinden zich tevens de aansluitingen voor wasmachine en droger.
Duurzaamheid en comfort:
- Nieuwe begane grond vloer: geïsoleerd, voorzien van vloerverwarming en afgewerkt met een visgraatvloer;
- Nieuwe houten verdiepingsvloer: geïsoleerd, voorzien van vloerverwarming en afgewerkt met een visgraatvloer;
- Vernieuwde elektra: geschakeld, sfeervol lichtplan en een internet- en televisie aansluiting in alle slaapkamers;
- Gevelisolatie middels voorzetwanden;
- Isolatie middels voorzetramen op de eerste verdieping;
- Dakisolatie;
- Al het leidingwerk en de riolering in de woning is vernieuwd;
- Waterontharder aanwezig;
- CV combiketel van 2021;
- Energielabel D (bijna C)
Kansen om nog verder te verduurzamen zijn er ook zeker. Zo ligt er bijvoorbeeld al een offerte klaar om ook de gehele begane grond te voorzien van dubbelglas, wat een stap naar een nog beter energielabel mogelijk maakt.
Deze woning is een bezichtiging meer dan waard!
- Fraaie combinatie van authentieke details en modern comfort;
- In het centrum van Lisse;
- 5 slaapkamers;
- Parkeergelegenheid op eigen terrein;
- Tuin rondom, georiënteerd op het zuidwesten;
- Gemeentelijk monument.
Wij leiden je graag rond door deze prachtige woning. Bel makelaar Brigitte Wilbrink voor een bezichtiging.
Heeft u interesse in een soortgelijke woning of wilt u zelf uw woning verkopen? Neem vrijblijvend contact met ons op.
Bekijk video
All photo's
Plattegronden
Plattegronden
Bekijk video