Langeweg 86
Roelofarendsveen- Woonoppervlakte 181m2
- 8 kamers
Verkocht
| Oppervlakte en inhoud | |
|---|---|
| Woonoppervlakte | 241 m2 |
| Perceeloppervlakte | 732 m2 |
| Inhoud | 906 m3 |
| Bouw | |
|---|---|
| Type | Vrijstaande woning |
| Bouwjaar | 2004 |
| Indeling | |
|---|---|
| Kamers | 7 kamers (5 slaapkamers) |
| Badkamers | 2 badkamers, 2 aparte toiletten |
| Woonlagen | 4 woonlagen |
| Energie | |
|---|---|
| Energielabel | A |
| Isolatie | Dakisolatie, Muurisolatie, Vloerisolatie, Dubbel glas, Volledig geisoleerd |
| Verwarming | Cv ketel, Warmte terugwininstallatie |
| Warm water | Elektrische boiler eigendom |
Charmante, luxe afgewerkte, vrijstaande villa gelegen op een royaal en zonnig perceel in de geliefde wijk ‘Boechorst’. In een rustige straat en een kindvriendelijke buurt. De sfeervolle villa beschikt over 5 ruime slaapkamers, een ruime kelder, een garage en een fraai aangelegde tuin rondom het huis met ruime veranda en aanlegsteiger. Daarnaast is er veel parkeergelegenheid op eigen terrein.
Bouwjaar 2004; Woonoppervlakte 241m2; Veranda 26m2; garage 18m2; Inhoud 906m3; Perceel 732m2
Via een bruggetje dat gedeeld wordt met de naaste buren, komt men bij de woning met overdekte entree;
Hal met moderne meterkast, garderobekast, toiletruimte met fonteintje en trappenhuis.
De sfeervolle ruime lichte woonkamer heeft grote raampartijen, openslaande deuren naar de tuin met veranda alsook een gasgestookte haard in natuurstenen schouw. Er is bovendien een ruime werkplek met veel opbergruimte gecreëerd. Aan de achterzijde van de woning bevinden zich de royale, lichte eetkamer en de ruime keuken die voorzien is van luxe inbouw apparatuur.
In de woonkamer en hal ligt een klassieke eiken visgraat parketvloer, de tegelvloer van de eetkamer en de keuken is voorzien van vloerverwarming.
1e verdieping;
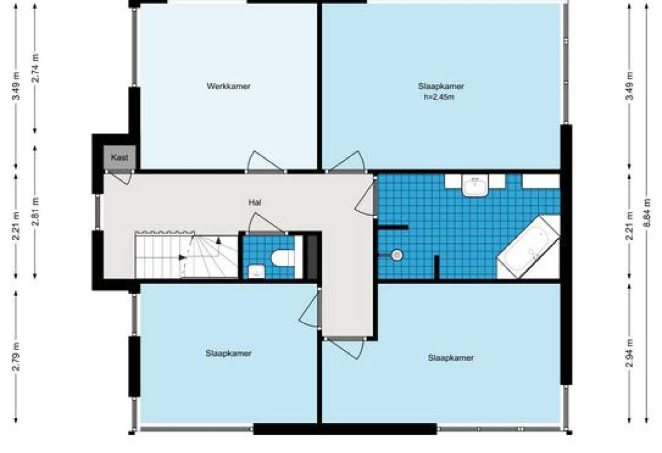
Ruime lichte overloop met toegang tot alle kamers, een separate toiletruimte en een vaste kast. Deze verdieping telt maar liefst 4 ruime lichte slaapkamers en een luxe badkamer.
2e verdieping;
Ook hier een ruime lichte overloop, een afgesloten ruimte met de CV en boiler en een verrassend ruime 5e slaapkamer met een ruime walk-in closet en bergruimte. De dakkapel zorgt voor extra leefruimte en stahoogte maar vooral voor veel extra lichtinval. Vanaf de overloop is er ook toegang tot de 2de badkamer met een mogelijkheid voor het plaatsen van een wasmachine en droger.
Kelder;
Onder de woning is een ruime kelder met stahoogte; ideaal als wijnkelder en als extra bergruimte.
Tuin;
De tuin rondom de woning is fraai aangelegd met sierpaden, terrassen, een grote veranda, bloem borders, hagen, fruitbomen, kunstgras, een eigen aanlegsteiger. Met uw boot vaart u zo richting de Kaag en de grachten van Leiden.
Op de oprit is parkeerplaats voor wel 5 auto's.
Ligging;
De villa is gelegen in een zeer geliefde, kindvriendelijke wijk, nabij sportvelden, scholen, strand, zee, duinen en het historische centrum van Noordwijk-Binnen. Noordwijk heeft een groot aanbod in sfeervolle restaurants en er zijn veel uitgaansgelegenheden voor jong en oud.
Ontsluitingswegen naar de N206 en de A44 liggen in de directe omgeving waardoor steden als Amsterdam/Schiphol, Haarlem, Leiden en Den Haag binnen 30 minuten te bereiken zijn.
Bijzonderheden;
- strak gestucte muren;
- klassieke visgraat parketvloer in de hal en de woonkamer;
- tegelvloer van de eetkamer en de keuken is voorzien van vloerverwarming;
- en-suite deuren met veel kastruimte tussen de woon- en de eetkamer;
- zeer lichte woning met grote raampartijen en diverse openslaande deuren naar de tuin;
- WTW installatie;
- uitgebreid alarmsysteem met camera's en afschrik lichten rondom het huis 2021;
- raambekleding en rolgordijnen 2021;
- wifi versterkers op elke verdieping 2021;
- Quooker en nieuwe kookplaat in de keuken 2022;
- tv en muziek systeem van B&O door het hele huis 2021;
- nieuwe cv ketel en boiler 2022;
- elektriciteit binnen en buiten vernieuwd in 2021;
- fraai aangelegde tuin, met verschillende terrassen;
- irrigatie systeem in de tuin via pomp in de sloot (2021);
- fraaie buitenverlichting rondom het huis in de tuin 2022;
- 5 ruime slaapkamers;
- 2 badkamers;
- screens voor de ramen;
- fraaie grote veranda aan de voorzijde van de woning;
- garage met roldeur en loopdeur.
Makelaar Frits Wilbrink nodigt u van harte uit voor een bezichtiging.
Met elkaar maken wij het waar(d).
Heeft u interesse in een soortgelijke woning of wilt u zelf uw woning verkopen? Neem vrijblijvend contact met ons op.
Bekijk video
All photo's
Plattegronden
Plattegronden
Bekijk video