Langeweg 86
Roelofarendsveen- Woonoppervlakte 181m2
- 8 kamers
Verkocht
| Oppervlakte en inhoud | |
|---|---|
| Woonoppervlakte | 201 m2 |
| Perceeloppervlakte | 343 m2 |
| Inhoud | 786 m3 |
| Bouw | |
|---|---|
| Type | Vrijstaande woning |
| Bouwjaar | 2003 |
| Indeling | |
|---|---|
| Kamers | 7 kamers (6 slaapkamers) |
| Badkamers | 2 badkamers, 1 aparte toiletten |
| Woonlagen | 3 woonlagen |
| Energie | |
|---|---|
| Energielabel | A |
| Isolatie | Volledig geisoleerd |
| Verwarming | Cv ketel, Open haard, Vloerverwarming gedeeltelijk, Warmtepomp, Warmte terugwininstallatie |
| Warm water | Cv ketel, Elektrische boiler eigendom |
Luxe vrijstaande villa in Lisse met garage en fraaie tuin rondom.
Welkom in uw droomhuis! Deze prachtige vrijstaande villa, een statig herenhuis gelegen aan de Grevelingstraat 91 in Lisse, is een oase van comfort en elegantie.
• Zonnepanelen, 15 stuks
• CV Installatie, Hybride uit 2022
• Schilderwerk, recent gedaan in 2022
• Garage met elektrische overheaddeur
Gebouwd in 2003, biedt deze woning een perfecte mix van moderne voorzieningen en tijdloze charme. Met een woonoppervlakte van 201m² is deze woning royaal en ruimtelijk ingericht. Perceeloppervlakte 343m², garage 18m².
Wij nemen u mee naar binnen…….
Er is een zij-entree onder de overkapping. De ruime hal heeft een toilet, een trap naar de etage, garderobekast en deuren naar de garage en woonkamer. Deze tuingerichte woonkamer heeft openslaande deuren naar de naar de prachtige tuin.
Creëer warme en gezellige momenten in deze living met een prachtige openhaard. Een prima plek om te ontspannen na een lange dag.
Stap binnen in de gloednieuwe woonkeuken aan de voorzijde van de woning, waar hoogwaardige afwerking en functionaliteit samenkomen. Een ruimte ontworpen om te inspireren en te genieten.
De keuken, hal en woonkamer zijn voorzien van heerlijke vloerverwarming.
1e Etage:
Vaste trap naar de overloop met toegang tot vier slaapkamers en 2 badkamers!
Luxe en ontspanning komen samen in de 1e badkamer met een ligbad, een comfortabele hoekdouche en dubbele wastafels.
De 2e badkamer heeft een hoekdouche, een hangend toilet en een wastafel. Alle kamers hebben veel lichtinval en zijn netjes afgewerkt.
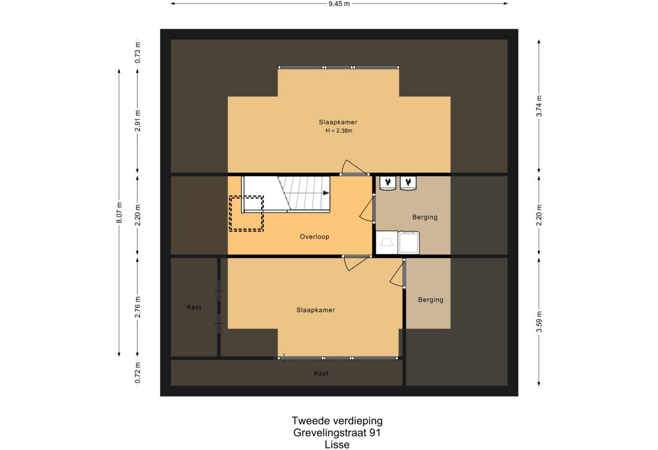
2e Etage:
Overloop met toegang tot twee slaapkamers met extra licht en ruimte dankzij de twee dakkapellen en bergruimtes. Verder is er een separate was- stookruimte, handig met opbergruimte in de berging. De overloop wordt verlicht door een dakvenster.
Garage:
Gemakkelijk parkeren is gegarandeerd met ruimte op eigen terrein voor de garage. Uw auto verdient tevens een veilig onderkomen in de betegelde garage met een elektrische overheaddeur.
Tuin:
Maak het hele jaar door gebruik van de prachtige tuin rondom (2020) met aan de achterzijde aan het huis een houtopslag met houtblokken. De onderhoudsvriendelijke tuin heeft aan de voorzijde fraaie Leilindes en aan de achterzijde prachtig kunstgras voor altijd groen in elk seizoen.
Deze unieke villa biedt een perfecte balans tussen modern comfort en tijdloze elegantie.
Neem contact met ons op voor een bezichtiging en laat deze kans op luxe wonen in Lisse niet aan u voorbijgaan.
Kortom een goed onderhouden en sfeervolle villa met alle luxe en ruimte.
De 15 zonnepanelen leveren +/- 3500 kwh per jaar op aan energie.
Bijzonderheden;
• Alarminstallatie
• Energielabel A
• Vloerverwarming begane grond
• Parkeren op eigen terrein
• 6 slaapkamers
• 15 zonnepanelen op het dak
• Nieuwe keuken
• 2 badkamers
• Achtertuin op zuidoosten
• Nabij het centrum van Lisse
Heeft u interesse in een soortgelijke woning of wilt u zelf uw woning verkopen? Neem vrijblijvend contact met ons op.
Plattegronden