Langeweg 86
Roelofarendsveen- Woonoppervlakte 181m2
- 8 kamers
Verkocht
| Oppervlakte en inhoud | |
|---|---|
| Woonoppervlakte | 207 m2 |
| Perceeloppervlakte | 700 m2 |
| Inhoud | 844 m3 |
| Bouw | |
|---|---|
| Type | Vrijstaande woning |
| Bouwjaar | 1987 |
| Indeling | |
|---|---|
| Kamers | 5 kamers (4 slaapkamers) |
| Badkamers | 2 badkamers, 1 aparte toiletten |
| Woonlagen | 3 woonlagen |
| Energie | |
|---|---|
| Energielabel | C |
| Isolatie | Muurisolatie, Dubbel glas |
| Verwarming | Cv ketel, Vloerverwarming gedeeltelijk |
| Warm water | Cv ketel |
Vrijstaande villa op 700m2 grond met royale oprit en garage.
Welkom aan de Jacob van Maerlantlaan 8 in Oegstgeest. Deze vrijstaande woning biedt veel ruimte met 4 slaapkamers en 2 badkamers. Het royale perceel van maar liefst 700m2 geeft veel privacy. Met de fraai aangelegde tuin rondom, garage en carport geniet je hier volop. De woning is altijd zorgvuldig onderhouden en heeft alle potentie om jouw nieuwe thuis te worden.
Perceeloppervlakte: 700m2 • Woonoppervlakte: 207m2 • Bouwjaar: 1987
Wat maakt deze woning bijzonder?
• 4 ruime slaapkamers en 2 badkamers op de eerste verdieping
• Royaal woonoppervlakte begane grond (118m2)
• Garage en carport
• Oprit met plaats voor meerdere auto’s op eigen terrein
• Ruime hal die een warm welkom biedt
• Riante bergzolder
• Kelder perfect voor wijn en opslag
• Fraai aangelegde tuin voor ontspanning en speelplezier
• Energielabel C en mogelijkheden tot verdere verduurzaming
Ligging
Deze kindvriendelijke wijk is ideaal voor iedereen die op zoek is naar een rustige, maar goed verbonden woonomgeving. In Haaswijk zitten twee basisscholen (CBS Joris de Witte en De Dalton School Oegstgeest). Voor middelbaar onderwijs kunnen leerlingen terecht op scholen in de nabije omgeving, zoals het Rijnlands Lyceum. Binnen 10 minuten fietsafstand zijn winkelcentrum Lange Voort, De Kempenaerstraat en diverse sportclubs te bereiken. De wijk is gunstig gelegen nabij de belangrijkste uitvalswegen zoals de A44, die een snelle verbinding biedt naar steden o.a. Leiden, Den Haag, Schiphol en Amsterdam. Daarnaast is het openbaar vervoer uitstekend geregeld, met meerdere buslijnen die de wijk verbinden met omliggende steden en dorpen.
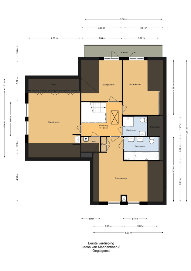
Indeling
Begane grond: entree, meterkast, toilet, open trap, toegangsdeur naar de garage, openslaande deuren naar de woonkamer, royale living met open hard en schuifpui naar de tuin, eetkamer, ruime keuken met toegang tot praktische bijkeuken en kelder, 2e toegangsdeur naar de garage via de bijkeuken.
1e etage: royale overloop waarvan 4 slaapkamers grenzen, technische ruimte/opbergkast, badkamer met douche, wastafel en toilet. Hoofdslaapkamer met een 2e badkamer ensuite.
2e etage: riante bergzolder toegankelijk middels een vlizotrap.
Duurzaamheid & comfort
Deze woning heeft reeds energielabel C en is geheel voorzien van dubbelglas en onderhoudsvriendelijke kunststofkozijnen. De begane grond van de woning is voorzien van vloerverwarming. Er zijn legio aanvullende verduurzamingsmogelijkheden voor deze woning, zoals vloer- en dakisolatie en het plaatsen van zonnepanelen.
In de koopovereenkomst zullen een ouderdomsclausule en asbestclausule worden opgenomen.
Meer weten?
Makelaar Brigitte Wilbrink neemt graag de tijd om je rond te leiden. Bel ons voor een afspraak en ervaar zelf de mogelijkheden van deze fijne villa.
Heeft u interesse in een soortgelijke woning of wilt u zelf uw woning verkopen? Neem vrijblijvend contact met ons op.
Bekijk video
All photo's
Plattegronden
Plattegronden
Bekijk video