Langeweg 86
Roelofarendsveen- Woonoppervlakte 181m2
 - 8 kamers
 
Verkocht
| Oppervlakte en inhoud | |
|---|---|
| Woonoppervlakte | 297 m2 | 
| Perceeloppervlakte | 1.800 m2 | 
| Inhoud | 1.103 m3 | 
| Bouw | |
|---|---|
| Type | Vrijstaande woning | 
| Bouwjaar | 1902 | 
| Indeling | |
|---|---|
| Kamers | 9 kamers (7 slaapkamers) | 
| Badkamers | 4 badkamers, 1 aparte toiletten | 
| Woonlagen | 5 woonlagen | 
| Energie | |
|---|---|
| Energielabel | C | 
| Isolatie | Dakisolatie, Muurisolatie, Dubbel glas | 
| Verwarming | Cv ketel, Vloerverwarming gedeeltelijk, Pelletkachel | 
| Warm water | Cv ketel | 
Deze prachtige zonnige vrijstaande villa uit 1902 is gelegen op een ruim perceel, in hartje Noordwijkerhout en biedt alle ruimte en luxe die u zich kunt wensen. Met een totale woonoppervlakte van 331m² en 7 slaapkamers is deze villa perfect voor gezinnen en iedereen die op zoek is naar veel leefruimte. Het verwarmd buitenzwembad en de ruime achtertuin op het zuidwesten bieden u de mogelijkheid om heerlijk te ontspannen en te genieten van de zon.
Deze villa heeft jarenlang dienst gedaan als dokterswoning met praktijk en apotheek. Heel Noordwijkerhout kent deze karakteristieke woning.
Bouwjaar 1902, perceeloppervlakte  1.800 m², woonoppervlakte woonhuis 297m², inhoud woning 1.103 m³, garage  44m² met daarboven een gastenhuis van 34m² aan woonoppervlakte.
De begane grond is voorzien van elektrische vloerverwarming, wat zorgt voor een comfortabel en warm thuisgevoel. Daarnaast is er ook een hout gestookte hottub en een sauna aanwezig, zodat u altijd kunt genieten van een heerlijke wellness-ervaring.
Indeling: 
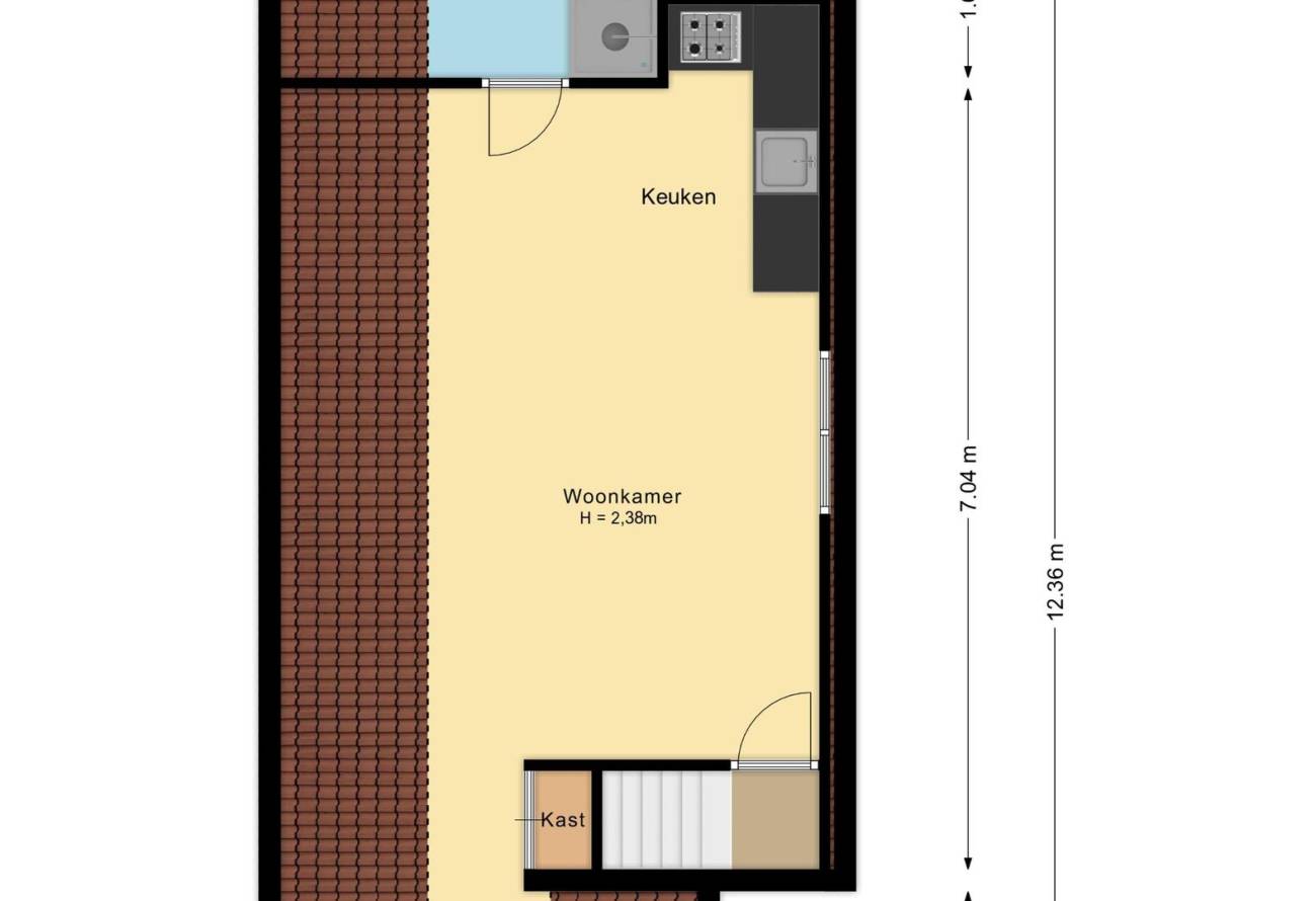
Overdekte entree met deur naar hal met garderobe, meterkast, toiletruimte, trap naar de etage, deur rechtstreeks naar de keuken en deur naar de living. Deze riante living is verdeeld in een woonkamer met leuke erker en pellet kachel, een eetgedeelte met schuifpui en openslaande deuren naar de heerlijke tuin met terras. In de ruimte aan de tuinzijde is een zitgelegenheid gecreëerd waar men in alle rust een boek kan lezen of heerlijk van de tuin kan genieten. Vanuit de zitkamer is er een doorloop naar de half open keuken met allerhande inbouwapparatuur. Aanwezig zijn o.a.  een 6 pits gasfornuis met heteluchtoven, rvs afzuigschouw, vaatwasser, combimagnetron, rvs koel-vriescombi en een Quooker. Naast de doorloop van zitkamer naar half open keuken bevindt zich een luik dat toegang geeft tot de (wijn)kelder. Verder is er een deur die toegang geeft tot een praktijkruimte, ideaal voor werken aan huis of als bv. atelier. Ook is er een deur naar de hal.
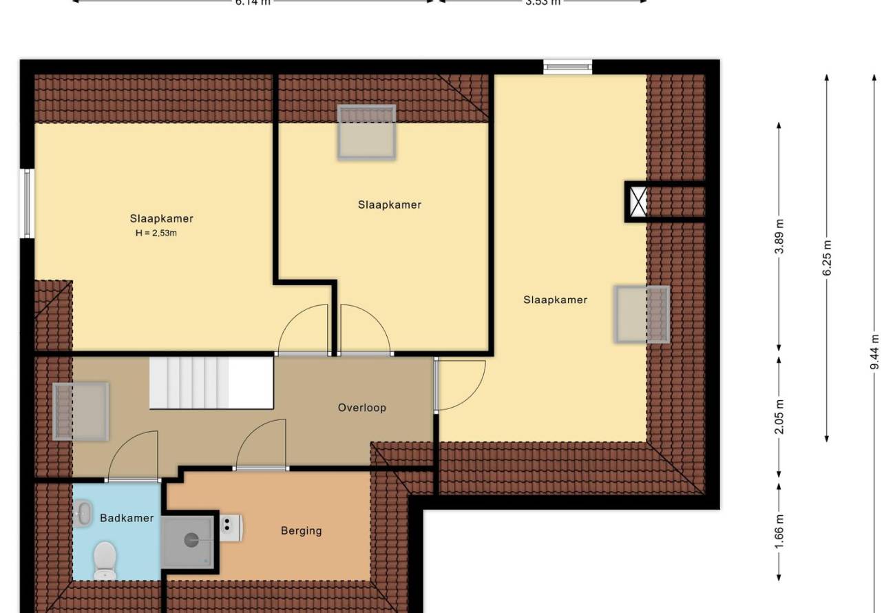
1e Etage: 
Via een bordestrap is de 1e etage te bereiken met overloop met 3 ruime slaapkamers en 2 badkamers. De hoofdslaapkamer heeft toegang tot een eigen riante badkamer. Aanwezig zijn een ligbad, inloopdouche, wandtoilet en designradiator. De andere badkamer op deze etage is v.v. vloerverwarming, douche wastafelmeubel en toilet. De 2 slaapkamers zijn beide ruim, waarvan 1 openslaande deuren heeft naar een fraai balkon.
2e Etage: 
Vaste trap vanuit de overloop naar de 2e etage met 3 ruime slaapkamers en een 3e badkamer v.v. een wastafel, douche, toilet en vloerverwarming. Blikvanger op deze zolder etage is de heerlijke Tylo sauna in een van de slaapkamers, de omvormer van de zonnepanelen bevindt zich ook in de sauna kamer. Er is een berging met de opstelling van de cv-installatie en de warmwaterboiler. Tevens is de vliering via een luik te bereiken, super handig voor het opbergen van de seizoenspullen.
Met maar liefst 22 zonnepanelen is de villa ook nog eens energiezuinig en duurzaam. Hierdoor draagt u niet alleen bij aan het milieu, maar bespaart u ook nog eens op uw energierekening.
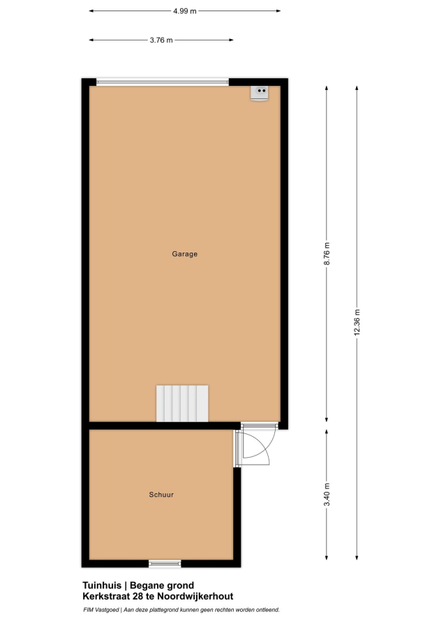
Garage met gastenverblijf: 
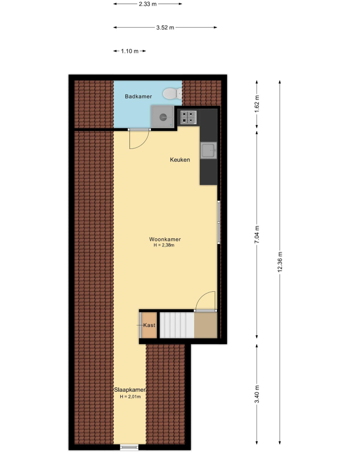
Royale vrijstaande garage met opstelling voor wassen en drogen met aansluitend een schuur voor o.a. tuingereedschap en tuinstoelen en-kussens. Het leuke en verzorgde gastenverblijf op de eerste verdieping is via de garage te bereiken. 
Er is een  entree met deur naar een woonkamer met keukenblok met inductie kookplaat en koelkast. De badkamer heeft een douche, een wastafel en toilet. De slaapkamer is v.v. een inbouwkast. 
De garage en het appartement/gastenverblijf worden beide verwarmd door een eigen cv-installatie.
Tuin: 
Fantastische diepe en zonnige achtertuin met groen gazon en achterin een zwemparadijs welke door de groene bomen, struiken en een fraaie esdoorn volop privacy biedt.  Er is een heerlijk verwarmd zwembad en een hout gestookte hottub, waar het optimaal genieten is. 
Achterin de tuin is een houten tuinhuisje waar de apparatuur voor het zwembad in zit en dat ook ideaal is voor de tuinstoelen en kussens. Ook is er een kas. Het zwembad heeft een zomer en een winterdek en wordt verwarmd middels een inverter warmtepomp.
Het zwemwater wordt op kwaliteit gehouden door een doseringssysteem. 
Parkeergelegenheid voor meerdere auto’s op eigen terrein met oplaadpunt voor elektrische auto
Op een half uurtje rijden van Schiphol, Amsterdam, Den Haag en dichtbij het gezellige centrum, scholen, sportverenigingen. 
Het strand en de zee zijn op 15 minuten afstand
Kortom, deze villa is een fantastische kans om te wonen in een prachtig pand met moderne voorzieningen en luxe wellness elementen. Neem vandaag nog contact met ons op om deze villa te bezichtigen en te ervaren wat het betekent om in het zonnigste huis van Noordwijkerhout te wonen.
Makelaar Rick Broekhof nodigt je van harte uit voor een bezichtiging. 
Neem contact op met ons kantoor tel; 0252-419049.
Met elkaar maken wij het waar(d)
Bijzonderheden:
- karakteristieke vrijstaande ex- dokterswoning
- kelder voor de wijn met koekoek met inbraakbestendig glas en ventilatierooster
- elektrische laadpunt voor auto
- verwarmd zwembad (10 x 5 mtr. 1.50 diep) ¬met zomer- en winterdek
- beregeningsinstallatie via eigen bron
- 22 zonnepanelen
- sauna en hottub
- diepe zonnige tuin op het zuidwesten
- garage met compleet gastenverblijf
- dubbele bewoning mogelijk
- 7 slaapkamers
- AquaCell waterontharder
Heeft u interesse in een soortgelijke woning of wilt u zelf uw woning verkopen? Neem vrijblijvend contact met ons op.
        Bekijk video
All photo's
Plattegronden
        Plattegronden
Bekijk video