't Lange Rack 9
Lisse- Woonoppervlakte 205m2
- 6 kamers
Verkocht
| Oppervlakte en inhoud | |
|---|---|
| Woonoppervlakte | 167 m2 |
| Perceeloppervlakte | 258 m2 |
| Inhoud | 589 m3 |
| Bouw | |
|---|---|
| Type | Twee onder een kapwoning |
| Bouwjaar | 1998 |
| Indeling | |
|---|---|
| Kamers | 4 kamers (3 slaapkamers) |
| Badkamers | 1 badkamers, 2 aparte toiletten |
| Woonlagen | 3 woonlagen |
| Energie | |
|---|---|
| Energielabel | A |
| Isolatie | Dubbel glas, Volledig geisoleerd |
| Verwarming | Cv ketel |
| Warm water | Cv ketel, Elektrische boiler eigendom |
Ben je op zoek naar een twee-onder-een-kapwoning met een heerlijke tuin, volop lichtinval, ruime keuken én een eigen oprit? Dan is Kroeskarperlaan 34 precies wat je zoekt. Extra fijn: de woning is zeer goed onderhouden en heeft energielabel A.
Bouwjaar 1998 - woonoppervlakte 167m2 - perceel 258m2 - energielabel A
We nemen je mee…
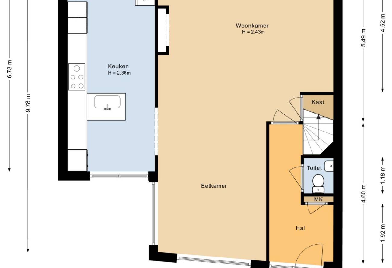
Zodra je binnenkomt, valt het lichte karakter van deze woning direct op. De royale hal met grote raampartijen biedt niet alleen veel daglicht, maar ook ruimte voor een garderobe. Daarnaast vind je hier een separaat toilet met fontein.
De woonkamer met mooie houten vloer is royaal en bijzonder licht dankzij de grote schuifpui richting de zonnige tuin. Deze schuifpui vervaagt de grens tussen binnen en buiten en zorgt voor een heerlijk gevoel van ruimte. De handige trapkast biedt extra bergruimte, ideaal voor spelletjes, voorraad of speelgoed. Aan de voorzijde van de woning is plaats voor een grote eettafel. Hier schijnt ’s ochtends al de zon naar binnen – een perfect begin van je dag. De semi-open keuken is zeer ruim en uitgerust met diverse inbouwapparatuur.
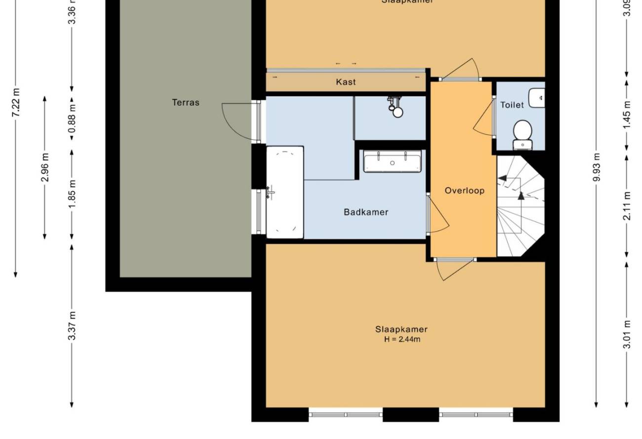
Eerste verdieping
Op de eerste verdieping bevinden zich twee ruime slaapkamers. De slaapkamer aan de achterzijde beschikt over een grote, vaste kast. De moderne badkamer is een oase van ontspanning met een ligbad, dubbele wastafel, een inloopdouche én een deur naar een zonnig dakterras. Ook op deze verdieping vind je een tweede toilet met fontein. De hele etage is afgewerkt met een strakke laminaatvloer.
Tweede verdieping
De tweede verdieping biedt een volwaardige derde slaapkamer met veel lichtinval door de dakkapel en het zijraam. Hier bevindt zich ook een praktische technische ruimte met aansluitingen voor de wasapparatuur en de cv-opstelling. Extra bergruimte is aanwezig achter de knieschotten.
Het buitenleven op z’n best
De fraai aangelegde achtertuin op het westen biedt zowel zon als schaduw en is voorzien van twee fijne terrassen – één direct bij het huis en één achterin de tuin. Een ideale plek voor een zomerse barbecue, spelende kinderen of gewoon ontspannen met een boek. Achterom bereikbaar en voorzien van een ruim tuinhuis, perfect voor het opbergen van fietsen, speelgoed en tuingereedschap.
Tot slot parkeer je je auto gewoon op je eigen oprit – altijd een plekje voor de deur.
Duurzaamheid en comfort
- energielabel A
- cv-ketel uit 2025
- volledige isolatie
- dubbelglas
- parkeren op eigen terrein
De ligging van de woning is ideaal, in een plezierige en kindvriendelijke buurt nabij het centrum van Voorhout en dichtbij uitvalswegen naar de kust, Schiphol en grote steden als Den Haag en Amsterdam. Ook scholen, sportaccommodaties en het openbaar vervoer zijn zeer goed bereikbaar.
Kortom: Kroeskarperlaan 34 is een sfeervolle, goed verzorgde woning die je met wat laatste handgrepen zó kunt betrekken. Licht, ruimte, een heerlijke tuin en praktische indeling maken dit het perfecte thuis voor een (jong) gezin.
Kom je snel kijken? Makelaar Brigitte leidt je graag rond!
Heeft u interesse in een soortgelijke woning of wilt u zelf uw woning verkopen? Neem vrijblijvend contact met ons op.
Bekijk video
All photo's
Plattegronden
Plattegronden
Bekijk video