Langeweg 86
Roelofarendsveen- Woonoppervlakte 181m2
- 8 kamers
Verkocht
| Oppervlakte en inhoud | |
|---|---|
| Woonoppervlakte | 242 m2 |
| Perceeloppervlakte | 2.595 m2 |
| Inhoud | 996 m3 |
| Bouw | |
|---|---|
| Type | Vrijstaande woning |
| Bouwjaar | 1975 |
| Indeling | |
|---|---|
| Kamers | 5 kamers (3 slaapkamers) |
| Badkamers | 2 badkamers, 2 aparte toiletten |
| Woonlagen | 4 woonlagen |
| Energie | |
|---|---|
| Energielabel | D |
| Isolatie | Muurisolatie, Dubbel glas |
| Verwarming | Hete lucht verwarming, Open haard |
| Warm water | Elektrische boiler eigendom |
Deze royale vrijstaande villa in Hillegom heeft een riante tuin, schitterende uitzichten, dubbele garage, een thuiskantoor en door de aanwezigheid van een grote slaapkamer met luxe badkamer op de begane grond is dit een zeer fijne generatiewoning.
Dit prachtige huis op een riante kavel van 2.595m² biedt jou en je gezin de ultieme vrijheid. Geniet van het weidse uitzicht over de bloembollenvelden, terwijl de goed onderhouden tuin zich leent voor ontspanning en speelruimte voor de kinderen. Ook de momenteel aanwezige grote kippenfamilie vermaakt zich opperbest.
· Bouwjaar 1975 · Woonoppervlakte 242m² · Inhoud 996m³
• Prachtige ligging op een groot perceel
• Heerlijke uitzichten over bloembollenvelden
• Werkkamer en royale slaapkamer met badkamer op de begane grond
• Luxe woonkeuken met inbouwapparatuur
Begane grond
De villa heeft een zeer grote hal met garderoberuimte en een luxe toiletruimte. De royale Z-vormige woonkamer beschikt over een open haard en schuifpui naar de mooie tuin. De luxe woonkeuken is voorzien van moderne apparatuur en fraaie werkbladen. Daarnaast is er een grote bijkeuken met aansluitingen voor wasapparatuur en toegang tot de (wijn)kelder. De hoofdslaapkamer biedt veel vaste garderobekasten en een luxe badkamer met grote inloopdouche, 2e toilet, grote wastafel in meubel en badkamerkasten. Verder is er een grote werkkamer en dubbele garage met elektrische segmentdeur.
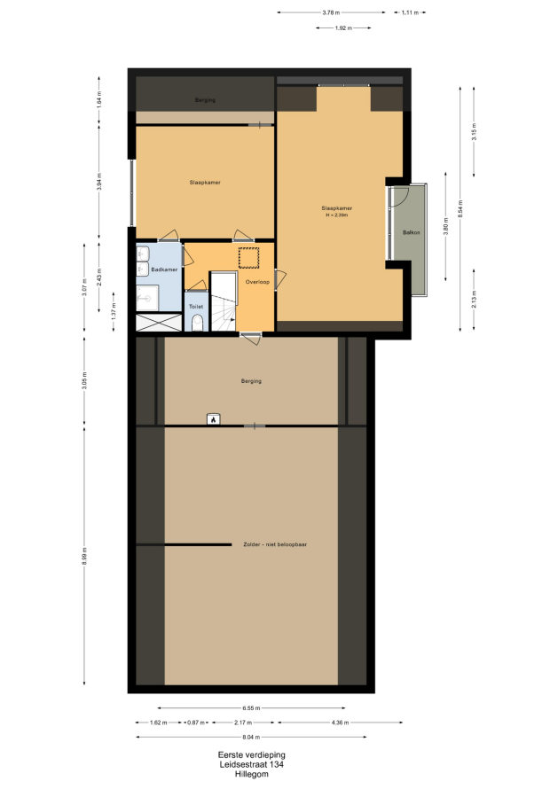
1e Etage
Overloop, twee ruime slaapkamers waarvan één met deur naar balkon, aparte toiletruimte en eenvoudige 2e badkamer met douchecabine en dubbele wastafel. De grote bergzolder biedt extra opslagruimte. Deze etage kan worden uitgebreid met een extra slaapkamer.
Ligging en Duurzaamheid
De villa is gelegen in Hillegom, een prachtige omgeving met uitstekende verbindingen. De woning is voorzien van isolerende beglazing en spouwmuurisolatie, en beschikt over een moderne meterkast. Energielabel D.
Mis deze kans niet om in deze droomvilla te wonen! Neem snel contact op voor meer informatie of een bezichtiging.
Heeft u interesse in een soortgelijke woning of wilt u zelf uw woning verkopen? Neem vrijblijvend contact met ons op.
Bekijk video
All photo's
Plattegronden
Plattegronden
Bekijk video