Valentijnsingel 16
Ter aar- Woonoppervlakte 232m2
- 6 kamers
Verkocht
| Oppervlakte en inhoud | |
|---|---|
| Woonoppervlakte | 246 m2 |
| Perceeloppervlakte | 422 m2 |
| Inhoud | 935 m3 |
| Bouw | |
|---|---|
| Type | Vrijstaande woning |
| Bouwjaar | 1962 |
| Indeling | |
|---|---|
| Kamers | 6 kamers (3 slaapkamers) |
| Badkamers | 1 badkamers, 2 aparte toiletten |
| Woonlagen | 2 woonlagen |
| Energie | |
|---|---|
| Energielabel | A |
| Isolatie | Volledig geisoleerd |
| Verwarming | Cv ketel, Vloerverwarming gedeeltelijk, Gashaard |
| Warm water | Cv ketel |
Prachtige luxe vrijstaande villa aan de Marijkelaan 10 te Kaag
Op zoek naar het ultieme woongenot? Zoek niet verder!
Deze adembenemende vrijstaande villa biedt werkelijk alles wat je maar kunt wensen. Met een woonoppervlakte van maar liefst 246m², gelegen aan de Kagerplassen en een adembenemend vrij uitzicht over het water,
is dit de plek waar dromen werkelijkheid worden.
• Eigen steiger met verlichting
• Tuin met ingebouwde jacuzzi
• Vrijstaand wonen op een eiland
• Zeer luxe afgewerkte villa
• Energielabel A
Bouwjaar 1962, woonoppervlakte 246m², perceeloppervlakte 422m², garage 14m², steiger 16m, in 2019 geheel gerenoveerd en uitgebouwd.
We nemen je mee door de woning;
De begane grond van deze villa is een waar pareltje. De smaakvol ingerichte living is voorzien van een glazen pui die volledig geopend kan worden, waardoor binnen en buiten naadloos in elkaar overgaan.
De luxe keuken met kookeiland is een droom voor elke kookliefhebber. Daarnaast vind je op de begane grond, een bijkeuken, een slaapkamer, momenteel ingericht als riante tv-kamer,
en een kamer met een aparte wasruimte, waardoor het leven hier echt gemakkelijk en comfortabel is met in de living de sfeervolle haard als middelpunt.
1e Etage:
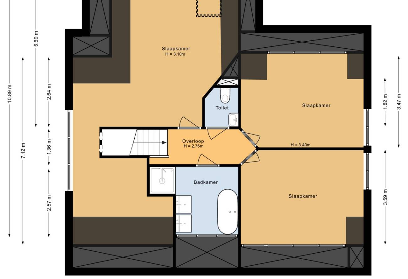
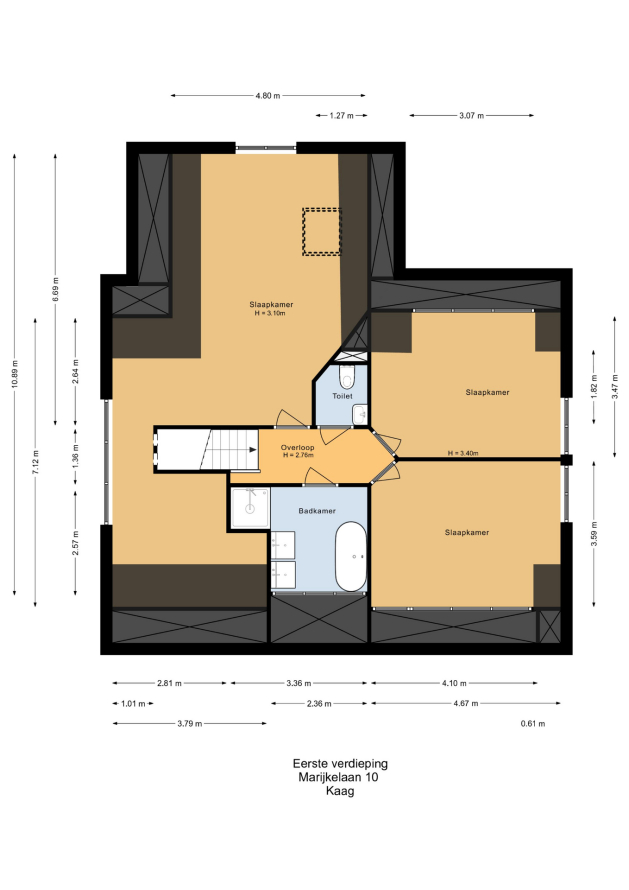
Op de eerste etage van de villa wachten nog eens drie ruime slaapkamers op je, samen met een luxe badkamer voorzien van een ligbad, douche en dubbele wastafel. Dit alles is ontworpen met het oog op maximale luxe en comfort.
Tuin:
Grote vlondertuin, fantastisch aan water gelegen met een nog fraaier uitzicht over het water. Er is een ingebouwde jacuzzi, de ideale ultieme ontspanning na een drukke dag.
De eigen steiger van 16m is met verlichting , de perfecte plek om je boot aan te leggen en te genieten van de zonsondergang, die je tot het laatste moment van ondergaan vanuit de tuin kan meepakken!
Garage:
Aangebouwde garage is voorzien van verwarming, ideaal voor autoliefhebbers of als hobbyruimte.
Deze villa biedt de perfecte combinatie van moderne luxe en de serene schoonheid van het water.
Of je nu een watersportliefhebber bent, van relaxen houdt, of gewoon wilt genieten van een leven vol comfort en stijl, deze villa heeft het allemaal.
Dus waar wacht je nog op? Dit is jouw kans om in stijl te leven aan de Kagerplassen.
Neem contact met ons op voor een bezichtiging en maak van deze villa jouw nieuwe thuis!
Bijzonderheden:
• Gehele begane grond met vloerverwarming
• Aangebouwde garage
• 24 uur bereikbaar via pont
• Geheel gerenoveerd in 2019
• Geheel schuifbare glazen pui van Solarlux
• Modern comfort in een historische setting
• Zeer luxe afwerking met alle comfort van nu
Heeft u interesse in een soortgelijke woning of wilt u zelf uw woning verkopen? Neem vrijblijvend contact met ons op.
Bekijk video
All photo's
Plattegronden
Plattegronden
Bekijk video