Langeweg 86
Roelofarendsveen- Woonoppervlakte 181m2
- 8 kamers
Verkocht
| Oppervlakte en inhoud | |
|---|---|
| Woonoppervlakte | 157 m2 |
| Perceeloppervlakte | 157 m2 |
| Inhoud | 501 m3 |
| Bouw | |
|---|---|
| Type | Appartement |
| Bouwjaar | 2020 |
| Indeling | |
|---|---|
| Kamers | 3 kamers (2 slaapkamers) |
| Badkamers | 2 badkamers, 1 aparte toiletten |
| Woonlagen | 1 woonlagen |
| Energie | |
|---|---|
| Energielabel | A |
| Isolatie | Volledig geisoleerd |
| Verwarming | Vloerverwarming geheel, Warmte terugwininstallatie |
| Warm water | Cv ketel |
PAULUSLAAN 52c – NOORDWIJK
Zeer exclusief en fantastisch gelegen 3-kamer appartement met 2 balkons en 2 parkeerplaatsen in de parkeergarage.
Gelegen op het Landgoed Sancta Maria met rondom nieuw gebouwde villa’s in een bosrijke omgeving nabij het strand en de zee.
Exclusief met een riant en overkapt terras en glazen puien op het zuidwesten.
Gelegen op de tweede woonlaag biedt dit fantastische en perfect afgewerkte appartement een uitermate comfortabel woongenot.
Zowel het appartement als de gemeenschappelijke ruimten hebben een hoogwaardig afwerkingsniveau, zijn royaal van opzet en stralen luxe, rust en ruimte uit.
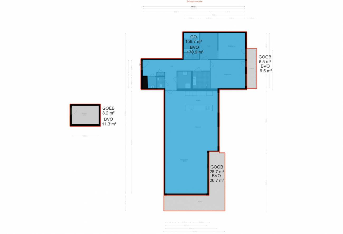
Bouwjaar 2020, woonoppervlakte 157m², inhoud 501m³, berging 8m², 1e balkon 6,5m², 2e hoekbalkon 26 m², 2 parkeerplaatsen totaal ca 36m².
Indeling:
Begane grond:
Zeer fraaie en ruim opgezette centrale entree, afgesloten door een elektrisch bedienbare toegangsdeur, met brievenbussen, videofoon/intercominstallatie, trappenhuis en liftinstallatie.
2e Verdieping:
U betreedt uw eigen woning tot de hal waar vanuit alle ruimtes bereikbaar zijn. Er is zeer ruim bemeten bijkeuken / technische ruimte waar de cv installatie,
de mechanische ventilatie en de omvormer van de zonnepanelen zijn geplaatst. Ook zijn hier de aansluitingen voor de wasapparatuur aanwezig.
Het aparte toilet is met een wandcloset en fonteinmeubel.
Er zijn 2 slaapkamers van mooie afmetingen waarvan de masterbedroom is voorzien van een inloop kledingkast met deuren.
Beide kamers bieden toegang tot het oostelijk gelegen terras. De masterbedroom heeft een eigen badkamer. Deze royale lichte badkamer is zeer luxe afgewerkt met een
inloopdouche met regendouche, een fraai ligbad, een toilet en een dubbel wastafelmeubel en een design radiator.
De tweede badkamer heeft een inloopdouche met glaswand en een dubbel wastafel meubel.
Wanneer u via de hal de lichte living inloopt wordt u verrast door het uitzicht op de ruime en groene omgeving door de fantastische glazen ramen
tot aan de vloer en de dubbele schuifpuien naar het riante terras op het zuidoosten.
De luxe en modern uitgevoerde open keuken met kookeiland voorziet in een mooi wandmeubel met alle luxe Miele apparatuur.
Een robuust kook- en spoeleiland met hardstenen aanrechtblad waaraan je kan zitten en biedt ruimte aan de RVS spoelbak met Quooker,
de vaatwasser en een inductiekookplaat met Bora afzuiging.
Het overkapte ruime hoekterras, bereikbaar vanuit de keuken en de woonkamer dmv 2 schuifpuien heeft lichte betegeling en een glazen balkonwand
waardoor fantastische zichtlijnen op de groene natuur.
Parkeren/Berging:
De parkeergarage in de onderbouw steekt circa 1,5 meter boven het maaiveld
uit en heeft daardoor daglichtinval en natuurlijke ventilatie. De toegang is via een speedgate met zenderbediening en een loopdeur t.b.v. wandelaars en fietsers.
Hier heeft u 2 eigen parkeerplaatsen en een afzonderlijke (fietsen)berging.
Locatie:
Landgoed Sancta Maria is een top locatie met een bijzondere historie, vlakbij de duinen, zee en strand en omringd door de fameuze bollenvelden.
Het landgoed werd in de afgelopen jaren ontwikkeld tot een schitterende en unieke, groene woonomgeving met vrijstaande villa’s, historische herenhuizen
en kapel en een viertal luxe appartementengebouwen, waaronder dit gebouw. Het bouwjaar is 2020 dus zowel bouw als afwerking zijn zeer recent en volledig
van de nieuwste bouwnormen voorzien.
Bijzonderheden:
- Terrasruimte op het zuidwesten van totaal 32m², grotendeels overkapt door het bovenliggende terras.
- Luxe en hoogwaardige afwerking met onder meer fraaie binnendeuren.
- Geheel voorzien van fraaie parketvloer in visgraad met vloerverwarming.
- Geheel voorzien van triple beglazing.
- Het gebouw is voorzien van zonnepanelen, 7 stuks voor deze woning.
- De maandelijkse bijdragen bedragen thans € 302,-- aan de VvE
- Stichting Park Management € 35,- voor het (groen)onderhoud van het Landgoed.
Oplevering: In overleg
Makelaar Rick Broekhof nodigt je van harte uit voor een bezichtiging.
Neem contact op met ons kantoor tel; 0252-419049.
Met elkaar maken wij het waar(d)
Heeft u interesse in een soortgelijke woning of wilt u zelf uw woning verkopen? Neem vrijblijvend contact met ons op.
Plattegronden