Jan van Brabantweg 511
Sassenheim- Woonoppervlakte 196m2
 - 4 kamers
 
Verkocht
| Oppervlakte en inhoud | |
|---|---|
| Woonoppervlakte | 320 m2 | 
| Perceeloppervlakte | 732 m2 | 
| Inhoud | 1.305 m3 | 
| Bouw | |
|---|---|
| Type | Vrijstaande woning | 
| Bouwjaar | 2008 | 
| Indeling | |
|---|---|
| Kamers | 7 kamers (6 slaapkamers) | 
| Badkamers | 3 badkamers, 2 aparte toiletten | 
| Woonlagen | 3 woonlagen | 
| Energie | |
|---|---|
| Energielabel | A | 
| Isolatie | Volledig geisoleerd | 
| Verwarming | Cv ketel, Open haard, Mogelijkheid voor open haard, Vloerverwarming gedeeltelijk, Warmte terugwininstallatie | 
| Warm water | Cv ketel | 
Op een geweldige locatie in een fraaie villawijk gelegen, vinden we deze royale vrijstaande villa met garage, veranda, wellness, steiger voor bootaanleg en tuin rondom.
Deze fraaie villa, gelegen aan vaarwater, is prachtig, smaakvol ingericht en tevens perfect afgewerkt. In de voortuin is ruimte voor parkeren op eigen terrein.
•	Wellness met sauna
•	Bootaanleg aan eigen steiger
•	Perfecte afwerking
•	30 zonnepanelen & energielabel A
Bouwjaar 2008, perceeloppervlakte 732m², inhoud 1.305m³, woonoppervlakte 320m², balkonterras 16m², garage 22m², aanlegsteiger 20m.
We nemen je mee door deze fraaie woning…
Indeling:
Aan de voorzijde is de entree naar de voordeur, er is een royale hal met garderobe, toiletruimte en een trap naar de etage. Dubbele deuren geven toegang tot de zeer royale en lichte living. Deze riante living is v.v. een fraaie parketvloer met als blikvanger een sfeervolle open haard. Verder zijn er 2 openslaande deuren naar het terras en de tuin. Er zijn meerdere zithoeken gecreëerd in deze ruime living en tevens is er plek voor een grote eettafel in de eethoek met zicht op de achtertuin en het water.
De moderne keuken, die is voorzien van luxe apparatuur, is bereikbaar vanuit de hal en vanuit de woon/eetkamer. Extra smaakvol is de afwerking van deze keuken met kookeiland in dezelfde kleurtinten als de vloer in de living. Er is ook nog een handige bijkeuken, ideaal voor een extra vriezer en voorraad.
Aan de achterzijde is een luxe veranda aangebouwd met verwarming en sfeervolle verlichting. Van hieruit kijk je over het water van de Ringvaart.
De ruime garage met uitstortgootsteen is via de hal en via een buitendeur te bereiken. Vanuit de garage is er toegang naar de wellnessruimte. Hier is het heerlijk genieten van de sauna, de inloopdouche en loop je zo via openslaande deuren het terras op waar een bruisende Jacuzzi op jou wacht.
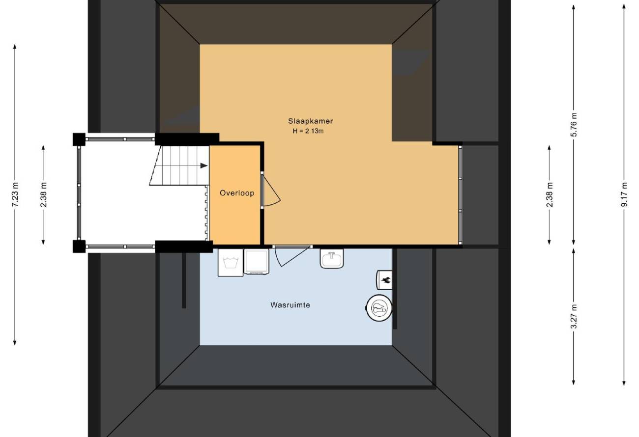
1e Etage:
Vaste trap naar de overloop met toegang tot 2 badkamers, 4 slaapkamers waarvan 2 zeer riante slaapkamers beide met deur naar een balkonterras. De ouderslaapkamer, met balkonterras en met inloopkleedruimte is voorzien van airco en heeft een eigen badkamer. Deze luxe ingerichte badkamer heeft een inloopdouche, toilet en dubbele wastafel in meubel. De separate 2e doucheruimte heeft een badkamermeubel met een wastafel. Verder is er op de overloop een toiletruimte.
2e Etage:
Via de trap naar de overloop en naar de ruime zolderslaapkamer met dakkapel. Verder is er een ruime wasruimte, met opstelling cv, en WTW.
Tuin:
Prachtig aangelegde tuin aan het water met steiger van 20 meter lang om een boot of jacht aan te leggen is verder voorzien van een zwemtrap. 
De sfeervolle tuin met terras en verlichting, welke vanuit de living, eetkamer en de Wellness is te betreden, heeft naast een terras rondom ook een fraai houten vlonderterras/aanlegsteiger. Van hier uit heeft u prachtig zicht over het water van de Ringvaart. Het royale achterterras van de villa is betegeld en heeft voldoende privacy. Hier in deze fraai aangelegde tuin zijn er dus genoeg terrassen gecreëerd om heerlijk van de tuin en het uitzicht te genieten.
Op het terras is een ingebouwde Jacuzzi en een zonnescherm. De onder architectuur aangelegde tuin heeft veel privacy en is zeer royaal met meerdere terrassen en een ligging aan doorgaand vaarwater.
De villa is in 2008 geheel gebouwd met hoge kwaliteit materialen. Modern en zeer smaakvol ingericht en afgewerkt met duurzame, natuurlijke materialen en in fraaie warme natuurtinten.
Kortom een fantastische moderne villa aan vaarwater die zo te betrekken is.
Bijzonderheden:
- Steiger (onderheid) van 20 meter voor jacht aanleg met zwemtrap
- Auto oplaadpunt met tussenmeter
- Alarminstallatie met doormelding
- Garage met oprit en parkeerplaatsen
- Wellness ruimte met sauna
- Prachtige tuin met meerdere terrassen en een Jacuzzi
- Pompput met pomp om met ringvaartwater de tuin te sproeien
- Veranda met heaters in plafond
- Gelegen aan doorgaand vaarwater naar de Kagerplassen
- Airconditioning in ouderslaapkamer en kantoor
- Zolderberging boven garage en sauna
- Zonnepanelen 30 stuks, energielabel A
- Zonneschermen voor en achter met zon/wind automaat
Benieuwd?
Makelaar Rick Broekhof nodigt u van harte uit voor een bezichtiging.
Met elkaar maken wij het waar(d).
Heeft u interesse in een soortgelijke woning of wilt u zelf uw woning verkopen? Neem vrijblijvend contact met ons op.
        Bekijk video
All photo's
Plattegronden
        Plattegronden
Bekijk video