Langeweg 86
Roelofarendsveen- Woonoppervlakte 181m2
- 8 kamers
Verhuurd
| Oppervlakte en inhoud | |
|---|---|
| Woonoppervlakte | 210 m2 |
| Perceeloppervlakte | 380 m2 |
| Inhoud | 800 m3 |
| Bouw | |
|---|---|
| Type | Vrijstaande woning |
| Bouwjaar | 2011 |
| Indeling | |
|---|---|
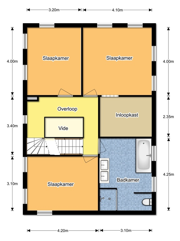
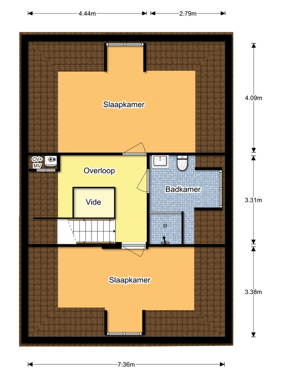
| Kamers | 7 kamers (5 slaapkamers) |
| Badkamers | 2 badkamers, 1 aparte toiletten |
| Woonlagen | 4 woonlagen |
| Energie | |
|---|---|
| Energielabel | A |
| Isolatie | Dakisolatie, Muurisolatie, Vloerisolatie, Dubbel glas |
| Verwarming | Cv ketel, Open haard, Vloerverwarming gedeeltelijk |
| Warm water | Cv ketel |
Luxe vrijstaande woning met inpandige garage, parkeerplaats op eigen terrein en zonnige tuin op het zuidwesten. De woning beschikt over 5 slaapkamers, 2 badkamers en wordt gestoffeerd te huur aangeboden voor onbepaalde tijd met een minimale duur van 12 maanden
Bouwjaar: 2010, Woonoppervlakte: 210m², Garage: 27m², Perceel: 380m²
Indeling: grote hal met deur naar kelder, royale woonkamer met veel lichtinval, dubbele deuren naar veranda en tuin, open haard, open keuken met zeer luxe antraciet kleurige inrichting, granieten werkblad en eetbar, luxe inbouwapparatuur. De gehele begane grond is v.v. antraciet tegelvloer met vloerverwarming. Achterentree, gang en inpandige garage met bergzolder en elektrische deur.
1e Etage: 3 royale slaapkamers, ruime walk-in closet, zeer luxe moderne badkamer met ligbad, douchecabine, wandcloset en dubbele wastafel in meubel.
2e Etage: 2 grote slaapkamers, moderne 2e badkamer met douchecabine, wandcloset en wastafel in meubel.
De 1e en 2e etage zijn voorzien van kunststof laminaatvloeren.
Bijzonderheden:
- Huurprijs exclusief G/W/E, TV en internet
- Energielabel A
- Onbepaald tijd, minimaal 12 maanden
- Roken niet toegestaan
- Huisdieren in overleg
- 2 maanden waarborgsom
- Gunning voorbehouden verhuurder
Stel hier uw vraag of geef uw voorkeursdata aan voor een bezichtigingsafspraak.
All photo's
Plattegronden
Plattegronden