Duinroos 65
Noordwijk- Woonoppervlakte 55m2
- 2 kamers
Verkocht
| Oppervlakte en inhoud | |
|---|---|
| Woonoppervlakte | 194 m2 |
| Perceeloppervlakte | 216 m2 |
| Inhoud | 469 m3 |
| Bouw | |
|---|---|
| Type | Twee onder een kapwoning |
| Bouwjaar | 1980 |
| Indeling | |
|---|---|
| Kamers | 8 kamers (7 slaapkamers) |
| Badkamers | 2 badkamers, 1 aparte toiletten |
| Woonlagen | 3 woonlagen |
| Energie | |
|---|---|
| Energielabel | B |
| Isolatie | Dakisolatie, Muurisolatie, Gedeeltelijk dubbel glas |
| Verwarming | Cv ketel |
| Warm water | Cv ketel |
Ben jij op zoek naar een ruime, goed onderhouden comfortabele woning met een prachtige tuin, gelegen in het hart van Lisse? Dit zeer royale half vrijstaande huis biedt je alles wat je zoekt – en meer!
- Ruime 2-1 kap woning met oprit
- Tuin met serre
- 6 ruime slaapkamers
- Kantoorruimte begane grond
Bouwjaar 1980, woonoppervlakte 194m² inhoud 469m³
We nemen je snel mee door de woning….
Indeling:
Bij binnenkomst in de stijlvolle entree voel je direct de warmte van deze woning. De begane grond is ruim en is geheel voorzien van een mooie lichte tegelvloer met vloerverwarming. Via een fraaie taatsdeur kom je allereerst in de keuken met eetkamer. Deze moderne, luxe open keuken (2023) in L-opstelling is voorzien van stijlvolle zwarte accenten en alle benodigde inbouwapparatuur. Aangrenzend kom je in de sfeervolle woonkamer waar je geniet van een strakke open haard, perfect voor gezellige avonden en via openslaande deuren loop je zo de zonnige tuin in.
De begane grond biedt daarnaast nog een kantoor/slaapkamer, ideaal voor thuiswerk of logés.
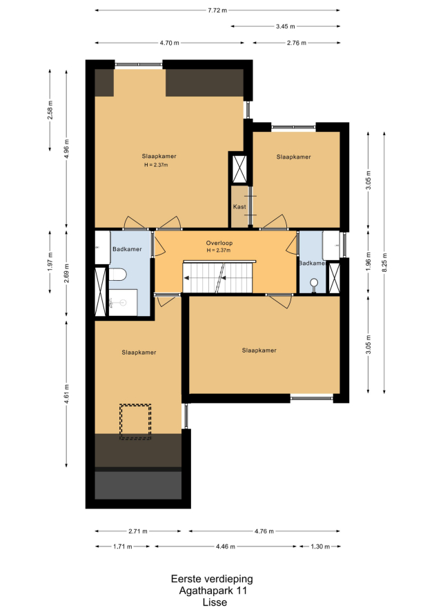
1e Etage:
Hier vind je vier royale slaapkamers, waaronder een grote ouderslaapkamer met een dakkapel, kastenwand en een eigen moderne badkamer (2023) met douche, wastafel en een toilet. Daarnaast is er een tweede moderne badkamer met douche en wastafel.
2e Etage:
Deze etage biedt nóg twee slaapkamers, waarvan één met een dakkapel, en een handige wasruimte met aansluiting voor wasapparatuur en een aparte cv-ruimte.
Tuin:
Een absolute troef van deze woning is de onderhoudsvriendelijke aangelegde achtertuin op het zuidoosten. Hier geniet je van veel privacy en een altijd groen blijvend gazon. De tuin beschikt bovendien over een royale berging met een sfeervolle serre/veranda. Hier kan je het hele jaar door heerlijk buiten eten, dankzij de schuifwanden die je kunt openen of sluiten naar wens.
Ligging:
Deze woning ligt in een rustige wijk midden in het centrum van Lisse, naast de prachtige Agathakerk en op loopafstand van gezellige winkels, terrasjes en restaurants.
Lisse zelf biedt een unieke combinatie van een landelijke sfeer en bruisend dorpsleven. Bekend om de Keukenhof en de prachtige bollenvelden, heeft Lisse alles voor een heerlijk leven in de Bollenstreek.
Kortom: een droomhuis op een perfecte locatie!
Ben jij klaar voor een woning die ruimte, comfort en locatie combineert? Maak snel een afspraak voor een bezichtiging aan het Agathapark 11 en ervaar zelf de charme van deze unieke woning!
Onze makelaar Rick Broekhof leidt je graag rond.
Bijzonderheden:
- 2 badkamers (2023)
- Moderne nieuwe keuken (2023)
- Instapklare woning
- Energielabel B
- Op loopafstand van het centrum van Lisse
- Parkeergelegenheid op eigen terrein
- Zeer nette woning
Heeft u interesse in een soortgelijke woning of wilt u zelf uw woning verkopen? Neem vrijblijvend contact met ons op.
Bekijk video
All photo's
Plattegronden
Plattegronden
Bekijk video