Jacoba van Beierenhof 21
Voorhout- Woonoppervlakte 102m2
- 3 kamers
Verkocht
| Oppervlakte en inhoud | |
|---|---|
| Woonoppervlakte | 143 m2 |
| Perceeloppervlakte | 106 m2 |
| Inhoud | 550 m3 |
| Bouw | |
|---|---|
| Type | Tussenwoning |
| Bouwjaar | 1915 |
| Indeling | |
|---|---|
| Kamers | 4 kamers (3 slaapkamers) |
| Badkamers | 2 badkamers, 1 aparte toiletten |
| Woonlagen | 3 woonlagen |
| Energie | |
|---|---|
| Energielabel | G |
| Isolatie | Dakisolatie, Gedeeltelijk dubbel glas |
| Verwarming | Gaskachels |
| Warm water | Geiser eigendom |
NU IN PRIJS VERLAAGD!
DEZE WONING WORDT NU SCHERP AANGEBODEN..
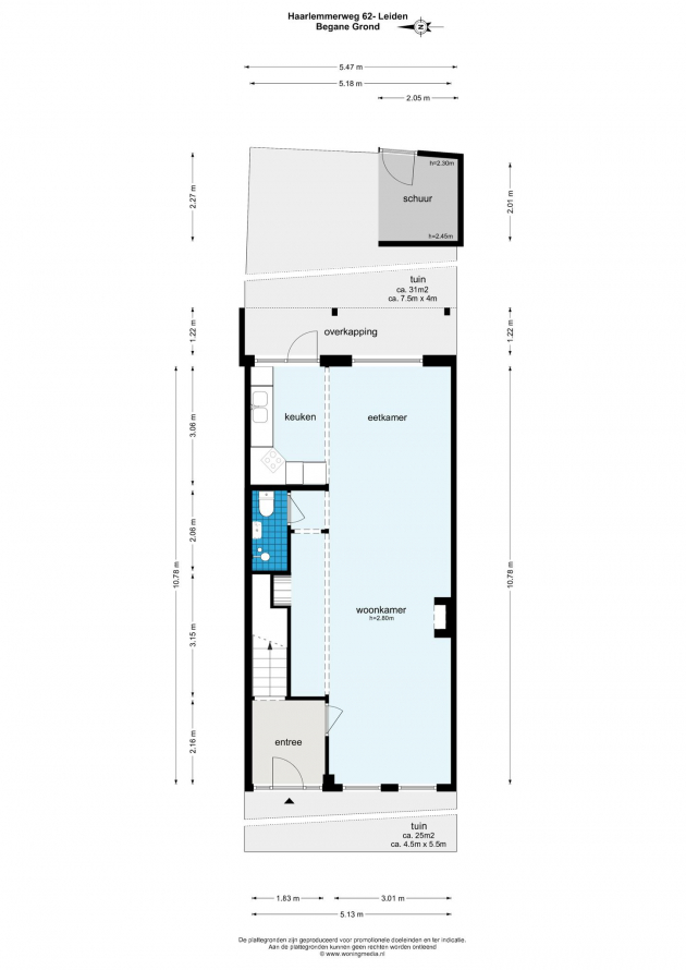
Ruim herenhuis gelegen op een rustige plek in de wijk Groenoord direct aan de Haarlemmertrekvaart.
Deze tussenwoning (voorheen 2 woningen) is zeer geschikt voor dubbele bewoning of werken aan huis.
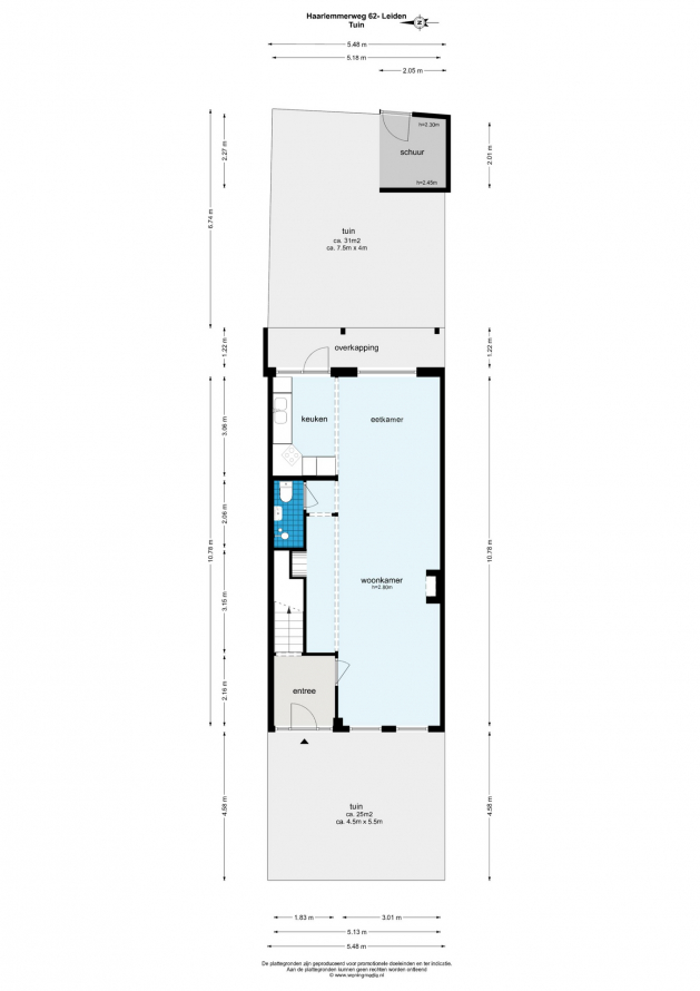
Er is een fijne betegelde achtertuin en ook is er een mogelijkheid voor een ligplaats voor een boot voor de deur. Deze woning dient te worden gemoderniseerd.
Bouwjaar 1915, perceeloppervlakte 106m², woonoppervlakte 143m², inhoud 550m³.
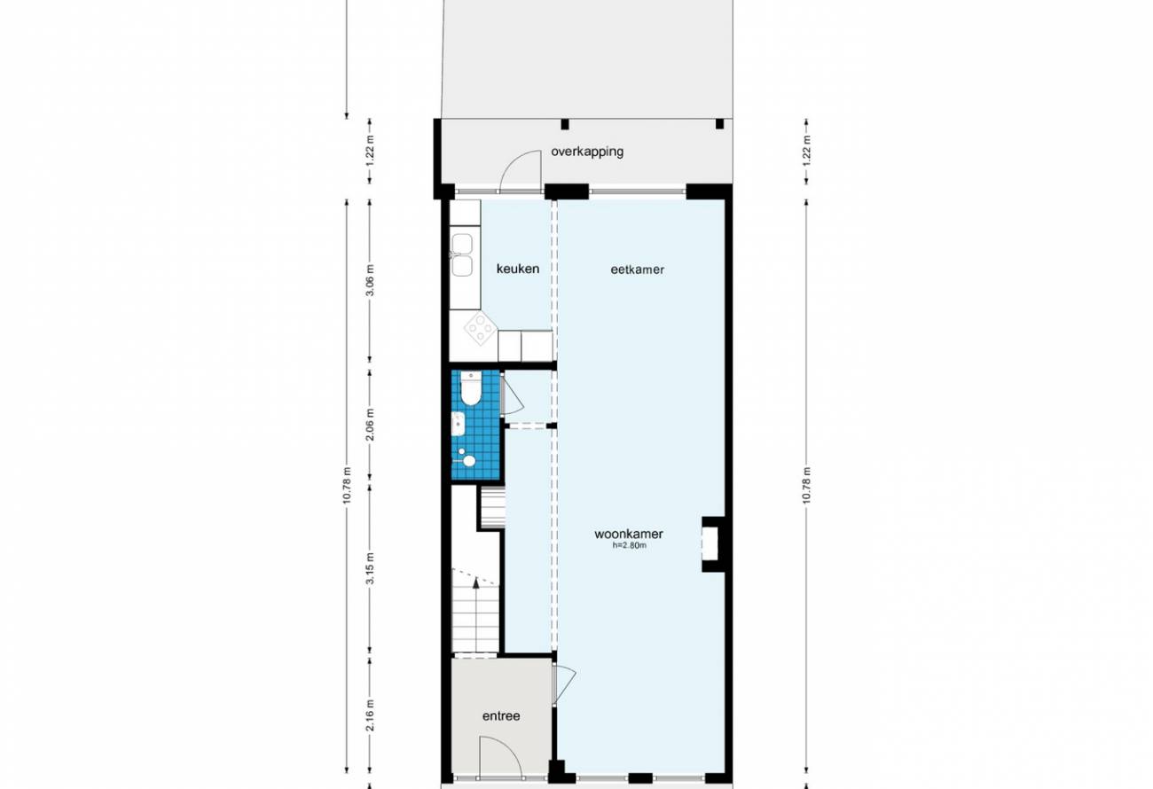
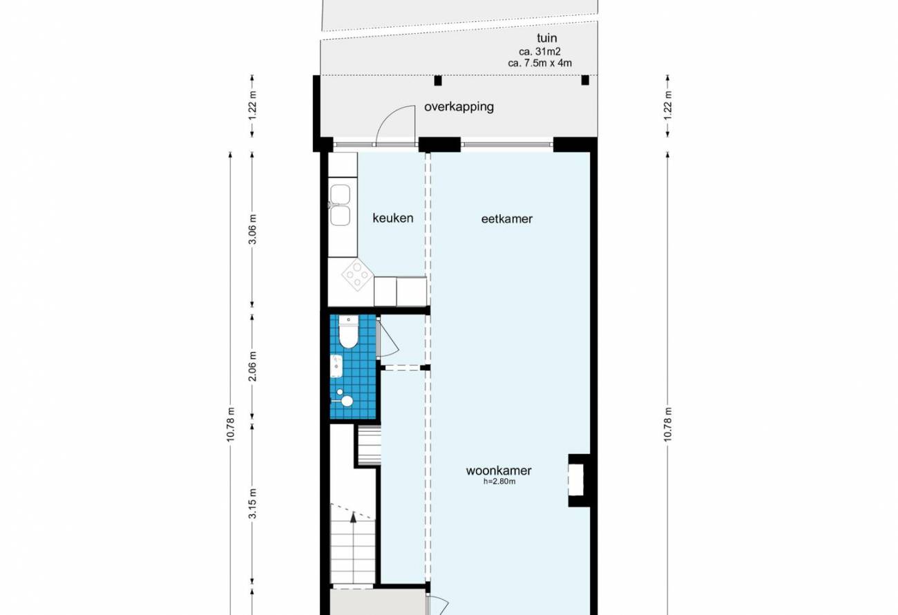
Indeling:
Via entree deur aan de voorzijde van de woning is er toegang tot het herenhuis. Er is een hal met trap naar de 1e etage en een deur naar de woonkamer.
De ruime doorzon woonkamer is voorzien van een visgraat parketvloer, een openhaard in schouw en een open keuken. Vanuit deze eenvoudige keuken is er een deur naar de achtertuin.
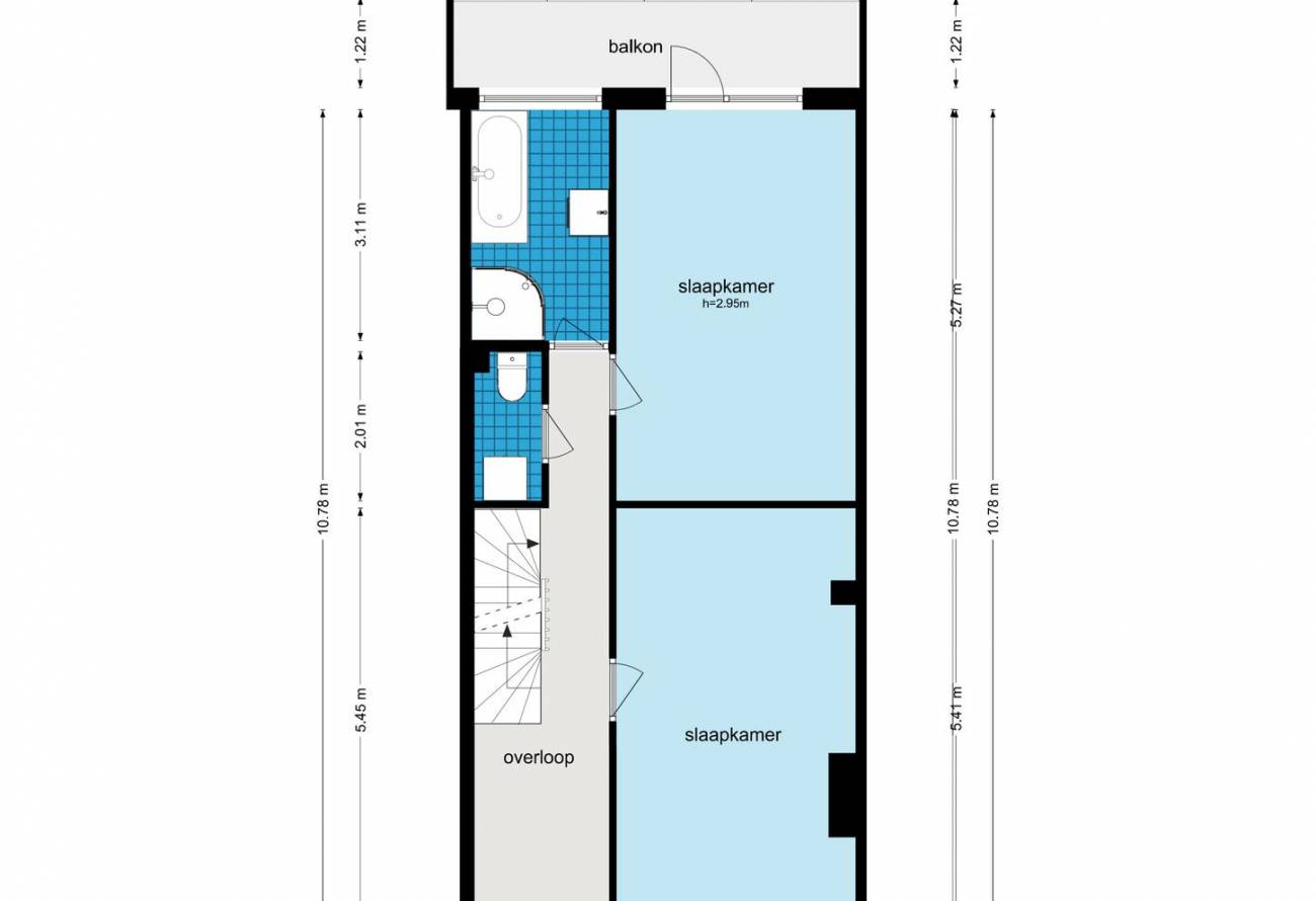
1e Etage:
Vaste trap vanuit de entreehal naar de 1e etage met overloop met separate toiletruimte en deuren naar de twee slaapkamers.
De slaapkamer aan de achterzijde heeft een deur naar een ruim balkon. De naastgelegen badkamer heeft eveneens zicht op het balkon.
De nette lichte badkamer is voorzien van een ligbad, douchecabine en wastafel in meubel.
2e Etage:
Vanuit de overloop is er een vaste trap naar de 2e etage met zeer grote nog vrij in te delen ruimte met twee kleine dakkapellen welke thans in gebruik is als opbergzolder.
Hier bevindt zich ook de aansluitingen voor wassen en drogen.
Leuke woning in Leiden met mogelijkheden!
U komt te wonen op een geliefde locatie in een gewilde wijk Groenoord, aan vaarwater van de Haarlemmertrekvaart.
Rustig gelegen maar ook centraal op 5 minuten afstand van het bruisende centrum van Leiden, NS station en vele andere voorzieningen
Via de nabijgelegen A4 en A44 zijn steden als Den Haag, Amsterdam, Utrecht gemakkelijk bereikbaar.
Bijzonderheden:
• Ruim herenhuis gelegen aan vaarwater
• Geschikt voor dubbele bewoning
• Wonen en werken aan huis mogelijk
• Mogelijkheid voor een ligplaats voor een boot voor de deur
• De woning dient te worden gerenoveerd
Oplevering in overleg
Deze woning is uitermate geschikt om wonen en werken te combineren, benieuwd?
Onze makelaar Rick Broekhof nodigt u van harte uit voor een bezichtiging.
Neem contact op met ons kantoor tel; 0252-419049.
Heeft u interesse in een soortgelijke woning of wilt u zelf uw woning verkopen? Neem vrijblijvend contact met ons op.
Bekijk video
All photo's
Plattegronden
Plattegronden
Bekijk video