
Jacoba van Beierenhof 21
Voorhout- Woonoppervlakte 102m2
- 3 kamers
Verkocht
Oppervlakte en inhoud | |
---|---|
Woonoppervlakte | 115 m2 |
Perceeloppervlakte | 82 m2 |
Inhoud | 379 m3 |
Bouw | |
---|---|
Type | Appartement |
Bouwjaar | 1910 |
Indeling | |
---|---|
Kamers | 4 kamers (3 slaapkamers) |
Badkamers | 1 badkamers, 1 aparte toiletten |
Woonlagen | 2 woonlagen |
Energie | |
---|---|
Energielabel | C |
Isolatie | Dubbel glas |
Verwarming | Cv ketel |
Warm water | Cv ketel |
Royale maisonnette in hartje centrum met terras, 3 slaapkamers én thuiswerkmogelijkheid
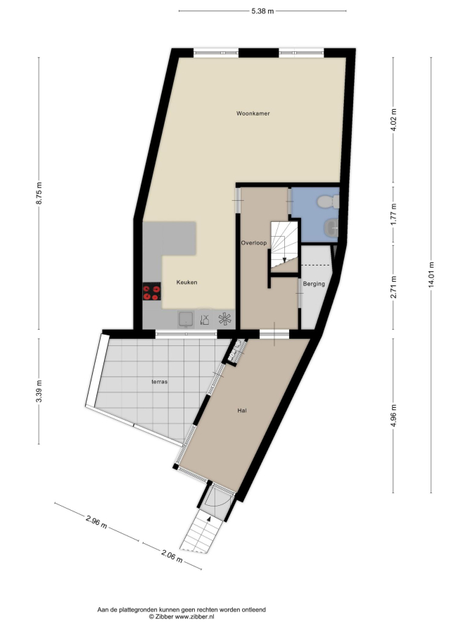
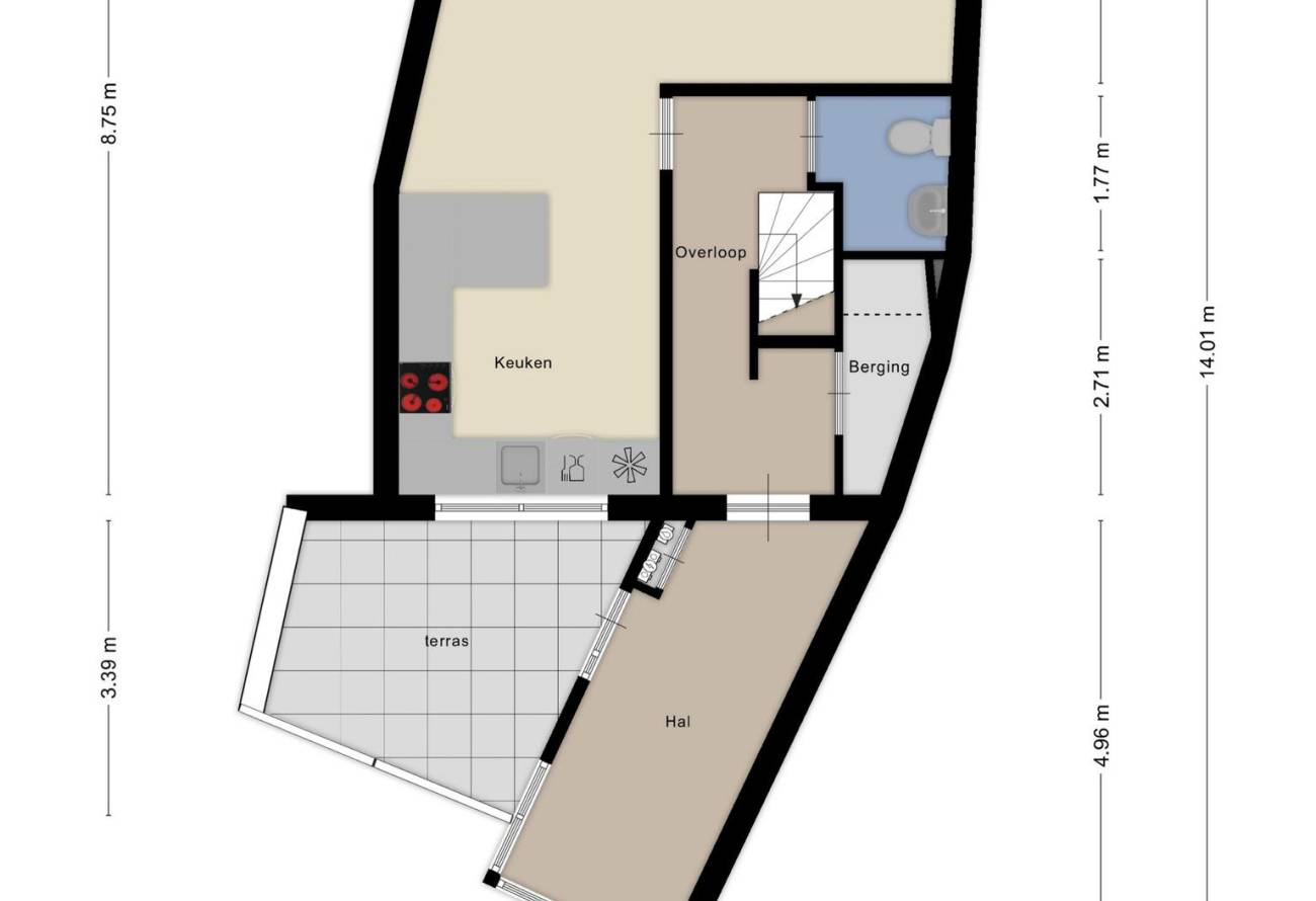
Ben je op zoek naar een licht en ruim appartement in het bruisende centrum van Lisse? Dan is dit je kans! Deze royale maisonnette van maar liefst 115m2 biedt een slimme indeling, drie volwaardige slaapkamers én een fijne werkplek aan huis. Gelegen op steenworp afstand van winkels, horeca en voorzieningen, maar met rust en privacy aan de achterzijde van het pand.
Woonoppervlakte 115 m2 • Bouwjaar 1910 • Energielabel C
Indeling & wooncomfort
Via de Wagendwarsstraat bereik je de eigen opgang en voordeur. De ruime hal – tevens perfect als thuiswerkplek – verwelkomt je met toegang tot het zonnige terras op het zuidoosten, waar je tot ver in de middag geniet van de zon. Hier vind je ook een apart toilet en een handige berging met aansluiting voor wasapparatuur.
Door de deur met glas stap je de sfeervolle woonkamer binnen, met een charmant uitzicht op de levendige Heereweg. De open keuken sluit naadloos aan en biedt een prettige leefruimte voor koken, eten en ontspannen.
tweede
Op de tweede verdieping zijn drie ruime slaapkamers, een grote badkamer met douche, ligbad, tweede toilet en wastafel, én een royale vliering voor extra opbergruimte.
Afwerking & sfeer
• Mooie houten deuren en kozijnen;
• Gehele woning strak gestuct, eerste woonlaag voorzien van lambrisering;
• Inbouwspots op de bovenverdieping;
• Hardhouten vloer op de woonlaag, stoere donkere vloerbedekking boven.
Overige bijzonderheden
• Energielabel C
• Recent uitgevoerd buitenonderhoud met hoogwaardige materialen (o.a. koperen goten en hemelwaterafvoer aan de voorzijde)
• VvE met slechts 2 leden
• VvE-bijdrage: € 100,- per maand
• Direct beschikbaar
Kortom: een verrassend ruim en karaktervol appartement met veel licht, buitenruimte, een eigen entree en een toplocatie in Lisse.
Interesse? Makelaar Brigitte Wilbrink leidt je graag rond. Neem snel contact met ons op voor een bezichtiging.
Heeft u interesse in een soortgelijke woning of wilt u zelf uw woning verkopen? Neem vrijblijvend contact met ons op.
Bekijk video
All photo's
Plattegronden
Plattegronden
Bekijk video