Egmonderstraat 31
Noordwijk- Woonoppervlakte 64m2
- 3 kamers
Verkocht
| Oppervlakte en inhoud | |
|---|---|
| Woonoppervlakte | 87 m2 |
| Perceeloppervlakte | 0 m2 |
| Inhoud | 262 m3 |
| Bouw | |
|---|---|
| Type | Appartement |
| Bouwjaar | 1982 |
| Indeling | |
|---|---|
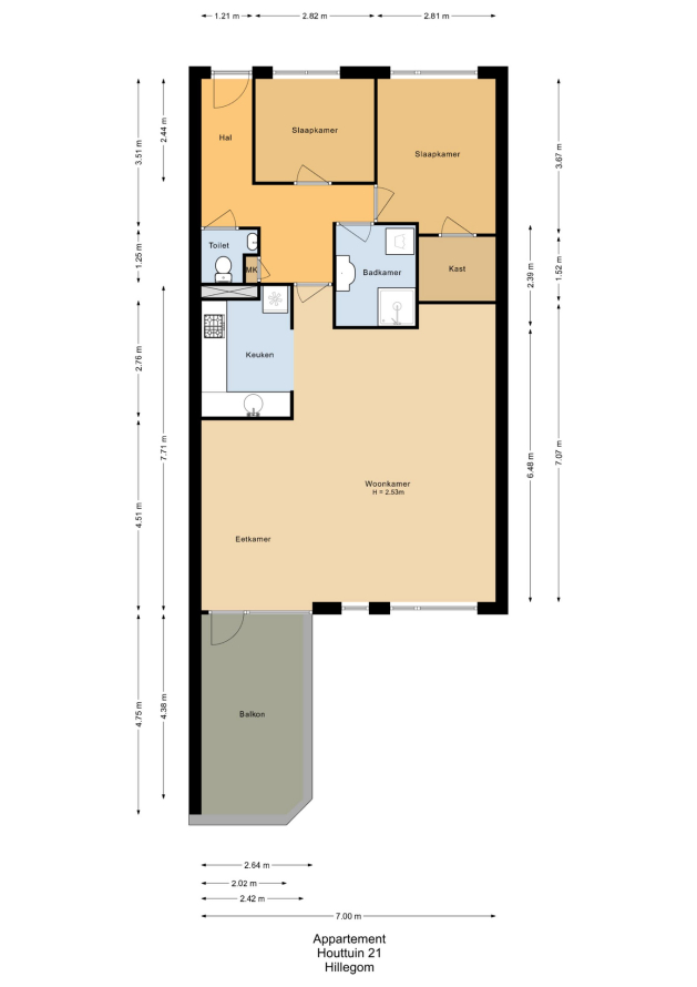
| Kamers | 3 kamers (2 slaapkamers) |
| Badkamers | 1 badkamers, 1 aparte toiletten |
| Woonlagen | 1 woonlagen |
| Energie | |
|---|---|
| Energielabel | D |
| Isolatie | Dubbel glas |
| Verwarming | Blokverwarming |
| Warm water | Centrale voorziening |
Ruim 3-kamer appartement gelegen in het hartje centrum van Hillegom met prachtig groen uitzicht. Het appartement heeft wat liefde nodig maar is uiterst gunstig gelegen t.o.v. alle voorzieningen en heeft een ruim balkon met zonnige ligging.
Bouwjaar: 1982, woonoppervlakte: 87m², balkon: 11m². berging: 3m²
- 3-kamer appartement
- Centrum
- Prachtig uitzicht
- Lift aanwezig
- Ruim en zonnig balkon
Entree:
Centrale hal (afgesloten) met videofoon, trappenhuis en lift. Op de eerste verdieping een galerij met toegang tot het appartement.
1e Etage:
Entree hal met separaat toilet en toegang tot de woonkamer. Ruime en lichte woonkamer met openkeuken. Vanuit de woonkamer geniet u van een prachtig uitzicht over de “Hoftuin”. Het royale balkon is gelegen op het zuiden. Er bevinden zich 2 slaapkamers, waarvan de hoofdslaapkamer is voorzien van een ingebouwde kast. De badkamer is geheel betegeld en voorzien van inloopdouche en wastafelmeubel, tevens bevindt zich hier de aansluiting voor de wasapparatuur.
Ligging:
Het appartement is gelegen in het hartje centrum van Hillegom. Op loopafstand treft u diverse voorzieningen zoals een supermarkt, apotheek, huisarts en gezellige horecagelegenheden. Tevens beschikt Hillegom over een goede bereikbaarheid qua busverbindingen en het treinstation.
Ook benieuwd, ik laat het appartement graag aan u zien, Pim van der Deijl
Heeft u interesse in een soortgelijke woning of wilt u zelf uw woning verkopen? Neem vrijblijvend contact met ons op.
Bekijk video
All photo's
Plattegronden
Plattegronden
Bekijk video