
Thuiskomen in een grote villa met mogelijkheden, een plek waar ruimte, rust, natuur en een vrij uitzicht samenkomen.
• 422m² woonoppervlakte
• Volledige privacy en vrijheid
• Met lange oprijlaan en eigen parkeerplaatsen
• Dubbele bewoning mogelijk
• Vijf ruime slaapkamers
Bouwjaar 1975, woonoppervlakte 422m², perceeloppervlakte 726m², inhoud 1387m³, berging 7m²
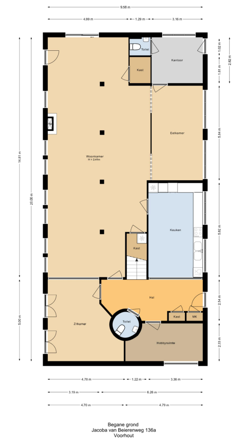
Begane grond:
Bij binnenkomst via de ruime entree met garderobe, toilet en kastenwand betreed je de royale woonkamer met open haard en meerdere zithoeken.
Thuiskomen in een grote villa met mogelijkheden, een plek waar ruimte, rust, natuur en een vrij uitzicht samenkomen.
• 422m² woonoppervlakte
• Volledige privacy en vrijheid
• Met lange oprijlaan en eigen parkeerplaatsen
• Dubbele bewoning mogelijk
• Vijf ruime slaapkamers
Bouwjaar 1975, woonoppervlakte 422m², perceeloppervlakte 726m², inhoud 1387m³, berging 7m²
Begane grond:
Bij binnenkomst via de ruime entree met garderobe, toilet en kastenwand betreed je de royale woonkamer met open haard en meerdere zithoeken.
Dankzij de grote ramen geniet je hier van veel lichtinval en een prachtig uitzicht.
Aangrenzend bevindt zich een aparte hobbykamer en een TV-kamer met zicht op de tuin. De ruime keuken, voorzien van alle benodigde apparatuur. Vanuit de keuken kijk je uit op zowel het binnenplein als op de weilanden.
Daarnaast is er een aparte eetkamer. Aan de voor- en achterzijde van de woning zijn ruimtes die uitstekend geschikt zijn voor een kantoor of praktijk aan huis, elk met eigen entree. Hier bevindt zich ook een tweede toilet.
De begane grond is verder afgewerkt met een sfeervolle parketvloer en authentieke abdijplavuizen.
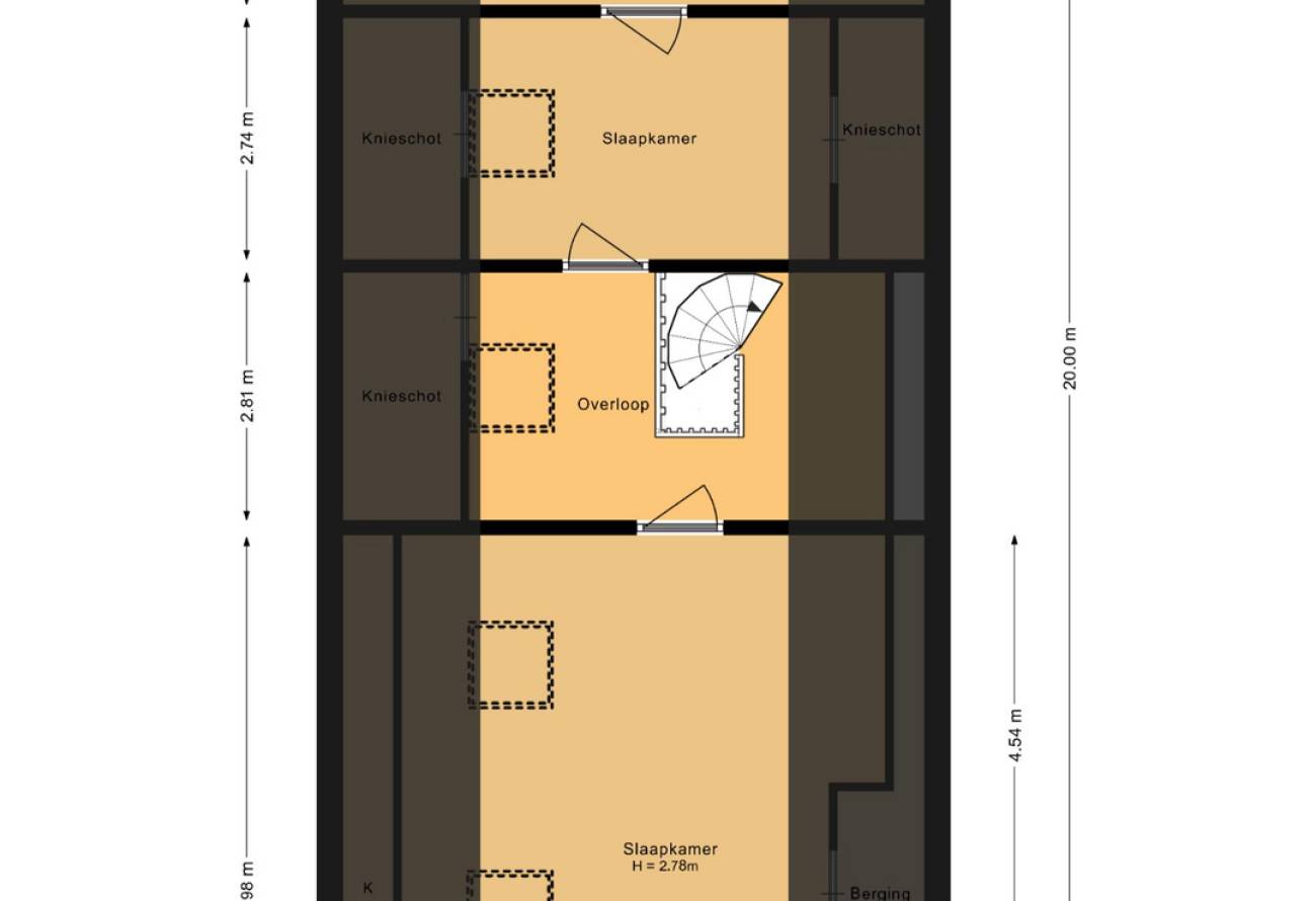
1e Etage:
Via de trap in de hal bereik je de ruime overloop op de eerste verdieping. Hier bevinden zich drie royale slaapkamers en twee badkamers.
De badkamer aan de achterzijde beschikt over een kleine sauna. De tweede badkamer is uitgerust met een inloopdouche, aansluiting voor wasapparatuur en een apart toilet.
De slaapkamers zijn licht en ruim, waarvan één voorzien van airconditioning. Indien gewenst zijn de kamers te splitsen, zodat er extra slaapkamers kunnen worden gecreëerd. De overloop biedt bovendien nog ruimte voor een extra kamer of werkplek.
2e Etage:
Via de spiltrap bereik je de tweede verdieping. Hier zijn nog twee extra slaapkamers, uitstekend geschikt als gastenkamer of thuiskantoor. Daarnaast is er volop bergruimte aanwezig.
Tuin:
Rondom de woning ligt een royale tuin met zowel zon- als schaduwplekken. Geniet hier van de rust en privacy, of organiseer gezellige zomeravonden bij de gemetselde barbecue. Een aparte berging biedt ruimte voor tuinbenodigdheden.
Parkeren is mogelijk op eigen terrein, met ruimte voor meerdere auto’s.
Mogelijkheden:
Dankzij de constructie is de woning relatief eenvoudig aan te passen of te verbouwen. Het pand is in het verleden deels gebruikt als woning en deels als kantoor, waardoor dubbele bewoning of een combinatie van wonen en werken uitstekend mogelijk is.
De villa is gelegen in het pittoreske Voorhout, midden in de Bollenstreek. Hier woon je rustig en vrij, met prachtig uitzicht over de weilanden, maar toch dicht bij alle voorzieningen. Het dorp is eenvoudig per fiets bereikbaar en beschikt over een treinstation in het centrum.
Bijzonderheden:
- Grote woonkamer met veel licht
- Vrij gelegen maar nabij het dorp
- Geschikt voor zonnepanelen
- Airconditioning in de slaapkamer (april 2024)
- Mogelijkheid voor bedrijf aan huis
- Glasvezel aanwezig
- Twee cv ketels (2021 + 2024)
- Sauna aanwezig + 4 toiletten
- Treinstation in het centrum
Bel het kantoor van Wilbrink & v.d. Vlugt voor een afspraak en ontdek zelf de eindeloze mogelijkheden van jouw nieuwe thuis. Rick Broekhof laat je deze woning graag zien!
Vul het onderstaande contactformulier in en wij nemen zo snel mogelijk contact met je op.

Bezoekadres:
Wilbrink & v.d. Vlugt Makelaars
Heereweg 231
2161BG Lisse
KVK: 28070221