Jacoba van Beierenhof 21
Voorhout- Woonoppervlakte 102m2
- 3 kamers
Verkocht
| Oppervlakte en inhoud | |
|---|---|
| Woonoppervlakte | 106 m2 |
| Inhoud | 318 m3 |
| Bouw | |
|---|---|
| Type | Appartement |
| Bouwjaar | 2021 |
| Indeling | |
|---|---|
| Kamers | 3 kamers (2 slaapkamers) |
| Woonlagen | 1 woonlagen |
| Energie | |
|---|---|
| Isolatie | Volledig geïsoleerd |
| Warm water | Elektrische boiler eigendom |
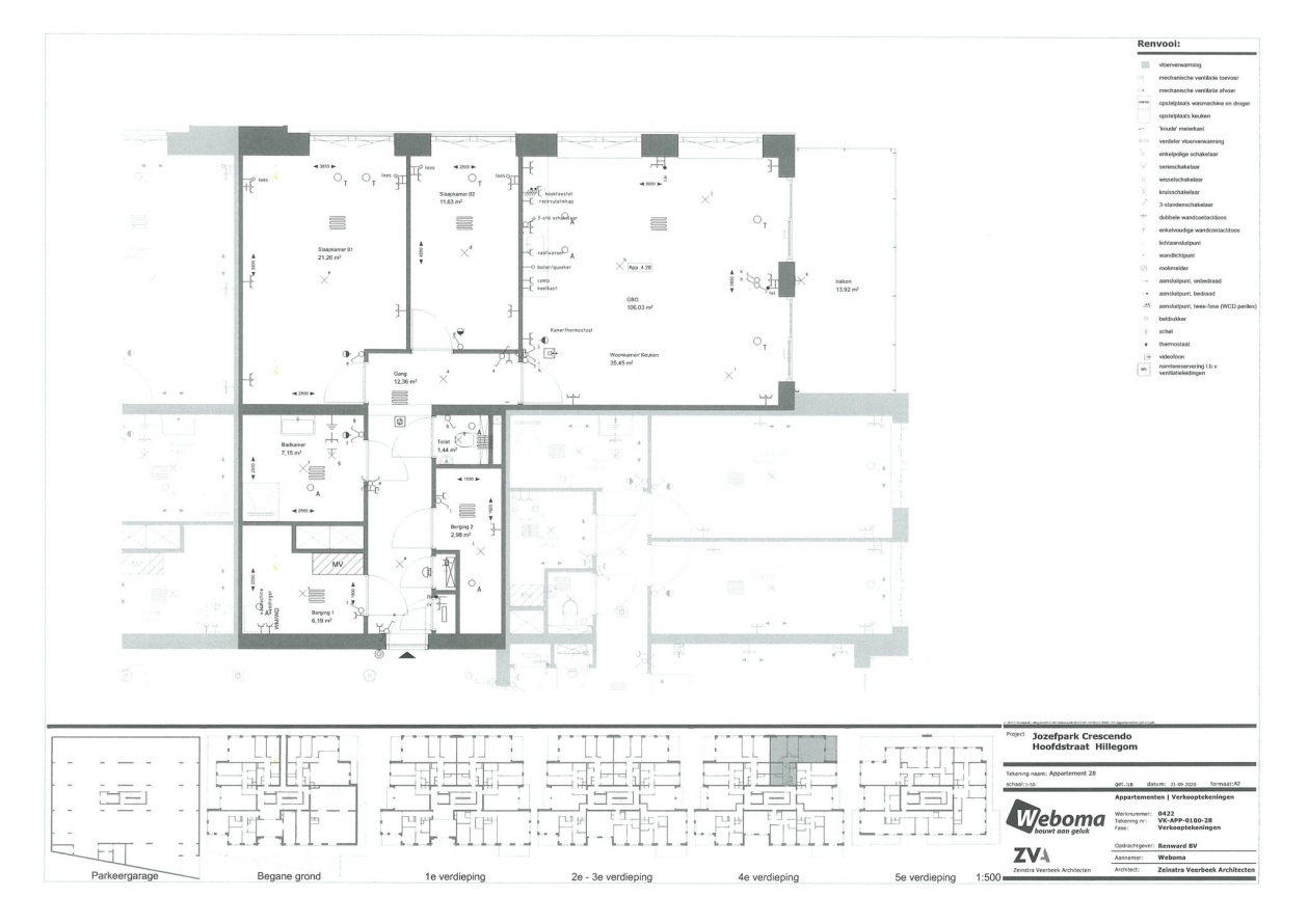
Laatst beschikbare appartement Jozefpark, bouwnummer 28.
Wonen in het centrum van Hillegom in een kleinschalig en duurzaam nieuwbouwplan.
Het project Jozefpark bestaat uit drie verschillende onderdelen: 8 eengezinswoningen, 12 appartementen in de voormalige Jozefschool en een appartementengebouw met 34 appartementen.
Stijlvol en aangenaam wonen in een rustige en groene woonomgeving. Met alle centrumvoorzieningen op loopafstand. De woningen zijn energiezuinig, compleet afgewerkt en van alle gemakken voorzien.
De appartementen op de 4e verdieping hebben 2 slaapkamers en zijn circa 70 tot 105 m² groot met een mooi balkon, een hoog afwerkingsniveau en met ligging in het Jozefpark.
Parkeren kunt u in de stallingsgarage onder het Crescendo gebouw, waar u uw eigen parkeerplaats heeft.
Alle appartementen in het Jozefpark worden tot in de puntjes afgewerkt en zijn van alle gemakken voorzien. Extra energiezuinig en uiteraard gasloos.
KENMERKEN
• Woonoppervlakte 70 m² tot 106 m² (bouwnummer 28 = 106m²)
• 2 slaapkamers: variërend van 12 m² tot 21 m²
• Ruime woonkamer met schuifpui naar het balkon
• Zeer energiezuinig, all-electric, EPC-0; zonnepanelen en warmtepomp
WOONKLAAR
• Tot in de puntjes afgewerkt voor oplevering
• Fraaie PVC vloer met vloerverwarming, hoogwaardige wand- en plafondafwerking
• Compleet ingerichte SieMatic keuken en badkamer van Villeroy & Boch
Heeft u interesse in een soortgelijke woning of wilt u zelf uw woning verkopen? Neem vrijblijvend contact met ons op.
All photo's
Plattegronden
Plattegronden