Hoofdstraat 63 b
Hillegom- Woonoppervlakte 58m2
- 3 kamers
| Oppervlakte en inhoud | |
|---|---|
| Woonoppervlakte | 100 m2 |
| Inhoud | 300 m3 |
| Bouw | |
|---|---|
| Type | Appartement |
| Bouwjaar | 1960 |
| Indeling | |
|---|---|
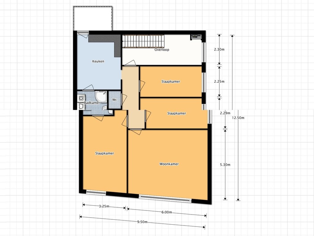
| Kamers | 4 kamers (3 slaapkamers) |
| Badkamers | 1 badkamers |
| Woonlagen | 1 woonlagen |
| Energie | |
|---|---|
| Isolatie | Volledig geïsoleerd |
| Warm water | C.v.-ketel |
Meerstraat 1, Hillegom
Op de 1e etage, boven de winkels gelegen zeer royaal 4-kamer hoekappartement. Het appartement heeft een eigen entree en een woonopp. van 100m². De woning wordt momenteel gerenoveerd, deze zal in zeer nette staat worden opgeleverd.
Via de eigen voordeur en trap komt men op de 1e verdieping alwaar de volgende indeling:
Overloop, deur naar gang, zeer royale woonkamer (30m). Grote slaapkamer met badkamer ensuite v.v. douchecabine, wastafel en aansluitingen voor wassen en drogen, vanuit de badkamer tevens een deur naar de zeer ruime wooneetkeuken, met fraaie keukenopstelling v.v. diverse inbouwapp. Verder een keurige toiletruimte en nog 2 extra slaapkamers. Vanuit de keuken is er een deur naar een kleine buitenpatio.
Kortom een groot en fraai appartement op een toplocatie midden in het gezellige centrum van Hillegom met alle voorzieningen en openbaar vervoer op loopafstand gelegen. Oplevering in overleg.
Stel hier uw vraag of geef uw voorkeursdata aan voor een bezichtigingsafspraak.
All photo's
Plattegronden
Plattegronden