Bekslaan 58
Vogelenzang- Woonoppervlakte 297m2
- 4 kamers
Verhuurd
| Oppervlakte en inhoud | |
|---|---|
| Woonoppervlakte | 171 m2 |
| Perceeloppervlakte | 227 m2 |
| Inhoud | 647 m3 |
| Bouw | |
|---|---|
| Type | Twee onder een kapwoning |
| Bouwjaar | 2009 |
| Indeling | |
|---|---|
| Kamers | 6 kamers (5 slaapkamers) |
| Badkamers | 2 badkamers, 2 aparte toiletten |
| Woonlagen | 3 woonlagen |
| Energie | |
|---|---|
| Energielabel | A |
| Isolatie | Volledig geisoleerd |
| Verwarming | Cv ketel, Vloerverwarming gedeeltelijk |
| Warm water | Cv ketel |
For English see below
Kaag – Prins Willem-Alexanderlaan 41
Deze royale en stijlvolle twee-onder-één-kapwoning is gelegen op het prachtige Kaag eiland, waar u kunt genieten van rust, natuur en water. De woning is zeer goed onderhouden en biedt veel ruimte en comfort. De woning wordt volledig gemeubileerd aangeboden voor een periode van ca 18 maanden.
Bouwjaar 2009, woonoppervlakte 171m², inhoud 647m3, perceeloppervlakte 227m²
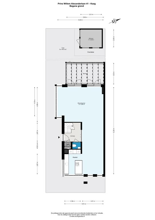
Begane grond:
Entree ruime hal met garderobe, meterkast en modern separaat toilet met fonteintje. Middels schuifdeuren wordt de woonkamer bereikt. De ruime woonkamer biedt alle comfort die u nodig heeft voor ontspanning en gezelligheid. De grote raampartijen zorgen voor veel lichtinval en geven een ruimtelijk gevoel. Tevens is de gehele begane grond voorzien van lichtgrijze plavuizen vloer welke is voorzien van vloerverwarming. Alle wanden zijn voorzien van strak stucwerk in lichte kleurstelling. De luxe openkeuken is voorzien van moderne en hoogwaardige inbouwapparatuur, te weten; stoomoven, combi-oven, koel-/vriescombinatie, gaskookplaat, Quooker, afzuigkap en vaatwasser.
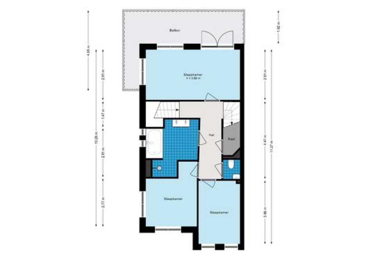
1e Etage:
Op de eerste etage bevinden zich drie ruime slaapkamers, waarvan de hoofdslaapkamer maar liefst 16m² is. Tevens is de slaapkamer gelegen aan de achterzijde welke toegang verleent middels openslaande deuren naar het balkon. De luxe badkamer is in het midden gesitueerd en is voorzien van ruime inloopdouche, ligbad met whirlpool en dubbele wastafel. Op de hal bevindt zich een separaat toilet en nog een extra opbergkast.
2e Etage:
Zowel aan de voor als achterzijde bevinden zich hier twee ruime slaapkamers. Tevens is hier een tweede badkamer gerealiseerd, welke ideaal is voor de kinderen. De tweede moderne badkamer is voorzien van een douchecabine, wastafel met meubel en toilet. Daarnaast zijn hier ook de aansluitingen voor wasapparatuur. De gehele eerste en tweede verdieping zijn voorzien van een fraaie houten vloer.
Tuin:
Deze prachtige tuin is gunstig gelegen op het zuidwesten en heeft een beschutte ligging. De serre is geplaatst in 2022 en hier kunt u heerlijk genieten terwijl de buitentemperatuur nog wat kouder is. Aan de achterzijde van de tuin bevind zich een vrijstaande houten berging.
Bijzonderheden:
- Elektrische laadpaal
- Energielabel A
- 2 badkamers
- 5 slaapkamers
- Volledig gemeubileerd
- Autopas voor de pont is € 29,75 per jaar
- De uitvalswegen A44/A4 richting Schiphol, Amsterdam, Den Haag, Leiden is binnen 10 minuten bereikbaar
- Huurprijs exclusief nutsvoorzieningen
******
Kaag - Prins Willem-Alexanderlaan 41
This spacious and stylish semi-detached house is located on the beautiful Kaag Island, where you can enjoy peace, nature and water. The house is very well maintained and offers plenty of space and comfort. The house is offered fully furnished for a period of a ca 18 months.
Built in 2009, living area 171m², content 647m3, plot area 227m²
First floor:
Entrance spacious hall with checkroom, meter cupboard and modern separate toilet with hand basin. Through sliding doors to the living room. The spacious living room offers all the comfort you need for relaxation and conviviality. The large windows provide plenty of light and give a spacious feeling. Also, the entire first floor with light gray tiled floor which is equipped with underfloor heating. All walls are equipped with stucco in bright colors. The luxury kitchen is equipped with modern and high quality appliances including steam oven, microwave, fridge-freezer, gas hob, Quooker, extractor and dishwasher.
1st Floor:
On the second floor there are three spacious bedrooms, of which the master bedroom is no less than 16m². Also, the bedroom is located at the rear which provides access through sliding doors to the balcony. The luxurious bathroom is located in the middle and is equipped with large walk-in shower, bathtub with whirlpool and double sink. In the hall is a separate toilet and an additional storage closet.
2nd Floor:
Both at the front and rear are two spacious bedrooms. There is also a second bathroom, ideal for children. The second modern bathroom has a shower, sink and toilet. In addition, here are also the connections for the washing equipment. The entire first and second floor have a beautiful wooden floor.
Garden:
This beautiful garden is conveniently located on the south-west and has a sheltered position. The conservatory was installed in 2022 and here you can enjoy it while the outside temperature is still a bit chilly. At the back of the garden is a detached wooden shed.
Details:
- Electric charging station
- Energy label A
- 2 bathrooms
- 5 bedrooms
- Fully furnished
- Car pass for the ferry is € 29,75 per year
- The highways A44/A4 towards Schiphol, Amsterdam, The Hague, Leiden are within 10 minutes reachable
- Rental price excluding utilities
Stel hier uw vraag of geef uw voorkeursdata aan voor een bezichtigingsafspraak.
All photo's
Plattegronden
Plattegronden