Kweeklust 2
Noordwijk- Woonoppervlakte 198m2
- 5 kamers
Verkocht
| Oppervlakte en inhoud | |
|---|---|
| Woonoppervlakte | 260 m2 |
| Perceeloppervlakte | 1.048 m2 |
| Inhoud | 934 m3 |
| Bouw | |
|---|---|
| Type | Vrijstaande woning |
| Bouwjaar | 1999 |
| Indeling | |
|---|---|
| Kamers | 7 kamers (5 slaapkamers) |
| Badkamers | 2 badkamers, 2 aparte toiletten |
| Woonlagen | 3 woonlagen |
| Energie | |
|---|---|
| Energielabel | B |
| Isolatie | Dakisolatie, Muurisolatie, Vloerisolatie, Volledig geisoleerd, Hr glas |
| Verwarming | Cv ketel |
| Warm water | Cv ketel |
Royale vrijstaande villa gelegen op een groot perceel met veel privacy op steenworp afstand van het strand. Deze fraaie woning is instap-klaar en voorzien van een grote living, een keuken met professionele kookapparatuur en 5 slaapkamers. Gelegen in een rustig en plezierig villapark is dit een aantrekkelijk familiehuis op een unieke locatie.
• 5 slaapkamers
• Aan de voet van strand en zee
• Parkeren op eigen terrein (4x)
• Op loopafstand van scholen en winkels
• Gelegen nabij uitvalswegen naar de A44
Bouwjaar 1999, woonoppervlakte 260m2, inhoud 934m3, perceel 1.048m2
We nemen je mee…
Via de fraai aangelegde tuin komen we bij de woning.
Begane grond
Prachtige hal met vide, handige garderobekasten en een gastentoilet. De grote woonkamer met erker en serre heeft grote ramen waardoor er veel natuurlijk daglicht is en er een lichte, prettige sfeer is. Via de openslaande deuren kom je in de veranda en de fraai aangelegde tuin waar veel privacy is.
De ruime eetkeuken heeft een gezellige eetbar, is voorzien van professionele kookapparatuur en dubbele deuren naar de woonkamer. Erg prettig is de werkkamer op de begane grond. De naastgelegen berging heeft vaste kasten met veel opbergmogelijkheid en in de bijkeuken vind je de wasmachineaansluiting en een douche.
1e etage
Op deze etage zijn 4 slaapkamers waarvan er twee een loggia hebben. Ook de slaapkamers zijn ruim bemeten en hebben veel natuurlijke lichtinval. Uniek aan de woning is de zeer royale badkamer die van alle gemakken is voorzien en die tevens een ruime bergruimte herbergt.
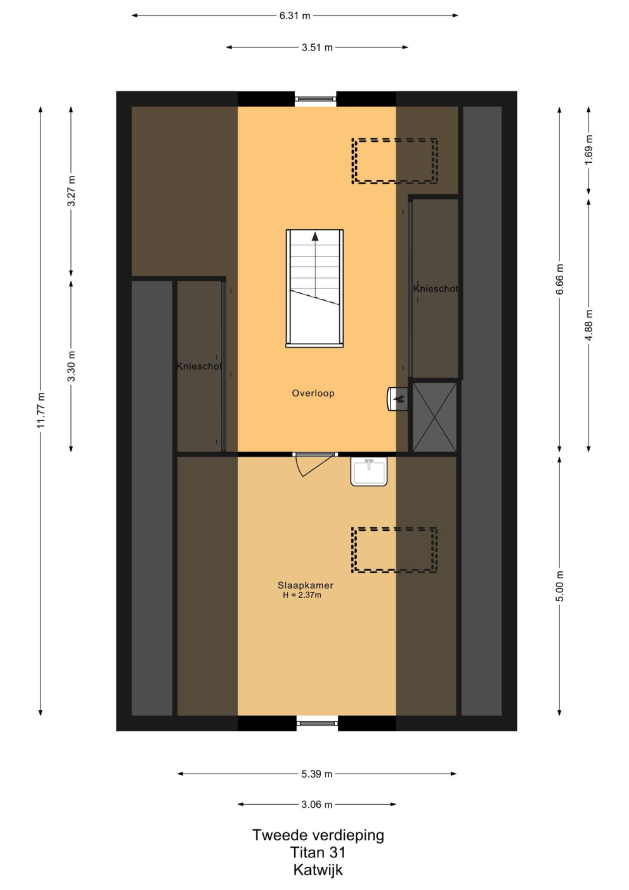
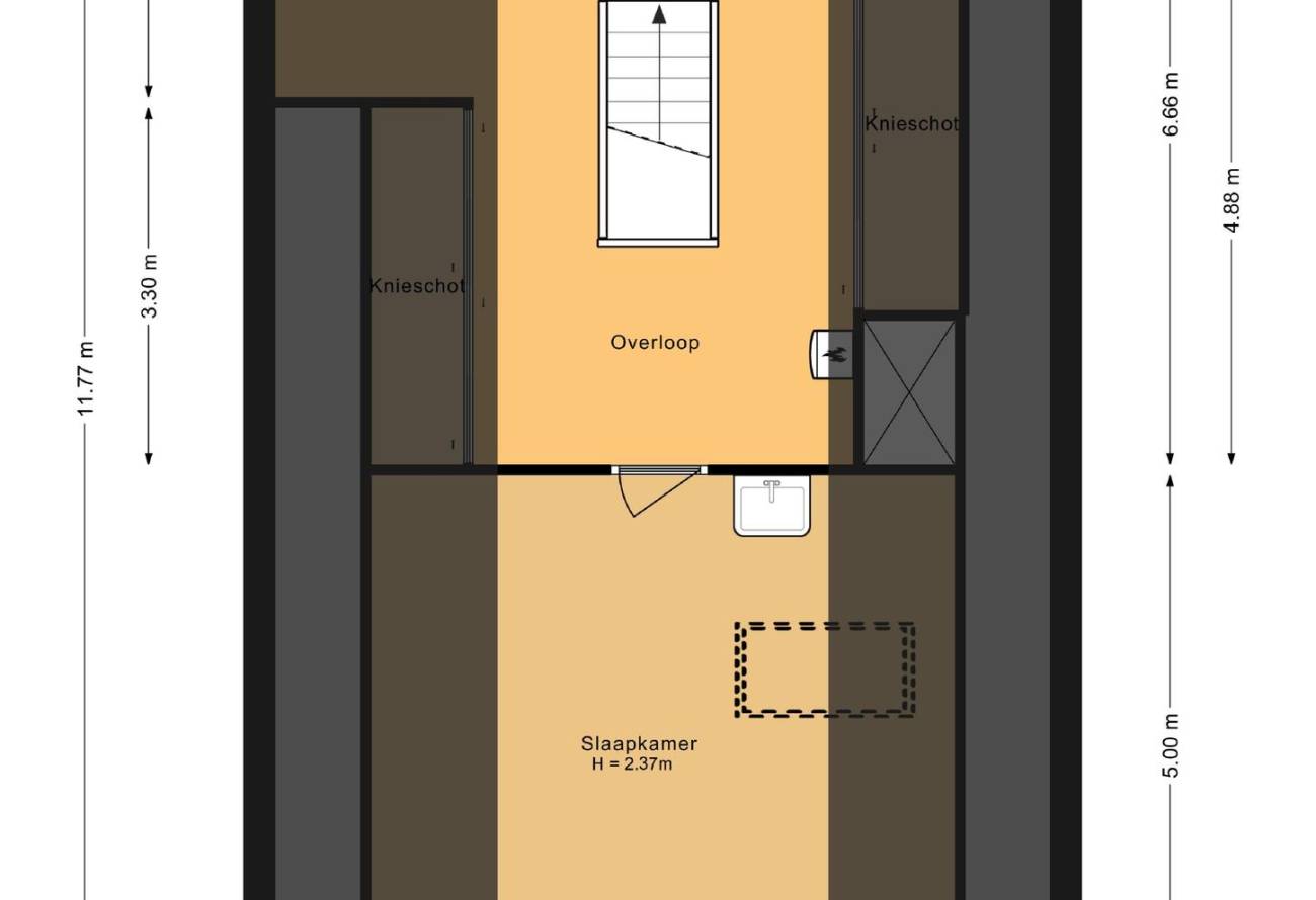
2e etage
De zolderetage heeft een grote overloop met veel bergruimte achter de knieschotten. Deze ruimte biedt vele gebruiksmogelijkheden. Bovendien is hier een 5e slaapkamer gerealiseerd welke ideaal is als logeerkamer of als een geweldige speelkamer/chillroom voor de kinderen.
Tuin
Bij de woning is een fraaie tuin met veel speelruimte voor de kinderen en vele bomen en fleurige bloemperken. Rondom gelegen en voorzien van een mooi sierhek, hagen, paden
en diverse terrassen is dit een tuin om van rust en privacy te genieten. Het grote terras is afgeschermd voor de wind waardoor het een heerlijk beschut plekje is. In de tuin staat een tuinhuis voor het opbergen van de tuingereedschappen.
Duurzaamheid
De woning heeft een energielabel B wat betekend dat er een goede isolatie is maar ook nog mogelijkheden zijn om het huis verder te verduurzamen.
Eventuele mogelijkheden zijn;
• Warmtepomp;
• Zonnepanelen;
• Zonnecollectoren.
Ligging
De fraaie woning is fantastisch gelegen; in een kleinschalige villawijk, op steenworp afstand van de duinen, het strand en de zee.
Scholen en winkels liggen op loopafstand en sportaccommodaties, openbaar vervoer en gezellige restaurants op fietsafstand.
Amsterdam/ Schiphol is bereikbaar in 35 minuten.
Bijzonderheden
• Luxe villa op een royaal perceel;
• Camerasysteem;
• Alarminstallatie;
• Sproei-installatie;
• Gelegen aan de voet van de duinen en het strand;
• Royaal parkeren op eigen terrein;
• Zeer geschikt voor (expat) gezinnen.
Wordt deze royale villa jouw nieuwe thuis?
Makelaar Frits Wilbrink leidt je graag rond.
Bel ons kantoor voor een afspraak!
Heeft u interesse in een soortgelijke woning of wilt u zelf uw woning verkopen? Neem vrijblijvend contact met ons op.
Bekijk video
All photo's
Plattegronden
Plattegronden
Bekijk video