Langeweg 86
Roelofarendsveen- Woonoppervlakte 181m2
- 8 kamers
Verkocht
| Oppervlakte en inhoud | |
|---|---|
| Woonoppervlakte | 217 m2 |
| Perceeloppervlakte | 570 m2 |
| Inhoud | 805 m3 |
| Bouw | |
|---|---|
| Type | Vrijstaande woning |
| Bouwjaar | 1930 |
| Indeling | |
|---|---|
| Kamers | 6 kamers (4 slaapkamers) |
| Badkamers | 1 badkamers, 2 aparte toiletten |
| Woonlagen | 2 woonlagen |
| Energie | |
|---|---|
| Energielabel | C |
| Isolatie | Volledig geisoleerd |
| Verwarming | Cv ketel, Vloerverwarming gedeeltelijk, Gashaard |
| Warm water | Cv ketel |
Ontdek deze prachtig gemoderniseerde vrijstaande villa gelegen in de populaire Van Tetsstraat in Hillegom. Deze villa, oorspronkelijk gebouwd in 1930, is tot in de puntjes afgewerkt en biedt een perfecte combinatie van moderne luxe en klassieke charme.
• Moderne en verzorgde vrijstaande villa
• Privacy biedende tuin met berging en veranda
• Fantastische riante moderne woonkeuken
Bouwjaar 1930, woonoppervlakte 217m², inhoud 805m³, perceeloppervlakte 570m², berging 21m² .
Wij nemen je mee;
De lange oprit ligt heerlijk verscholen tussen huisnummer 1 en 3 en biedt volop privacy. Hier is er ruimte om meerdere auto’s achter elkaar te parkeren.
Via een modern elektrisch toegangshek kom je in de tuin met direct aan je rechterhand een deur naar de woning.
Indeling:
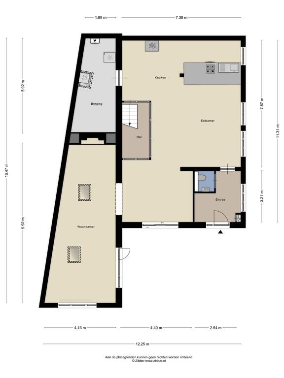
Bij binnenkomst is er een hal met toiletruimte die leidt naar de adembenemende woonkeuken.
Deze riante woonkeuken met een strak kookeiland vormt het kloppende hart van deze woning.
Het kookeiland is v.v. een prachtig werkblad waarin vier gaspitten naadloos zijn geïntegreerd, wat zorgt voor een gestroomlijnde en luxe uitstraling.
Voor het ultieme gebruiksgemak is er een Quooker aanwezig, evenals diverse hoogwaardige inbouwapparatuur, waaronder een eigentijdse afzuigkap die zowel functioneel als stijlvol is.
De ruimte is riant opgezet, waardoor er voldoende plek is voor een grote eettafel met comfortabele stoelen.
Deze opstelling zorgt ervoor dat er tijdens het koken direct contact is met de gezelschap aan de eettafel, wat de interactie en gezelligheid ten goede komt.
Kortom, deze woonkeuken combineert functionaliteit met design en nodigt uit om gezellig samen te komen en te genieten van culinaire hoogstandjes..
Vanuit de keuken kom je de woonkamer binnen, waar je kunt ontspannen bij de prachtige Piet Boon haard.
Extra leuk detail hier zijn de 2 lichtstraten die het natuurlijke licht perfect de woonkamer laten binnenstromen. Zowel de woonkeuken als de living bieden directe toegang tot het terras van de tuin.
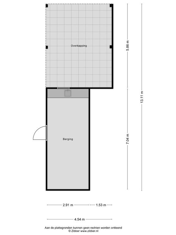
Op de begane grond, die is voorzien van tegels met vloerverwarming, bevindt zich tevens een royale berging met wasruimte en toiletruimte.
De open trap vanuit de keuken is een ware eyecatcher, met glazen ramen en donkere kozijnen die de moderne uitstraling van de villa versterken.
We gaan door naar boven;
1e Etage:
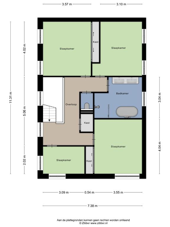
Op de eerste etage zijn vier slaapkamers, allemaal uitgerust met airconditioning, waarvan twee voorzien zijn van inbouwkasten.
De moderne badkamer biedt een inloopdouche, ligbad en dubbele wastafel. Een apart toilet op de overloop completeert deze verdieping.
Tuin:
De tuin, gelegen op het zuidwesten, is een waar juweeltje met een berging voorzien van een aangebouwde veranda.
In de berging bevindt zich tevens een aanrechtblad met wasbak. De tuin is deels voorzien van een gazon en deels betegeld, waardoor je hier optimaal kunt genieten van het buitenleven.
Locatie:
De Tetsstraat in Hillegom ligt in het hart van de bollenstreek, bekend om zijn kleurrijke bloemenvelden.
Deze rustige straat biedt een gezellige woonomgeving en is slechts een korte afstand verwijderd van de prachtige stranden van de Nederlandse kust.
Bovendien heeft de Tetsstraat een goede verbinding met uitvalswegen naar steden als Haarlem, Leiden en Amsterdam, waardoor het een ideale locatie is voor wie rustig wil wonen
maar toch dicht bij stedelijke voorzieningen en recreatiemogelijkheden wil zijn.
Neem vandaag nog contact met ons op voor meer informatie of om een bezichtiging te plannen.
Deze villa wacht op jou ……
Bijzonderheden:
• Vloerverwarming begane grond
• 4 slaapkamers met airco
• Moderne badkamer met ligbad en inloopdouche
• Parkeren op eigen oprit
• Royale berging met veranda/overkapping
• Veel privacy door ligging van het perceel
Heeft u interesse in een soortgelijke woning of wilt u zelf uw woning verkopen? Neem vrijblijvend contact met ons op.
Bekijk video
All photo's
Plattegronden
Plattegronden
Bekijk video