Pieter Postlaan 5
Wassenaar- Woonoppervlakte 385m2
- 10 kamers
Verkocht
| Oppervlakte en inhoud | |
|---|---|
| Woonoppervlakte | 364 m2 |
| Perceeloppervlakte | 761 m2 |
| Inhoud | 1.367 m3 |
| Bouw | |
|---|---|
| Type | Vrijstaande woning |
| Bouwjaar | 2008 |
| Indeling | |
|---|---|
| Kamers | 6 kamers (5 slaapkamers) |
| Badkamers | 3 badkamers, 2 aparte toiletten |
| Woonlagen | 4 woonlagen |
| Energie | |
|---|---|
| Energielabel | A |
| Isolatie | Volledig geisoleerd |
| Verwarming | Cv ketel, Open haard, Vloerverwarming gedeeltelijk |
| Warm water | Cv ketel, Elektrische boiler eigendom |
Imposante rietgedekte villa met inpandige dubbele garage. Hoog op een duintop gelegen is er een geweldig vrij uitzicht over Noordwijk. Het gezellige winkelhart, de zee en de duinen liggen op loopafstand.
• Zeer riante living met panoramisch uitzicht
• 5 slaapkamer + 3 badkamers
• inpandig verwarmd zwembad
• dubbele inpandige garage
• 2 parkeerplaatsen op eigen terrein
Bouwjaar 2008, woonoppervlakte 364m2, inhoud 1.367m3, perceel 761m2
We nemen je mee….
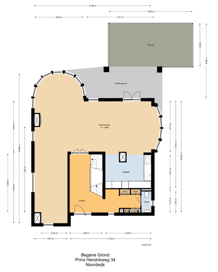
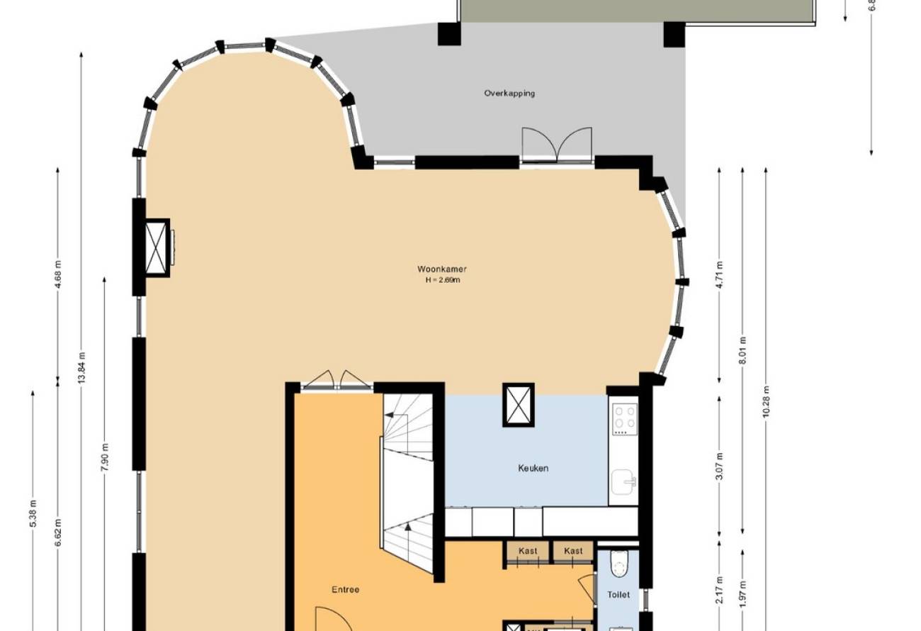
Via de speels aangelegde trap komen we bij de entree van de woning.
Bij binnenkomst is er een royale hal met vide en garderobenis, gastentoilet en de fraaie bordestrap naar de 1e verdieping.
De zeer royale living met haard heeft een zithoek met panoramisch uitzicht, een werkhoek en een grote eethoek met deuren naar een heerlijk ruim terras. De open keuken heeft luxe inbouwapparatuur en staat in open verbinding met de eetkamer.
De gehele begane grond heeft vloerverwarming.
1e verdieping
De fraaie trap brengt ons naar de ruime overloop van de 1e verdieping. Hier zijn 4 ruime slaapkamers en 2 badkamers. De grote hoofdslaapkamer heeft een geweldig uitzicht over Noordwijk. Bovendien heeft de kamer inbouwkasten en een eigen luxe badkamer met separaat toilet. Beide badkamers zijn voorzien van vloerverwarming.
2e verdieping
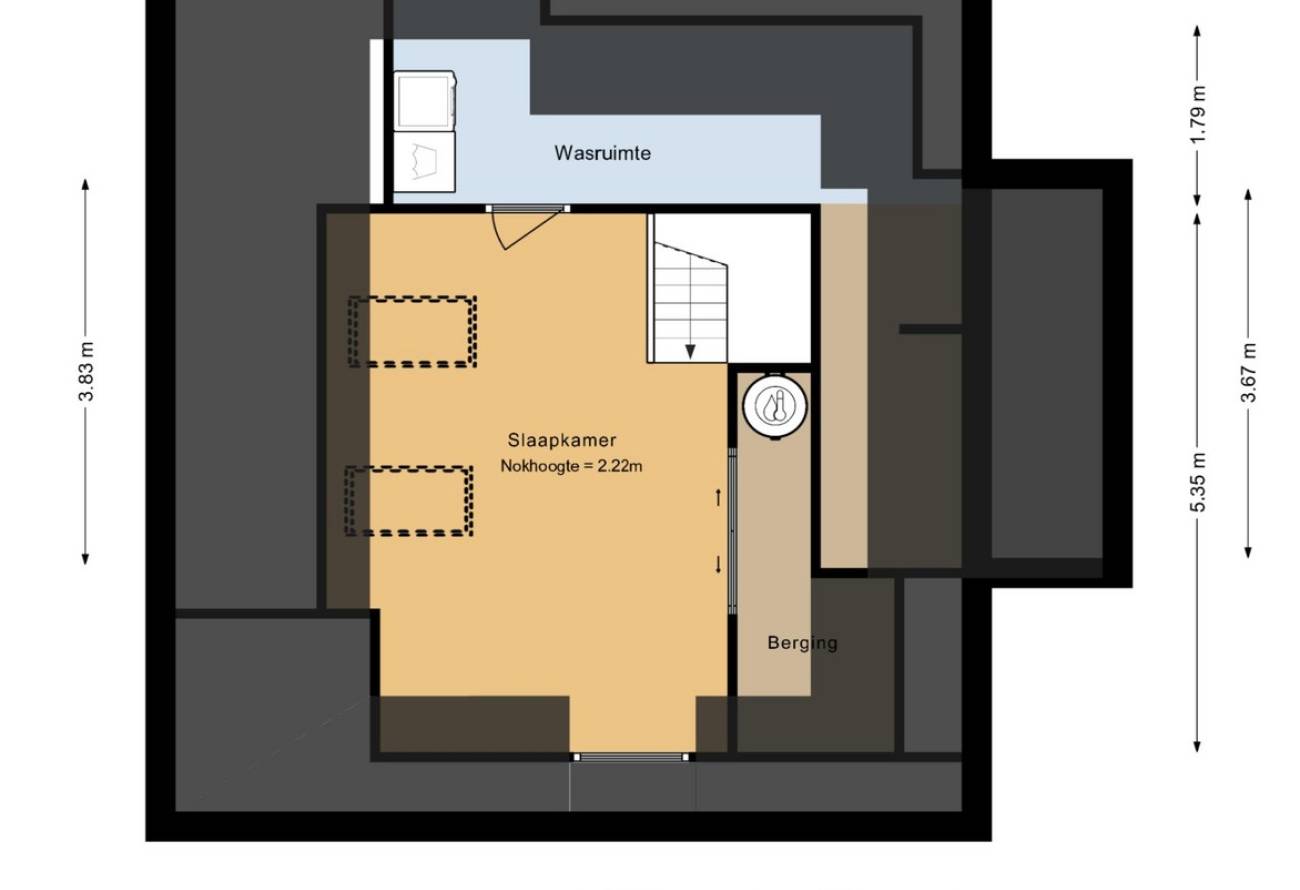
Met een vaste trap komen we op de 2e verdieping waar een grote werkkamer met kastenwand is gerealiseerd en vanwaar er uitzicht is op zee.
Kelderverdieping
De woning heeft een volwaardige kelderverdieping, bestaande uit;
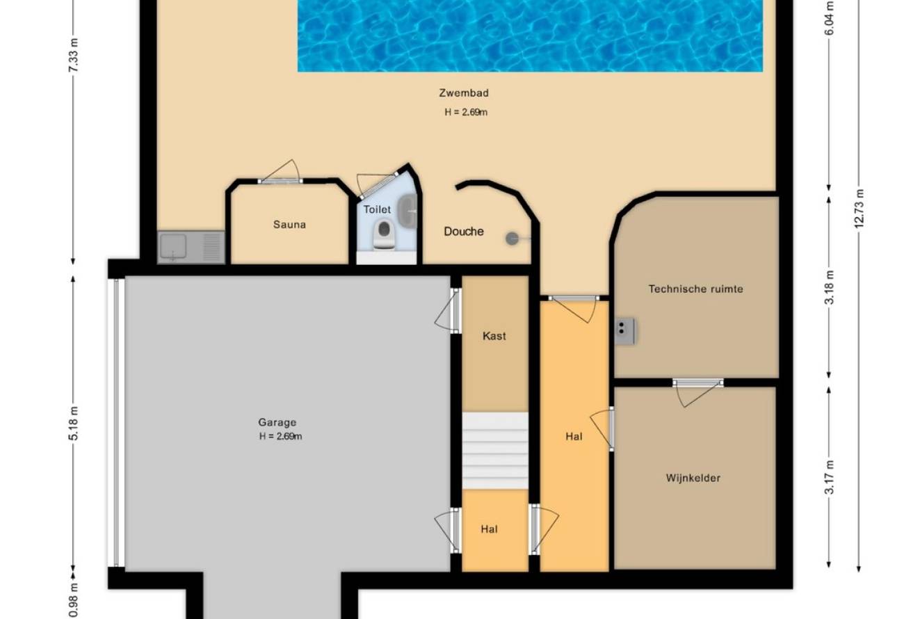
• Een grote, betegelde recreatieruimte met vloerverwarming, voorzien van een verwarmd zwembad, een douche- en een toiletruimte, een infrarood sauna en een pantry
• Inpandige dubbele garage met inbouwkast en een elektrisch bedienbare deur
• Een stookruimte met de opstelplaats van de cv-ketel, WTW installatie en de installaties tbv het zwembad.
• een wijnkelder die dmv een airco op temperatuur wordt gehouden
Vóór de garage is er parkeerplaats voor 2 grote of 3 kleinere auto’s en een oplaadpunt voor de elektrische auto.
Tuin
De grote tuin is onder architectuur aangelegd met diverse terrassen, een speelse trap, paden en vele struiken en bomen. Op de terrassen is het heerlijk genieten van de zon en de privacy.
Duurzaamheid
De woning is tijdens de bouw volledig geïsoleerd en voorzien van isolerende beglazing. Hierdoor heeft de woning het energielabel A gekregen.
Bijzonderheden
• grote gezinsvilla
• alarminstallatie
• domotica begane grond (o.a. alle raambekleding)
• speakers in het plafond van de begane grond en het zwembad
• tuinverlichting op lichtsensoren
• sproei-installatie
• onder architectuur aangelegde duintuin
Locatie
De villa ligt op een geweldige locatie; gezellige winkels, sfeervolle restaurants, de boulevard, de zee en het strand, het ligt op een steenworp afstand. Noordwijk heeft een grote keus aan scholen, restaurants, sportaccommodaties en er is een bruisend uitgaansleven voor jong en oud. Binnen enkele minuten zijn uitvalswegen als de N444 en de N206 te bereiken die een uitstekende verbinding zijn naar de A44, Leiden, Den Haag, Haarlem en Amsterdam/Schiphol.
Makelaar Frits Wilbrink leidt je graag rond.
Bel ons kantoor voor een afspraak!
Heeft u interesse in een soortgelijke woning of wilt u zelf uw woning verkopen? Neem vrijblijvend contact met ons op.
Bekijk video
All photo's
Plattegronden
Plattegronden
Bekijk video