Duinroos 65
Noordwijk- Woonoppervlakte 55m2
- 2 kamers
Verkocht
| Oppervlakte en inhoud | |
|---|---|
| Woonoppervlakte | 168 m2 |
| Perceeloppervlakte | 168 m2 |
| Inhoud | 603 m3 |
| Bouw | |
|---|---|
| Type | Tussenwoning |
| Bouwjaar | 2007 |
| Indeling | |
|---|---|
| Kamers | 5 kamers (4 slaapkamers) |
| Badkamers | 1 badkamers, 1 aparte toiletten |
| Woonlagen | 3 woonlagen |
| Energie | |
|---|---|
| Energielabel | A_P |
| Isolatie | Volledig geisoleerd |
| Verwarming | Cv ketel |
| Warm water | Cv ketel |
Modern herenhuis in hartje centrum van Noordwijkerhout.
Welkom aan de Victoriberg, waar modern comfort en stijl samenkomen in dit prachtige herenhuis, perfect gelegen in het gezellige centrum van Noordwijkerhout.
Gebouwd in 2007, biedt dit eigentijdse huis een harmonieuze mix van ruimte, functionaliteit en verfijning, ideaal voor wie op zoek is naar het perfecte thuis.
• Ruime woning gelegen in hartje centrum
• Moderne design keuken
• Slaapkamer of kantoor op begane grond
• Fantastisch dakterras 52m² op het zuiden
Bouwjaar 2007, woonoppervlakte 168m², inhoud 603m³, dakterras 52m², berging 4m², parkeren in garage
We nemen je mee door de woning;
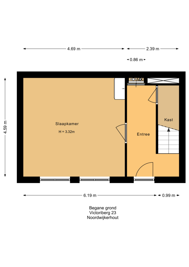
Via verhoogde entree kom je in een hal met deur naar slaapkamer en trap naar de woonverdieping.
Met maar liefst vier slaapkamers is deze woning ideaal voor gezinnen of diegenen die ruimte en veelzijdigheid zoeken. De begane grond herbergt een van deze slaapkamers,
compleet met een eigen wastafel en deuren die uitkomen op niet één, maar twee Franse balkons. Deze ruimte is perfect geschikt voor een kantoor aan huis of een praktijkruimte.
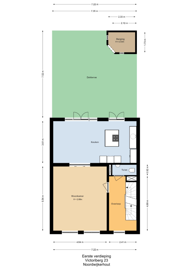
1e Etage:
Op de eerste etage wordt je begroet door een ruime living met deuren naar twee Franse balkons en schuifdeuren naar moderne, strak ontworpen open keuken, compleet met een kookeiland.
Deze woonkeuken wordt overspoeld met natuurlijk licht en biedt via 2 x dubbele deuren toegang tot een royaal dakterras van 52m² op het zuiden.
Dit terras, voorzien van betegeling, houten schuttingen en een charmante blokhut, biedt de perfecte ruimte voor buitenentertainment, ontspanning en zonnebaden.
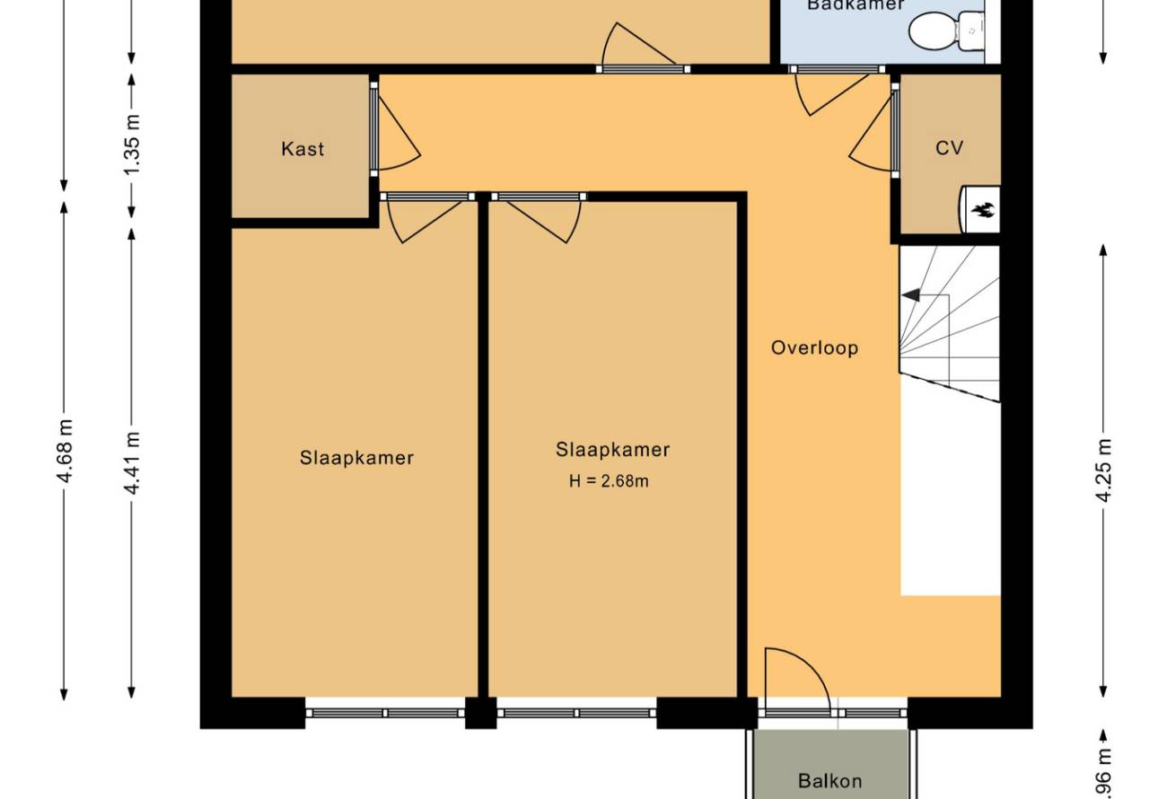
2e Etage:
De tweede etage herbergt nog eens drie ruime slaapkamers, ook is er toegang tot een balkon aan de voorzijde van de woning.
De lichte badkamer is voorzien van een ligbad, toilet, dubbele wastafel en een aparte douche, waardoor het comfort van deze woning wordt geoptimaliseerd.
Deze woning beschikt over een eigen berging in de parkeergarage, ook kunnen er één of twee parkeerplaatsen gehuurd worden, hoe heerlijk luxe is dat midden in het centrum.
Locatie:
De woning is gelegen in het hart van de bollenstreek! Noordwijkerhout, hier vind je gezellige straatjes vol historie en charmante boetiekjes.
Op steenworp afstand wachten het adembenemende strand en de uitgestrekte duinen op je. Verken de kleurrijke tulpenvelden in het voorjaar of geniet van een verkwikkende strandwandeling.
Noordwijkerhout biedt de perfecte mix van natuur, cultuur en ontspanning.
Kom kijken en laat je betoveren door de deze leuke woning in de prachtige woonplaats aan de Nederlandse kust!
Bijzonderheden:
• 4 slaapkamers waarvan 1 op begane grond
• Ruime living op 1e etage
• Keuken en woonkamer met deuren naar terras
• Riant dakterras met blokhut
• Eigen berging in parkeergarage
• Mogelijkheid om 2 parkeerplaatsen te huren
• Slaapkamer begane grond ideaal als thuiskantoor of gastenverblijf
• Winkels, restaurants, scholen en openbaar vervoer zijn allemaal op loopafstand
Heeft u interesse in een soortgelijke woning of wilt u zelf uw woning verkopen? Neem vrijblijvend contact met ons op.
Bekijk video
All photo's
Plattegronden
Plattegronden
Bekijk video